YSP_Users_K - 第238页
8-8 8 • • 4 벨 트 의 텐션을 느슨하게 합니다 . 육각 렌 치 (3mm) 로텐셔 너 ( 풀리브래킷 ) 의고정 볼 트 를분리 되 지않을정도로느 슨 하게해주십 시 오. 67812-L 3 - 0 0 5 컨베이어 벨 트 의 텐션을 조 정합니다 . 텐션 을강하게할경 우는 ,텐셔 너 ( 풀리브래 킷 ) 의고 정 볼 트체결 위 치 를본체 의안쪽방향으로 , 약하…

8-7
8
•
•
2.3 켄베이어 벨트의 텐션조정
반입•반출 컨베이어는 , 벨트의 회전에 의해 기판 (PCB) 을 반송합니다 . 컨베이어 벨트의 텐션 ( 장력 ) 이
너무 약하면 , 풀리와의 사이에서 벨트가 미끄러져서 안정된 반송을 할 수 없게 됩니다 . 한편 , 텐션이 너무
강하면 , 벨트가 마모되는 원인이 됩니다 .
컨베이어 벨트의 텐션 조정이 필요할 경우는 , 다음과 같이 실시합니다 . 가동측과 고정측 레일의 컨베이어
벨트를 동일하게 조정해 주십시오 .
2.3.1 반 입
•
반출 컨베이어
█
준비물
•
육각렌치 (3mm)
•
드라이버
1
컨베이어 폭을 작업하기 수월한 폭으로
변경합니다 .
1. [ 컨베이어폭 ] 버튼을눌러서컨베이어폭
변경대화창을표시합니다 .
2.「변경후의컨베이어폭」란에육각렌치가들어
갈정도의수치를입력하고[OK] 버튼을누릅
니다 .
컨베이어가지정된폭으로변경됩니다 .
68800 -L3- 00
e
2
비상정지 버튼을 누릅니다 .
작업을안전하게실시하기위해 ,반드시장비를
비상정지상태로해주십시오 .
3
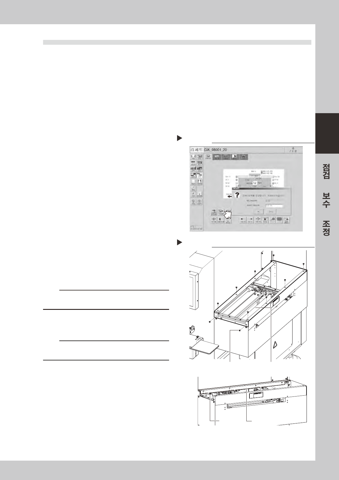
컨베이어 커버와 플레이트를 탈착합
니다 .
1. 컨베이어에접근할수있도록 ,십자드라이버
로고정나사 (10 개 ) 를분리해서아크릴커버
를탈착해주십시오 .
c
주의
고정나사에는와셔도같이부착되어있습니다 .낙하해서분
실하지않도록주의해주십시오 .
2. 십자드라이버로고정나사 (4 개 ) 를분리해서
플레이트를탈착합니다 .
67811-L3-00
참고
반출측 연장 컨베이어 ( 옵션 ) 의 경우는 , 연장 컨베이어의
안전 커버를 열어서 작업해 주십시오 .
컨베이어 폭의 변경
Step 1
컨베이어 커버의 탈착
Step 3
고정 나사
아크릴 커버
고정 나사
플레이트

8-8
8
•
•
4
벨트의 텐션을 느슨하게 합니다 .
육각렌치 (3mm) 로텐셔너 ( 풀리브래킷 ) 의고정
볼트를분리되지않을정도로느슨하게해주십시
오.
67812-L 3 -00
5
컨베이어 벨트의 텐션을 조정합니다 .
텐션을강하게할경우는 ,텐셔너 ( 풀리브래킷 )
의고정볼트체결위치를본체의안쪽방향으로 ,
약하게할경우는바깥방향으로슬라이드시켜주
십시오 .
6
텐셔너 ( 풀리 브래킷 ) 의 고정볼트를
체결합니다 .
c
주의
풀리고정볼트의체결토르크는 ,3.8N
•
m 입니다 .
너무심하게조이지않도록주의해주십시오 .
n
요점
본체 장비의 컨베이어 벨트의 테션 규격은 다음과 같습니
다 . 필요에 따라 텐션 조정기를 사용해서 조정해 주십시오 .
• 반입 반출 컨베이어 :184~197Hz
• 반출측 연장 컨베이어 :102~109Hz
7
벨트의 장착 상태를 확인합니다 .
1. 비상정지를해제합니다 .
2. [ 장치 ]-「컨베이어」탭의[ 기판반입 ],
[ 기판반출 ] 버튼으로기판을반송시켜서동작
상태를확인해주십시오 .
3. 모터풀리의슬립및벨트의회전이불규칙하
거나 ,늘어짐이심할경우는 ,텐셔너 ( 풀리 )
의위치를조정하고 ,재차기판을반송시켜서
확인해주십시오 .
8
컨베이어 커버와 플레이트를 원상태로
장착해 주십시오 .
참고
플레이트를 장착할 때에는 , 윗쪽으로 밀어 올린 상태에서
고정나사 (4) 를 체결해 주십시오 .
컨베이어 벨트의 텐션조정
Step 4,5
텐셔너(풀리 브래킷) 고정볼트
컨베이어 벨트
육각렌치 (3mm)
벨트텐션 측정위치

8-9
8
•
•
2.3.2 기판 고정부 ( 기판 테이블 )
█
준비물
•
육각렌치 (3mm,4mm,5mm)
1
컨베이어 폭을 작업하기 수월한 폭으로
변경합니다 .
1. [ 컨베이어폭 ] 버튼을눌러서컨베이어폭
변경대화창을표시합니다 .
2.「변경후의컨베이어폭」란에육각렌치가들어
갈정도의수치를입력하고[OK] 버튼을누릅
니다 .
컨베이어가지정된폭으로변경됩니다 .
68800 -L3- 00
e
2
비상정지 버튼을 누르고 , 상부도어를
오픈합니다 .
작업을안전하게실시하기위해 ,반드시장비를
비상정지상태로해주십시오 .
3
마스크 가이드 플레이트를 탈착합니다 .
1. 마스크클램프부의좌우에있는클램프가이
드플레이트를탈착합니다 .
2. 육각렌치 (3mm) 로고정볼트 (4 개 ) 를분리해
서우측의마스크가이드플레이트를탈착합니
다 .같은식으로좌측의마스크가이드플레이
트도탈착해주십시오 .
67813-L3-00
4
벨트의 텐션을 느슨하게 합니다 .
1. 육각렌치2 개로텐션이결려있는풀리의
고정볼트를풀어주십시오 .
풀리쪽 : 육각렌치 5mm
고정볼트쪽 : 육각렌치 4mm
2. 텐셔너 ( 풀리 ) 를긴구멍끝까지 ( 푸는방향 )
이동시킵니다 .
67814-L3-00
5
벨트의 텐션을 조정합니다 .
텐션을강하게할경우는 ,텐셔너 ( 풀리 ) 의고정
볼트체결위치를본체의안쪽방향으로 ,약하게
할경우는바깥방향으로슬라이드시켜주십시오 .
컨베이어 폭의 변경
Step 1
마스크 가이드 플레이트의 탈착
Step 3
볼트마스크 가이드 플레이트
벨트의 텐션 조정
Step 4,5
텐셔너(풀리) 고정볼트
육각렌치 (4mm)
육각렌치 (5mm)텐셔너 (풀리)