XP143 PATRS LIST 08 - 第87页
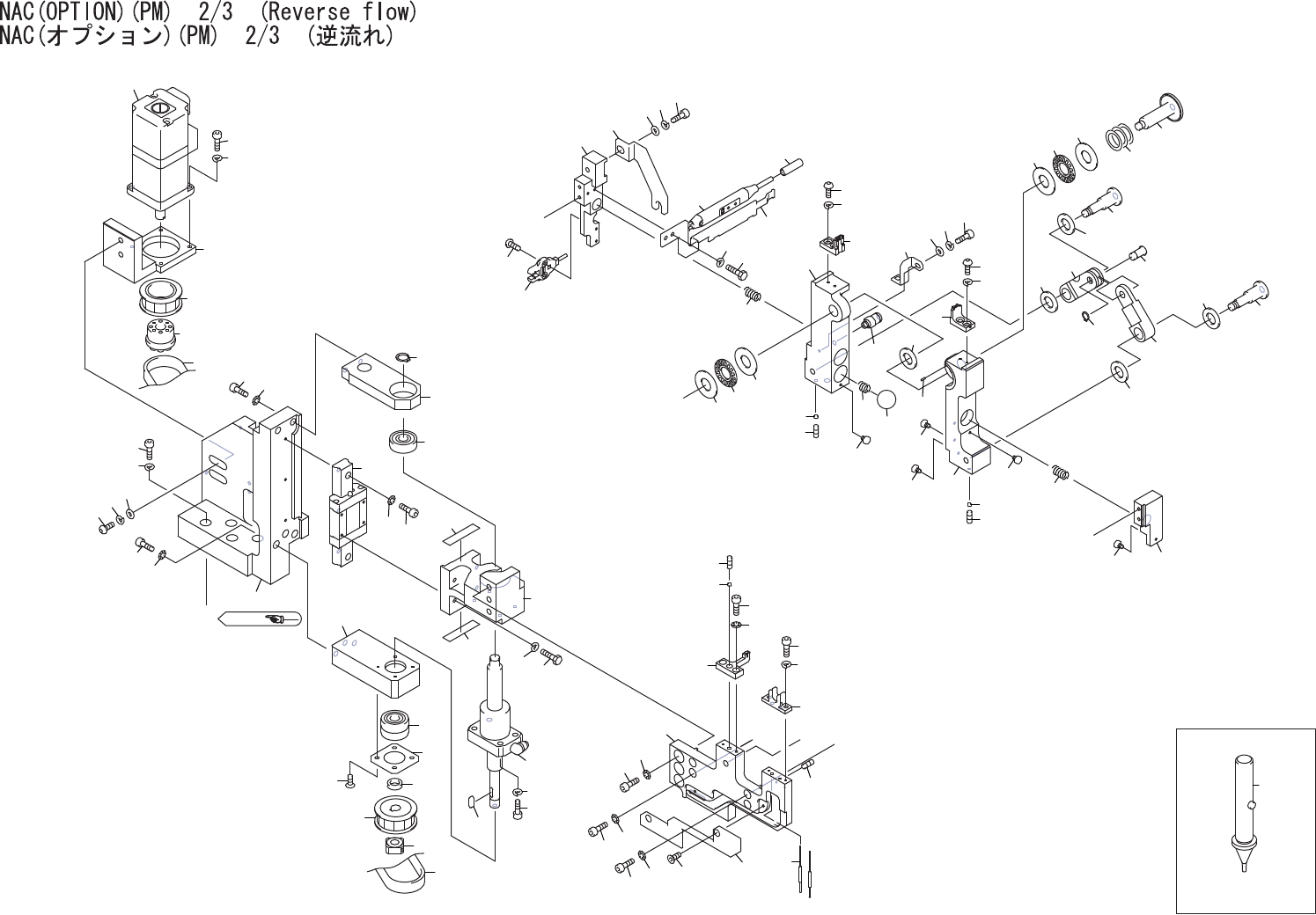
NAC(OPTION)(PM) 2/3 (Reverse flow) NAC(オプション )(PM) 2/3 (逆流れ) No. Drg.No. & Code No. QTY Description Rating Materials Remarks 番号 図番 & コード番号 個 数 品名 規格 材質 備考 1 GFPM2500 1 BKT BKT FE 2 H5344A 4 BOLT, HEX SOCKET ボルト …

A
FF
GG
EE
HH
Ref.3/
FF
GG
EE
JIG, INSPECTION
53
50
54
54
55
56
55
56
57
62
62
64
65
66
66
67
68
69
69
69
69
70
74
75
76
79
52
79
52
81
82
82
82
82
83
83
95
100
101
102
103
104
73
89
90
91
92
60
61
96
49
96
95
95
16
17
19
20
33
34
35
63
13
14
15
21
22
23
24
27
25
26
4
6
5
7
9
8
1
2
3
36
40
41
42
43
44
37
38
39
18
18
10
11
12
85
87
88
88.1
88.2
93
94
79
84
97
98
99
51
120
92.1
58
59
71
72
29
29
53.1
80
80.1
86
PTS-XP143E-08JE

NAC(OPTION)(PM) 2/3 (Reverse flow)
NAC(オプション)(PM) 2/3 (逆流れ)
No. Drg.No. & Code No. QTY Description Rating Materials Remarks
番号 図番 & コード番号 個数 品名 規格 材質 備考
1 GFPM2500 1 BKT BKT FE
2 H5344A 4 BOLT, HEX SOCKET ボルト 六角穴 M08X035 FE
3 W1025A 4 WASHER, LOCK ワッシャ スプリング 8M/M FE
4 GFPM2020 1 GUIDE, RAIL ガイド レール OT
5 H5276A 3 BOLT, HEX SOCKET ボルト 六角穴 M03X010 FE
6 W1010A 3 WASHER, CONICAL ワッシャ 皿 M- 3-L FE
7 GFPM2510 1 SLIDER スライダ AL
8 H5166A 4 BOLT, HEX ボルト 六角 M03X012 FE
9 W1021A 4 WASHER, LOCK ワッシャ スプリング 3M/M FE
10 GFPM2520 1 BKT BKT AL
11 H5321A 3 BOLT, HEX SOCKET ボルト 六角穴 M06X012 FE
12 W1013A 3 WASHER, CONICAL ワッシャ 皿 M- 6-H FE
13 GFPM2050 1 BALL SCREW ボールネジ OT
14 H5291A 4 BOLT, HEX SOCKET ボルト 六角穴 M04X018 FE
15 W1022A 4 WASHER, LOCK ワッシャ スプリング 4M/M FE
16 N1040N 1 NUT, LOCK ナット ロック RN 8 OT
17 GFPM1060 1 PULLEY プーリ OT
18 H4521S 1 BELT, TIMING ベルト タイミング 408-3GT-9 OT
19 GFPM2570 1 HOLDER, BEARING ホルダ ベアリング FE
20 H4269H 1 BEARING, ANGULAR ベアリング アンギュラ 708ATYNDFMP5 OT
21 H5326A 3 BOLT, HEX SOCKET ボルト 六角穴 M06X025 ゼンネジ FE
22 W1013A 3 WASHER, CONICAL ワッシャ 皿 M- 6-H FE
23 GFPM1620 1 HOLDER, BEARING ホルダ ベアリング FE
24 H4130E 1 BEARING ベアリング 608ZZ OT
25 H5303A 2 BOLT, HEX SOCKET ボルト 六角穴 M05X022 FE
26 W1012A 2 WASHER, CONICAL ワッシャ 皿 M- 5-L FE
27 S1029A 1 CIR-CLIP サークリップ STW 8 OT
29 GFPM1750 2 STOPPER ストッパ PL
33 DEPH3110 1 RETAINER, BEARING 押え ベアリング FE
34 K5357M 4 SCREW, HEX SOCKET COUNTERSUNK 小ネジ 六角穴皿 M03X006 FE
35 W1097Y 1 WASHER ワッシャ WASB12-8-3 OT
36 GFPM1760 1 BKT, MOTOR BKT モータ FE
37 K5262L 2 SCREW, HEX SOCKET BUTTON 小ネジ 六角穴ボタン M06X025 FE
38 W1024A 2 WASHER, LOCK ワッシャ スプリング 6M/M FE
39 W1045A 2 WASHER, FLAT ワッシャ 平 4W- 6 FE
40 XM00211 1 MOTOR, AC SERVO モータ ACサーボ OT
41 H5289A 2 BOLT, HEX SOCKET ボルト 六角穴 M04X012 FE
42 W1022A 2 WASHER, LOCK ワッシャ スプリング 4M/M FE
87
PTS-XP143E-08JE

NAC(OPTION)(PM) 2/3 (Reverse flow)
NAC(オプション)(PM) 2/3 (逆流れ)
No. Drg.No. & Code No. QTY Description Rating Materials Remarks
番号 図番 & コード番号 個数 品名 規格 材質 備考
43 GFPM1290 1 PULLEY プーリ OT
44 R2074D 1 RING, LOCKING リング 締結 UM-8X21 OT
49 GFPM2531 1 BODY, ARM 本体 アーム AL
50 H5066C 2 BALL, STEEL ボール スチール ゚15 OT
51 S3254Z 2 SPRING スプリング UY8-10 OT
52 N4027A 2 SCREW, HEX SOCKET SET ネジ 六角穴止め M04X005 クボミサキ FE
53 GFPM2541 1 BODY, ARM 本体 アーム AL
53.1 H2039A 1 PIN, SPRING ピン スプリング 1.2゚X 4 OT
54 GFPM1123 1 JAW, LOADER 爪 ローダ FE
55 K5256A 4 SCREW, HEX SOCKET BUTTON 小ネジ 六角穴ボタン M03X008 FE
56 W1021A 4 WASHER, LOCK ワッシャ スプリング 3M/M FE
57 GFPM2551 1 BLOCK ブロック AL
58 H5289A 2 BOLT, HEX SOCKET ボルト 六角穴 M04X012 FE
59 W1011A 2 WASHER, CONICAL ワッシャ 皿 M- 4-L FE
60 S4045C 1 SENSOR, PHOTO センサ フォト EE-SX870A OT
61 K5256A 2 SCREW, HEX SOCKET BUTTON 小ネジ 六角穴ボタン M03X008 FE
62 S3260B 2 SPRING スプリング SWF10-15 OT
63 GFPM1160 1 KEY, PARALLEL キー 平行 FE
64 GFPM1670 1 LINK リンク AL
65 GFPM1680 1 LINK リンク AL
66 GFPM1190 2 PIN, PIVOT ピン 支点 FE
67 GFPM1200 1 PIN, GUIDE ピン ガイド FE
68 S1028A 1 CIR-CLIP サークリップ STW 6 OT
69 W10012 4 WASHER ワッシャ 70W-1000 OT
70 GFPM2561 1 BLOCK ブロック AL
71 H5289A 2 BOLT, HEX SOCKET ボルト 六角穴 M04X012 FE
72 W1011A 2 WASHER, CONICAL ワッシャ 皿 M- 4-L FE
73 GFPM2101 1 GUIDE, HOLDER ガイド 受け FE
74 H5300A 1 BOLT, HEX SOCKET ボルト 六角穴 M05X015 FE
75 W1023A 1 WASHER, LOCK ワッシャ スプリング 5M/M FE
76 W1044A 1 WASHER, FLAT ワッシャ 平 4W- 5 FE
79 K5613D 3 BLOCK 駒 SM-402E OT
80 GFPM2600 1 PIN, PIVOT ピン 支点 FE
80.1 W1006B 3 WASHER ワッシャ BWW-626 OT
81 W10012 1 WASHER ワッシャ 70W-1000 OT
82 H42948 4 BEARING, THRUST ベアリング スラスト AS1024 OT
83 H42985 2 BEARING, THRUST ベアリング スラスト NTB1024 OT
84 N4026A 1 SCREW, HEX SOCKET SET ネジ 六角穴止め M04X004 クボミサキ FE
88
PTS-XP143E-08JE