KD-2077_Maintenance_Guide_Rev1.1_C - 第11页
维修调整要领书 轴电动机( )的拆卸 按照和拆卸相反的步骤进行安装。 使 支撑装置的紧锁螺母部分和 接轴器间的间隙在 位置时进行固定。 (在没达到 的时侯请尽可能在紧靠紧锁螺母侧的状态下进行固定。) �…

Rev1.1
维修调整要领书
1-3
1-1-3.Y轴电动机(L)的拆卸
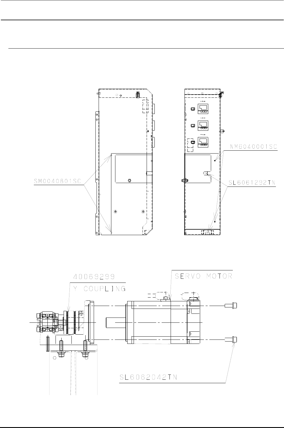
1) 请拧松皮带轮保护罩(L)止动螺钉和罩内的螺母后,拆卸罩子。
2) 请把 Y 电动机的电缆插头从电动机主体中拆卸下来。
3) 请拧松 Y 接轴器的螺丝。
4) 请拆卸 Y 轴电动机的螺钉。
5) 请从 Y 接轴器拔出 Y 电动机。
图 1-1-3-1 Y 轴电动机(L)的拆卸
桁架螺钉
左侧面 正面
有头螺钉
有头螺钉
夹紧转矩:12.8Nm
40068914

维修调整要领书
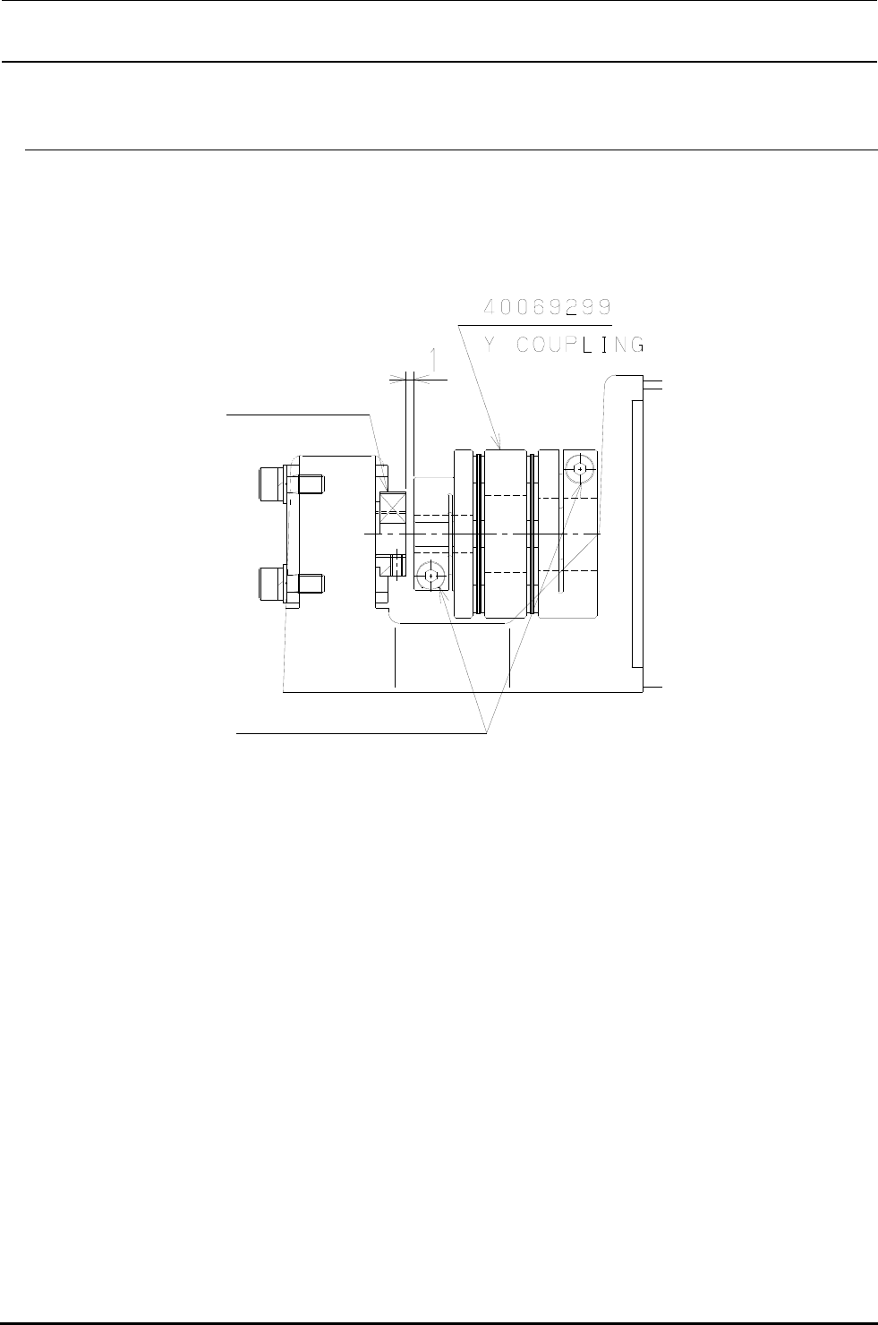
轴电动机()的拆卸
按照和拆卸相反的步骤进行安装。
使 支撑装置的紧锁螺母部分和 接轴器间的间隙在 位置时进行固定。
(在没达到 的时侯请尽可能在紧靠紧锁螺母侧的状态下进行固定。)
紧锁螺母
夹紧转矩:
紧锁漆

维修调整要领书
轴电动机()的拆卸
请拔掉 组、鼠标线。
请拧松 保护罩的固定螺钉,把 保护罩拆卸下来。
请拧松开关嵌板的固定螺钉,把开关嵌板拆卸下来。
有头螺钉
保护罩
保护罩 背面图
固定螺钉
开关嵌板