KD-2077_Maintenance_Guide_Rev1.1_C - 第14页
Rev1.1 维修调整要领书 1-7 1-2. 传感器交换 1-2-1. X 轴传感器的交换 1) 请拆下 X 原点传感器的附属螺钉,交换传感器。 2) 安装后请调整限位开关和传感器距离在 0.8 ~ 1.5mm 间。 3) 请再次取得 MS 参数( XY 原点粗调整)。 (+-限位传感器也按照同样的顺序进行更换。但是不需要 MS 参数的再次取得。) 4) 请确认更换后各种传感器的反应。 1-2-2. Y 轴传感器的交换 1) 请拆下 …

Rev1.1
维修调整要领书
1-6
4) 请拧松皮带轮保护罩 R 的止动螺钉,拆下下皮带轮保护罩 R。
5) 电动机的拆卸请参照「1-1-3 Y 轴电动机(L)的拆卸」的 2)~4)。
1-1-6.Y轴电动机(R)的安装
1) 按照和拆卸相反的步骤进行安装。
2) 接轴器的位置调整请参照「1-1-4 Y 轴电动机(L)安装」的 2)。
3) 请实施 MS 参数(XY 原点粗调整)。
4) 请实施原点复位。
5) 请通过手动中继控制按照控制→其他→驾驭状况来选择传感信息进而显
示传感信息。
6) 按下 HOD 的 CAMERA 按钮,请记录原点复位时刻的 Y 轴坐标值(Z 相检
测位置)。(=A)
7) 请把点胶头往里面移动直到 Y 原点传感器关闭。
8) 再朝里面移动 5mm。
9) 把点胶头往面前移动(FAST 禁止使用),请记录 Y 原点传感器变为打开时刻的 Y 轴坐标。(=B)
10) 如果 A+1≦B≦A+15 的话就结束。没有满足这个条件的时候,需要拧松双环状杯对发电机轴和滚
珠螺杆轴的位相进行调整。(调整方法请参考 1-2 页。)
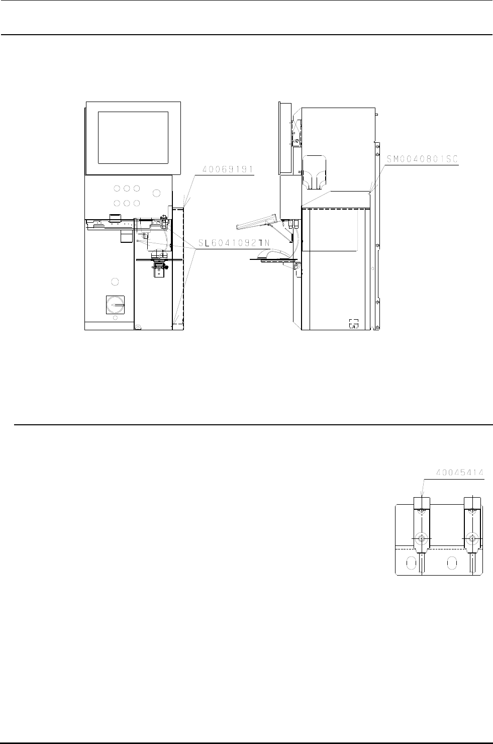
皮带轮保护罩 R
有头螺钉
桁架螺钉
Y 轴原点传感器

Rev1.1
维修调整要领书
1-7
1-2.传感器交换
1-2-1.X轴传感器的交换
1) 请拆下 X 原点传感器的附属螺钉,交换传感器。
2) 安装后请调整限位开关和传感器距离在 0.8~1.5mm 间。
3) 请再次取得 MS 参数(XY 原点粗调整)。
(+-限位传感器也按照同样的顺序进行更换。但是不需要 MS 参数的再次取得。)
4) 请确认更换后各种传感器的反应。
1-2-2.Y轴传感器的交换
1) 请拆下 Y 原点传感器的附属螺钉,交换传感器。
2) 安装后请调整限位开关和传感器距离在 0.8~1.5mm 间。
3) 请再次取得 MS 参数(XY 原点粗调整)。
(+-限位传感器也按照同样的顺序进行更换。但是不需要 MS 参数的再次取得。)
4) 请确认更换后各种传感器的反应。
-X 限位传感器
附属螺钉
X 原点传感器
原点传感器
-限位传感器
附属螺钉
夹紧转矩:0.29Nm

维修调整要领书
拖链缆线及拖链缆线线束交换要领书
拖链缆线及拖链缆线的拆卸
拆下点胶头顶部罩后拆卸连接 拖链缆线 拖链缆线的插头。
从插头支架拆卸 拖链缆线和 拖链缆线的插头。
(参照图 、图
连接 拖链缆线及 拖链缆线的插头固定如图 所示。
切除固定 拖链缆线和 拖链缆线的线箍,拆下电缆线夹具。
拆下 塑料导轨和 塑料导轨盖,取出 拖链缆线和 拖链缆线。
ヘッド トップ カバー
接続箇所Y-A
接続箇所Y-B
接続箇所Y-C
接続箇所XY-A
接続箇所XY-B
接続箇所XY-C
接続箇所XY-D
图
接续部位
点胶头顶部保护罩
接续部位
接续部位
接续部位
接续部位
接续部位
接续部位