KD-2077_Maintenance_Guide_Rev1.1_C - 第150页
维修调整要领书 11-2 23 26 27 28 29 30 31 24 25 底座上部的布局 图 表示底座上面图 各部的名称 轴马达 轴马达 �…

维修调整要领书
11-1
为了防止突然的起动造成的事故,请关掉电源之后再进行操作
电气部
电气部的布局
图 为正面图,图 为背面图
各部的名称
图像用监视器
监视器
操作盘
点胶头装置
点胶头主基板组选购品:坏标记阅读器
垂直照明基板组角度照明基板
鼠标
键盘
电源开关
压力开关
接口
控制器
接口 定位板 跨接口 基板
基板 基板 控制基板
基板 基板
基板
θ轴 伺服放大器
再生电阻
相步进驱动器
右側支撑台马达用;选购品:左側传送通道宽度自动
调整马达用
温度调节器
信号塔
伺服电动机用变压器
电源装置
电源用变压器
电源输入装置
无停电电源
时间计量器
图 主体背面图
图 主体正面图
危
险

维修调整要领书
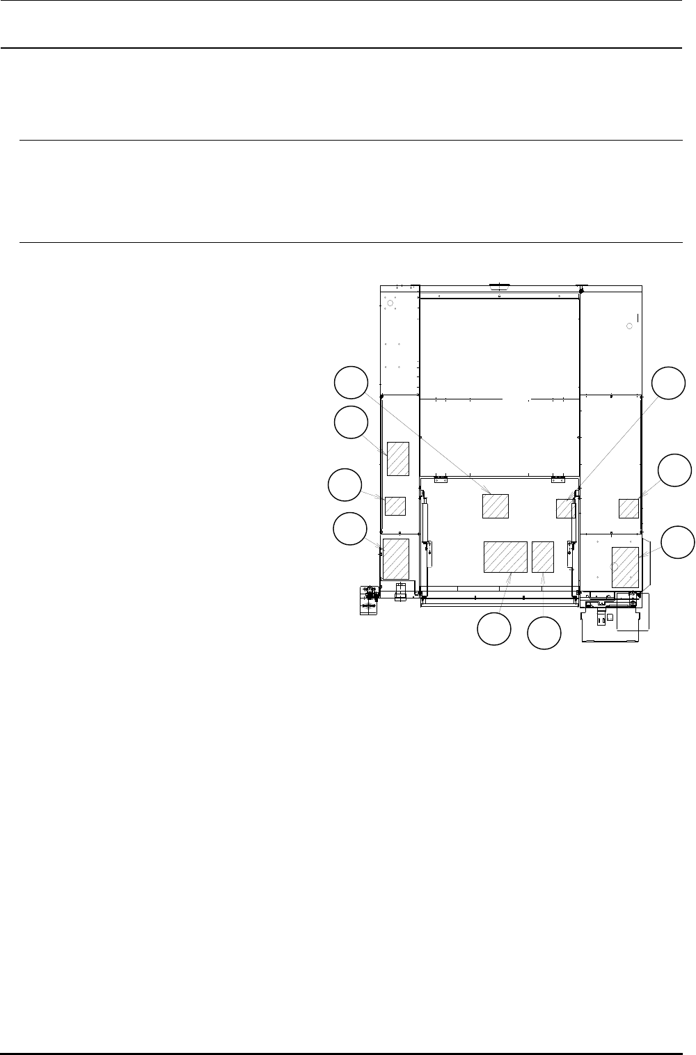
11-2
23
26
27
28
29
30
31
24
25
底座上部的布局
图 表示底座上面图
各部的名称
轴马达
轴马达
轴马达
支撑台马达
传送 马达
传送中心马达
传送 马达
基板
传送步进马达驱动器
〔传送 传送中心传送 〕
图 底座上面图
26
28
24
25
27
29
30
31
32

维修调整要领书
11-3
电源装置
電源装置的构成
电源装置安装在装置背面的中央部图 表示构成
电源装置由电源控制用继电器电路保护器等构成,向各装置控制器,装置,装置,传送
装置,点胶头装置等供给电源
各 电源的用途如下∶
继电器电磁阀步进马达传感器激光信号指示等驱动用
全部基板的逻辑电路用 基板
、 基板、点胶头主基板
位置板(运动控制)
摄像机串行通信照明用
电源电压等级
表 电源电压测定端子和调整值
NO. 电源规格 电源代号 电源装置测定端子 电压调整值
电源输出电压调整用电源装置的来进行
从 和 引出线,以保证 电源的输出电压是规格调整值,各
电源的输出电压用可变电阻器调整
调整时,请注意电压值不能大于规格调整值
销,和有调整指示的电源以外的绝对不能共用不能连接