KD-2077_Maintenance_Guide_Rev1.1_C - 第153页
维修调整要领书 11-5 表 电源装置 零件表 货号 英文品名 中文品名 数量 备考 电路保护器 …

维修调整要领书
11-4
1
2
3
4
5
6
7
R
L
3
R
L
2
T
B
1
1
2
3
4
5
6
7
8
9
1
0
1
1
1
2
1
3
1
4
1
5
1
6
1
7
1
8
1
9
T
B
2
R
L
1
R
L
5
TB1
TB2
1
2
3
4
5
6
7
8
1
2
3
4
5
6
7
CN019
CN014
CN015
CN016
CN017
CN024
CN025
CN026
CN027
CN028
CN029
CN030
CN031
CN022
CN023
CN033CN032
CN018
CN020
CN021
CN013CN012
CN011
CN010
CN009
CN008CN003
CN004
CN005
CN006
CN007
CP13
CN097
AC100V
3A
PS1
PS2
PS8
PS4
PS5
PS6
PS7
1
2 3 4 5 6 6 7
8
9 10 11 12 13
14 15 16 17 18 19 19
20
21
22
23
24
24
25
26
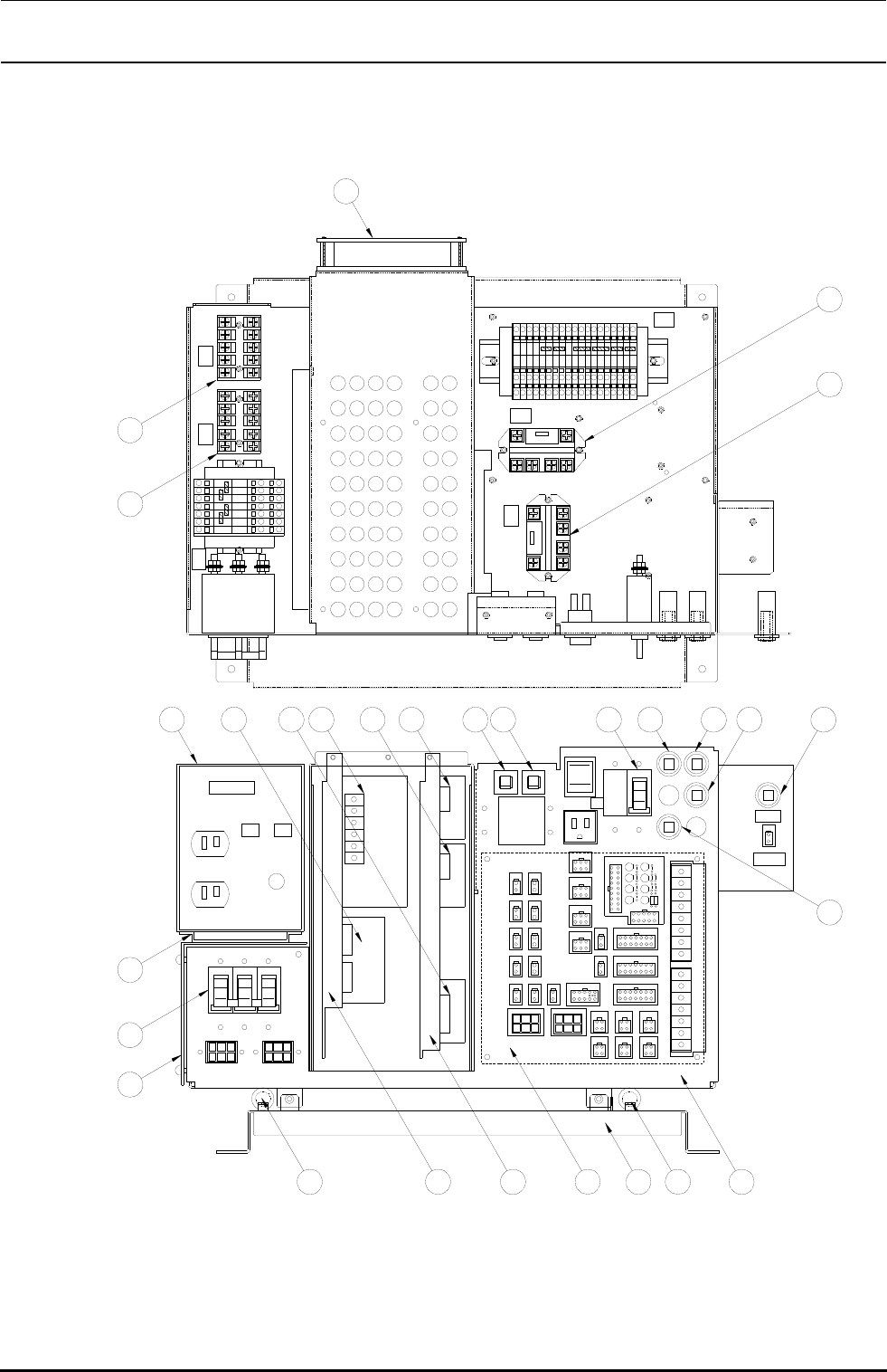
1 电源装置构成图
图 电源装置构成图

维修调整要领书
11-5
表 电源装置
零件表
货号 英文品名 中文品名 数量 备考
电路保护器
电路保护器
电路保护器
电路保护器
电路保护器
电路保护器 、
电路保护器
电路保护器
电源電源
电源
电源
电源
电源
支架
支架
基板组
底座
支架、仅 规格
滑杆仅 规格
支架
支架
风扇
动力继电器、仅 规格
动力继电器仅 规格
动力继电器

维修调整要领书
11-6
A
C
(
L
)
A
C
(
N
)
N
.
C
.
N
.
C
.
F
G
C
N
1
C
O
S
E
L
L
C
A
1
0
0
S
-
2
4
Y
η
B
S
D
2
4
S
A
-
U
C
P
1
3
5
A
I
D
E
C
N
R
W
1
0
-
5
A
C
P
4
1
0
A
P
&
B
W
2
8
X
Q
1
A
-
1
0
A
C
L
1
(
B
)
A
C
N
1
(
B
)
T
B
5
R
L
1
G
7
L
-
2
A
-
B
U
B
J
(
2
4
V
)
+
2
4
V
R
T
N
C
A
R
R
Y
_
S
V
_
O
N
C
N
0
3
6
D
1
A
C
L
1
(
C
)
A
C
N
1
(
C
)
T
B
5
P
O
W
E
R
-
U
N
I
T
F
A
N
S
E
R
V
I
C
E
O
U
T
L
E
T
+
2
4
V
R
T
N
S
V
_
O
N
1
1
+
2
4
V
R
T
N
S
V
_
O
N
1
1
R
L
4
D
4
G
7
J
-
4
A
-
T
(
2
4
V
)
+
4
8
U
N
(
B
)
+
4
8
U
N
(
B
)
+
2
4
V
R
T
N
S
V
_
O
N
1
1
C
N
0
3
5
+
4
8
U
N
(
A
)
+
4
8
U
N
(
A
)
T
B
7
F
A
N
_
S
T
O
P
+
2
4
V
R
T
N
+
2
4
V
C
N
0
3
7
+
4
8
U
N
+
4
8
U
N
+
4
8
U
N
R
T
N
(
C
)
+
4
8
U
N
R
T
N
(
A
)
T
B
7
+
4
8
U
N
R
T
N
(
B
)
C
P
5
4
0
A
F
U
J
I
C
P
5
1
B
S
/
0
4
0
A
C
3
4
V
_
L
T
B
1
A
C
3
4
V
_
N
T
B
2
Z
/
T
P
O
W
E
R
P
C
B
C
P
2
5
0
A
F
U
J
I
C
P
5
2
B
S
/
0
5
0
0
0
2
:
2
C
P
O
W
E
R
-
U
N
I
T
I
N
S
I
D
E
P
O
W
E
R
-
P
C
B
(
1
/
2
)
+
2
4
V
Z
+
2
4
V
Z
+
2
4
V
Z
R
T
N
+
2
4
V
Z
R
T
N
C
P
1
3
0
A
F
U
J
I
C
P
5
3
B
S
/
0
3
0
T
F
2
(
A
C
)
T
F
1
(
D
C
)
R
L
3
R
L
2
C
P
3
1
5
A
P
&
B
W
2
8
X
Q
1
A
-
1
5
0
0
2
:
2
C
0
0
2
:
2
C
L
1
2
L
1
1
+
2
4
V
Z
+
2
4
V
Z
R
T
N
A
C
R
2
A
C
S
2
A
C
T
2
A
C
R
2
A
C
S
2
A
C
T
2
(
X
Y
-
D
R
V
P
O
W
E
R
)
(
X
Y
-
D
R
V
P
O
W
E
R
)
(
Z
T
-
D
R
V
P
O
W
E
R
)
(
V
O
L
T
A
G
E
C
H
E
C
K
)
L
O
A
D
L
O
A
D
A
W
G
2
2
A
W
G
1
8
A
C
R
2
A
C
S
2
A
C
T
2
A
C
R
2
A
C
S
2
A
C
T
2
L
1
2
L
1
1
L
1
2
L
1
1
L
1
2
L
1
1
图 电源装置的连接图