KD-2077_Maintenance_Guide_Rev1.1_C - 第185页
Rev1.1 维修调整要领书 11-37 11-8-3-2. 开关的组装 レンズ 緑・赤・黄 スイッチ アクチュエータ ベゼル カバー無・有 +5VLED 緑・橙 凸部分を向かって 左側にする ・ 对象部件 透镜( HA005520010, HA00552001A, HA00552001B ) LED ( HA00534006A, HA005340060 ) 监视窗( HA005520030 ) 开关调节器( HA005340020 )…

Rev1.1
维修调整要领书
11-36
SW1 SW2 SW3
SW4 SW5 SW6
SW7
11-8-3.操作SW电路基板开关的安装
操作SW电路基板上的插座,请按照下列规格安装起动开关、停止开关等按键开关。
11-8-3-1. 组成
请将起动开关、停止开关等按钮开关如下图所示根据设计规格安装在操作开关基板的插座上。
No. 开关名称 作动器 LED 监视窗 透镜 备注
SW1 ONLINE HA005340020 HA00534006B HA00534004A HA00552001B
SW2 START HA005340020 HA005520030 HA00552001B
SW3 SERVO FREE HA005340020 HA005340060 HA00534004A HA00552001A
SW4 ORIGIN HA005340020 HA005340060 HA005520030 HA00552001A
SW5 STOP HA005340020 HA005520030 HA005520010
SW6 1 CYCLE HA005340020 HA00534006B HA005520030 HA00552001B
SW7 EMERGENCY 40002205

Rev1.1
维修调整要领书
11-37
11-8-3-2. 开关的组装
レンズ
緑・赤・黄
スイッチ
アクチュエータ
ベゼル
カバー無・有
+5VLED
緑・橙
凸部分を向かって
左側にする
・
对象部件
透镜(HA005520010, HA00552001A, HA00552001B)
LED(HA00534006A, HA005340060)
监视窗(HA005520030)
开关调节器(HA005340020)
① 把监视窗(黑)镶嵌护罩FUR的操作盘上。
从正面看操作盘,凸部安装在右侧
(安装调节器后「EAO」标记在上方)。
② 把 LED 镶嵌到开关调节器上之后,注意监视窗的凸部插入。
这里,卸下固定监视窗的螺母。
③ 插入调节器后,从操作盘后部插入监视窗(银色),用调节器固定螺母固定。
④ 最后把泛光镜头镶嵌到开关调节器上。
透镜
绿·红·黄
开关调节器
监视窗
保护罩无·有
+5V LED
绿·橙
使凸出的部分向左

Rev1.1
维修调整要领书
11-38
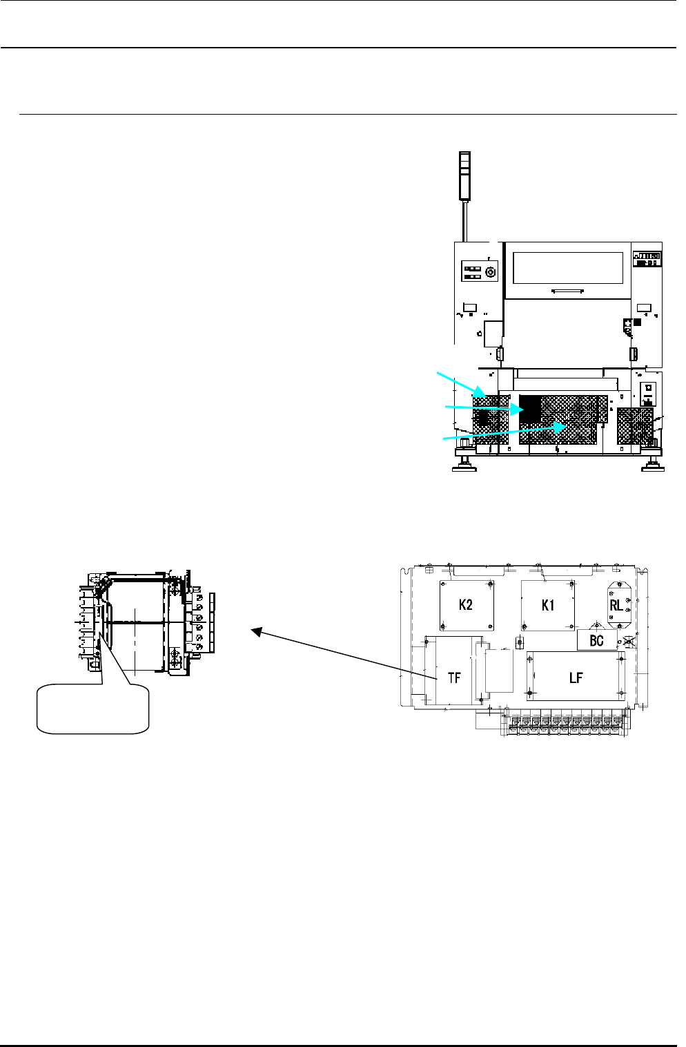
11-9.AC输入装置保险丝的更换方法
(注)请一定要切断作为装置电源来源的设备之电源后再进行操作。
当 AC 输入装置保险丝断掉后,
请按下述步骤更换。
保险丝货号:HF0110025S0
(惯性保险丝 250mA
作为装置的包装附件附带 3 个。)
1) 请取出 AC 输入装置。
(AC 输入装置位于图 11-9-1 所示的位置)
<操作步骤>
① 卸下中央的盖
② 拆下电源装置的 UPS 配线,取出 UPS
③ 拆下配线之后取出 AC 输入装置
2) 请更换保险丝。保险丝安装在图 11-9-2 所示的位置。
图 11-9-2 AC 输入装置俯视图
3) 请按与 1)相反的步骤安装到 AC 输入装置上。
保险丝
图 11-9-1 机器背面图
①
②
AC 输入装置