KD-2077_Maintenance_Guide_Rev1.1_C - 第54页
维修调整要领书 点胶头装置的安装 请参考第 章对 的摄像头装置和照明装置进行移植。 请按照与拆卸相反的顺序安装点胶头装置。 请参考 调整选择器单独的点胶头上升量。 (距离基板上面 ± ) 请再次…

维修调整要领书
点胶头装置的全部更换
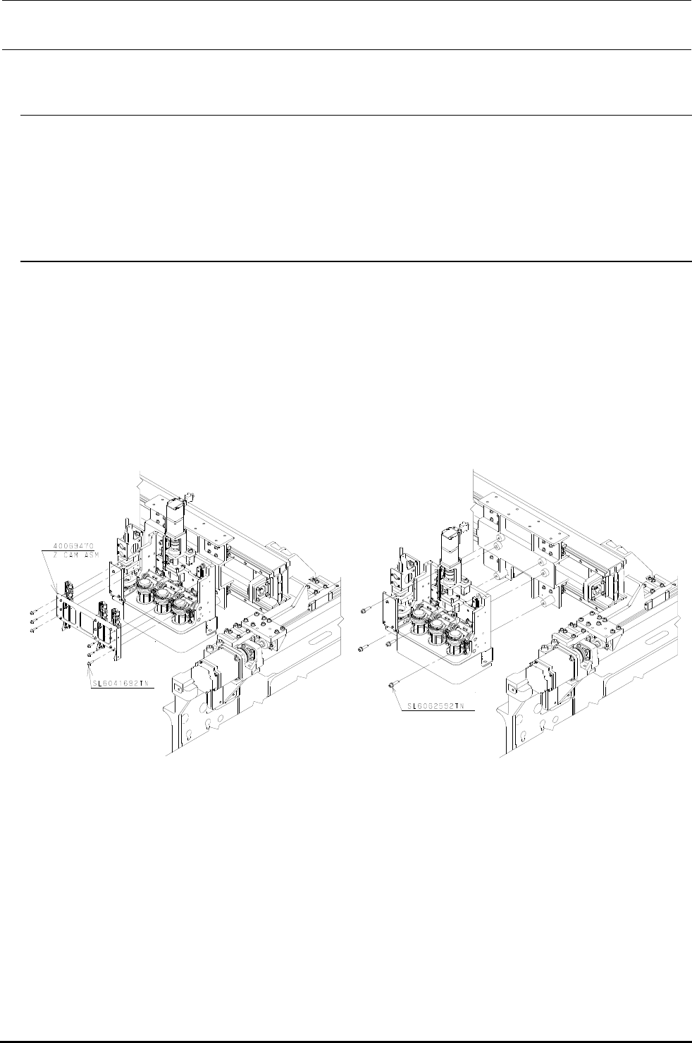
※ 这里的「点胶头装置」指的是比点胶头板更靠前侧的。
※是以把摄像头装置和照明装置移植为前提记入的。
点胶头装置的拆卸
从各个点胶头中拆下插头块组。
拆下和点胶头装置相连接的扎线、传感器等。
从 汽缸中拆下空气软管。
从点胶头主体拆下 斜锲组的有头螺钉( 处),拆下 斜锲组。
用手按住不让点胶头掉下来,拆下点胶头板的固定螺钉有头螺钉( 处)。
将点胶头主体往面前拉,将其从点胶头板的定位销中拔出一样进行拆卸。
从 底部拆下摄像头装置和照明装置。
夹紧转矩:
夹紧转矩:

维修调整要领书
点胶头装置的安装
请参考第 章对 的摄像头装置和照明装置进行移植。
请按照与拆卸相反的顺序安装点胶头装置。
请参考 调整选择器单独的点胶头上升量。
(距离基板上面 ±)
请再次取得下述的 参数。
轴原点偏差
轴原点偏差
请进行 的焦距调整。(参照 )
请参考 进行 汽缸的速度控制器的调整。
请再次取得下述的 参数。
关联偏差全部
原点粗调整
点胶头偏差
偏心偏差
点胶综合偏差
偏差(选项)

Rev1.1
维修调整要领书
2-27
2-12.更换后的再调整项目
Z轴原点
偏差
θ轴原点
偏差
OCC 关联
全偏差
原点
粗调整
点胶头偏
差
偏心 点胶综合
偏差
BMR
偏差
Z 轴电动机
○
(注 1)
Z 轴原点传感器
○
(注 1)
θ轴皮带
○
(注 1)
θ轴电动机
○
(注 1)
θ轴原点传感器
○
(注 1)
点胶头软管 ○ ○ ○ ○ ○(注 3)
坏板标记读码器
(选项)
○
点胶头装置
(注 2)
○
(注 1) ○(注 1) ○ ○
○
(注 1)
○(注 1)
○
(注 1
、
3)
○
(注 1) 请取得所有点胶头。
(注 2) 写着将 OCC 的摄像头装置和照明装置同时进行更换的前提。
取得 Z、θ 原点偏差后,请进行 OCC 的焦距调整(参照 5-5 焦距调整)和Z汽缸的速度
控制器调整。(参照 2-9-2 Z 汽缸的安装)
(注 3) 点胶综合偏差(参照 2-8-2 点胶头软管的安装)请在需要时输入。
※ MS参数请从表的左面依次取得。
※ 在取得了 Z 轴原点偏差和 BMR 偏差的场合,需要再次启动机器。
其他取得后请进行原点复位。
取得 MS 参数时,请在充分确认机器内部和周围安全后进行。
注意