OM-1078-002 - 第208页
AHI01EGP 6 6 6 6 6 6 6 6 EX-11EP EX-13EP EX-11EAD,EX-11EBD EX-13EAD,EX-13EBD +- 5 4 4 5 5 5 4 4 6 6 5 5 EX-11EP EX-13EP EX-11EAD,EX-11EBD EX-13EAD,EX-13EBD 6 6 4 4 10 10 5 5 5 4 4 6 6 6 -BPH518R (Light Receiving Side) -B…

AHI01EGP
444
4
4
6
6
6
6
6
6
6
6 6
6
6
6
6
6
6
10 10
4
4
4
4
4
4
44
4 4
4
8
12
44
4
5
3 3
33 3
55
44
44
-BPH504T
-YSV501
-BPH504R
-BPH505
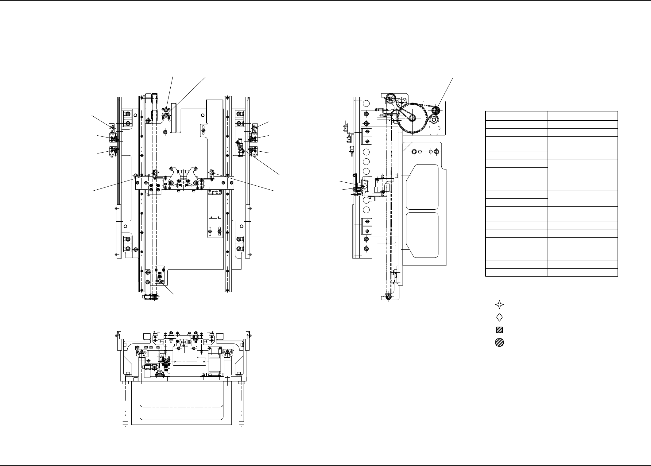
Symbol
Name
Elevator Axis Origin
Elevator Axis Limit (+)
Elevator Axis Limit (-)
Ejected Pallet Detection
(Traverse Side)
Closed Rack Shutter (Operator Side) Check
Right Return Position Missing Pallet Detection
Left Return Position Missing Pallet Detection
Open Right Rack Shutter (Traverse Side) Check
Closed Right Shutter (Traverse Side) Check
Open Left Rack Shutter (Traverse Side) Check
Closed Left Rack Shutter (Traverse Side) Check
Upper Safety Door Electromagnetic Lock
Lower Safety Door Electromagnetic Lock (Option)
Open Maintenance Cover Detection LS1
Closed Maintenance Cover Detection LS2
Elevator Axis Servomotor
Rack Shutter (Traverse Side) Closing Cylinder Valve
(Light Emitting)
(Light Receiving)
-BPH501
-BPH502
-BPH503
-BPH504T
-BPH504R
-BPH505
-BPH520
-BPH521
-BPS501
-BPS502
-BPS503
-BPS504
-YSOL501 (-SQ501)
-YSOL502 (-SQ502)
-SQ503
-SQ504
-YSV501
MSVM-EV2
55
ALL
READY
CHANGE
HOME
POSITION POWER
ELEV.
Traverse Side
Rack Shutter Open
Left Cylinder
Traverse Side
Rack Shutter Open
Right Cylinder
-YSOL502
(-SQ502)
-BPH521
-YSOL501
(-SQ501)
-SQ503
-BPH502
-SQ504
-BPH520
-BPH501
-BPH503
MSVM-EV2
-BPS504
-BPS503
-BPS502
-BPS501
Note
: -BPH
: -BPS
: -YSOL, -SQ
: -YSV
: MSVM
0311-002 A(M756JEV--2103) 5-6
3. Layout of Sensors, Switches, and Loads
Elevator Section
3. Layout of Sensors, Switches, and Loads

AHI01EGP
66
6 6 6 6
66
EX-11EP
EX-13EP
EX-11EAD,EX-11EBD
EX-13EAD,EX-13EBD
+-
5
4 4
55
5
44
6 6
55
EX-11EP
EX-13EP
EX-11EAD,EX-11EBD
EX-13EAD,EX-13EBD
6
6
44
1010
5 55
4 4
6
6
6
-BPH518R
(Light Receiving Side)
-BPH514T
(Light Projecting Side)
MSVM-TV2
-YSV503
-BPS511
-BPS512
-BPH512
-BPH513 -BPH511
-BPH522R
(Light Receiving Side)
-BPH517R
(Light Receiving Side)
-BPH522T
(Light Projecting Side)
-BPH518T
(Light Projecting Side)
-BPH517T
(Light Projecting Side)
-BPH514R
(Light Receiving Side)
Pallet Chuck Claw Opening
Note
Symbol Name
Traverse Origin
Traverse Limit (+)
Traverse Limit (-)
Pallet Chuck Claw
Connection Check
Mispicked Component
Detection (Lower)
Mispicked Component
Detection (Upper)
Open Pallet Chuck Claw Check
Closed Pallet Chuck Claw Check
Traverse Servomotor
(Light Receiving Side)
(Light Receiving Side)
(Light Receiving Side)
(Light Projecting Side)
(Light Projecting Side)
(Light Projecting Side)
-BPH511
-BPH512
-BPH513
-BPH514T
-BPH514R
-BPH517T
-BPH517R
-BPH518T
-BPH518R
-BPS511
-BPS512
-YSV503
MSVM-TV2
: -BPH
: -BPS
: -YSV
: MSVM
Mispicked Component
Detection (Upper)
(Light Receiving Side)
(Light Projecting Side)
-BPH522T
-BPH522R
0311-002 A(M756JTV--2101) 5-7
Traverse Section
3. Layout of Sensors, Switches, and Loads

4. Electrical Circuit Diagram
4. Electrical Circuit Diagram
4.1 Electrical and Electronic Symbols
"*" represents a numeral.
0109-001 5-8 AHI01EGP