OM-1078-002 - 第216页
AHI01EGP Load Power Supply Note (c) EV -Axis Speed Reduction Stop EV -Axis Driving Power Supply Shut-Off Output for Main Machine Interface ALL CHANGE PB LED Reserved Output 1 Reserved Output 2 Reserved Output 3 Rack Shut…

AHI01EGP
EV-Axis Servo Alarm
Main Machine Emergency Stop
Input for Main
Machine Interface
Open Maintenance
Cover Detection
Note (e)
Load Power
Shut-Off Detection
(Supply Check)
EV-Axis Positioning
Completed
ALL CHANGE PB
Upper Safety Door
Check
Lower Safety Door
Check
Safety Door
Electromagnetic Lock
Check Upper/Lower
READY PB
HOME POSITION PB
Type Code (1)
Type Code (2)
Type Code (3)
Not Available
Note (f)
From the cable on
the main machine
side
Shielded
Note (a)
From ASMD-EV2:CN1:25
I/O Board ILB6
From ASMD-EV2:CN1:31
From XCN2:2
Note (c)
Note (b)
Note (d)
Ejected Pallet
Detection
(Traverse Side)
Closed Rack Shutter
(Operator Side) Check
Open Right Rack Shutter
(Traverse Side) Check
Open Left Rack Shutter
(Traverse Side) Check
Closed Left Rack Shutter
(Traverse Side) Check
Reserved Input 1
Closed Right Rack Shutter
(Traverse Side) Check
Not Available
Not Available
Not Available
Not Available
Not Available
Not Available
Not Available
Not Available
Not Available
Note (e)
Notes: (a) Connect the drain line to Terminal No. 7 of the connector.
(b) Connection of Bonding Flat Cable (19 cores) (External 6 Colors Used)
(c) Not Connected, excluding the time when the machine is
equipped with the option for the magazine.
(d) Surrounded by (broken line) is the wiring in
the replenishment SW board.
(e) Surrounded by (broken line) is the wiring in the relay board.
(f) Surrounded by (broken line) are the wires connected to the main machine.
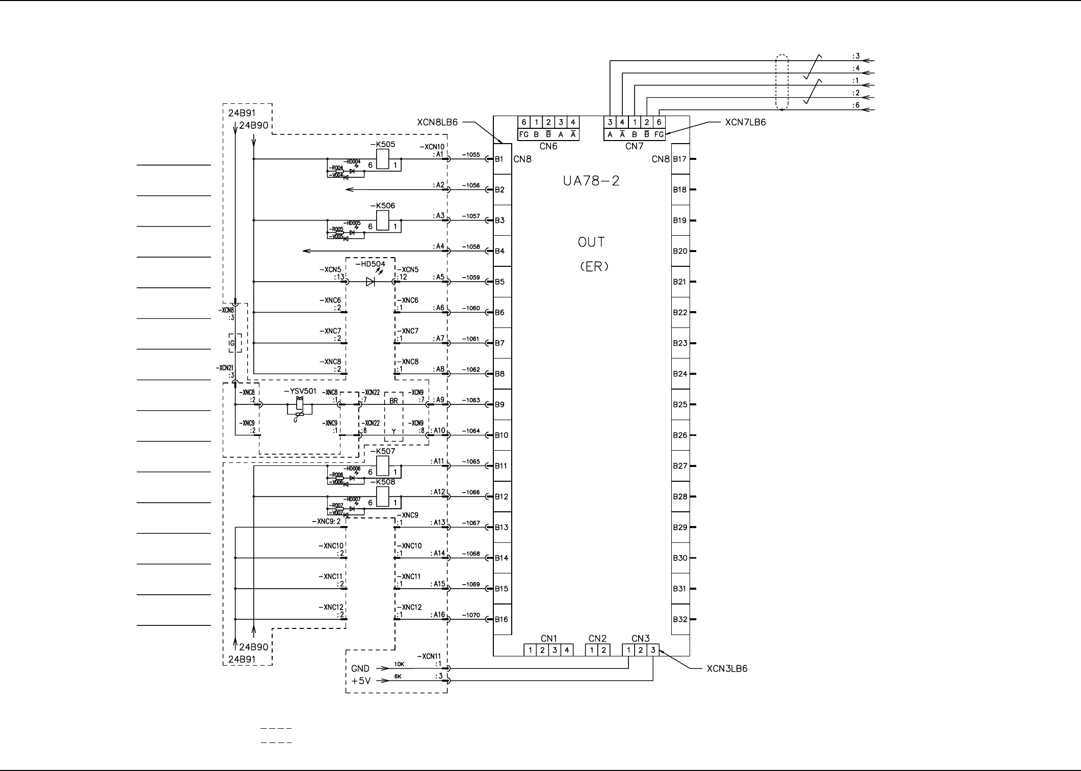
0311-002 B(M756WEV--2103) 5-14
I/O Board ILB6 (1/2)
4.2 Electric Circuit Diagram for Each Section

AHI01EGP
Load Power Supply
Note (c)
EV-Axis Speed
Reduction Stop
EV-Axis Driving
Power Supply Shut-Off
Output for Main
Machine Interface
ALL CHANGE PB LED
Reserved Output 1
Reserved Output 2
Reserved Output 3
Rack Shutter
(Traverse Side) Open
Reserved Output 4
(Not Available)
Upper Safety Door
Electromagnetic Lock
Lower Safety Door
Electromagnetic Lock
Reserved Output 5
Reserved Output 6
Reserved Output 7
Reserved Output 8
To -XCN2:1
To ASMD-EV2:CN01:44
I/O Board ILB6
Note (a)
Shielded
To UA76-4 IO16:CN3
Notes: (a) Connection of Bonding Flat Cable (19 cores) (Internal 1 Color Used)
(b) Connection of Bonding Flat Cable (19 cores) (External 2 Colors Used)
(c) Surrounded by (broken line) is the wiring in the relay board.
(d) Surrounded by (broken line) is the wiring in the replenishment SW board.
Note (b)Note (d)
0311-002 B(M756WEV--2104) 5-15
I/O Board ILB6 (2/2)
4.2 Electric Circuit Diagram for Each Section

AHI01EGP
Tray Replenishment
SW Step 1
Tray Replenishment
SW Step 2
Tray Replenishment
SW Step 3
Tray Replenishment
SW Step 4
Tray Replenishment
SW Step 5
Tray Replenishment
SW Step 6
Tray Replenishment
SW Step 7
Tray Replenishment
SW Step 8
Tray Replenishment
SW Step 9
Tray Replenishment
SW Step 10
Tray Replenishment
SW Step 11
Tray Replenishment
SW Step 12
Tray Replenishment
SW Step 13
Tray Replenishment
SW Step 14
Tray Replenishment
SW Step 15
Tray Replenishment
SW Step 16
Note (b)
Note (c)
Power
Terminal 2
Power
Terminal 1
Note (d)
Tray Replenishment
SW Step 17
Tray Replenishment
SW Step 18
Tray Replenishment
SW Step 19
Tray Replenishment
SW Step 20
Tray Replenishment
SW Step 21
Tray Replenishment
SW Step 22
Tray Replenishment
SW Step 23
Tray Replenishment
SW Step 24
Tray Replenishment
SW Step 25
Tray Replenishment
SW Step 26
Tray Replenishment
SW Step 27
Tray Replenishment
SW Step 30
Tray Replenishment
SW Step 29
Tray Replenishment
SW Step 28
Return Position Missing
Pallet Detection (Right)
Return Position Missing
Pallet Detection (Left)
Note (e)
Note (c)
Notes: (a) Connection of Bonding Flat Cable (19 cores)(Internal 6 Colors Used)
(b) Surrounded by (broken line) is the wiring in the replenishment SW board.
(c) Surrounded by (broken line) is the wiring in the relay board.
(d) Power Terminal 1: One closer to A1 Power Terminal 2: One closer to A40
(e) Connection of Bonding Flat Cable (19 cores) (External 2 Colors Used)
Note (a)
I/O Board IO16
0311-002 B(M756WEV--2105) 5-16
I/O Board IO16 (1/2)
4.2 Electric Circuit Diagram for Each Section