PTS-FIFEEDER-20.pdf - 第111页
このページはブランクページです This page is intentionally blank. 此页是空白页 1 1 1 P TS - FI FE E D E R - 2 0

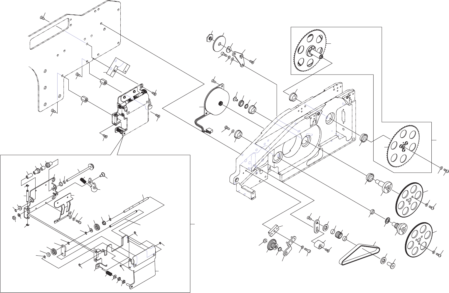
FEEDER W32c 1/3
フィーダ W32c 1/3
AB10334
No. Drg.No. & Code No. QTY Description Rating Remarks
番号 図番 & コード番号 個数 品名 規格 備考
53 RH02461 1 HARNESS
ハーネス
54 2MDLFC000904 1 PLATE, REAR
プレート リヤー
55 K69487 3 SCREW, HEX SOCKET COUNTERSUNK
小ネジ 六角穴皿
M03X008(3カ シロ) SL-250ショリ
56 K70355 1 SCREW, HEX SOCKET COUNTERSUNK
小ネジ 六角穴皿
M03X005 (3カ シロ) SL-250ショリ
60 PX01842 1 SEAL, BAR CODE
シール バーコード
unit serial number
61 PJ02963 1 BKT
BKT
62 K66188 4 SCREW, HEX SOCKET COUNTERSUNK
小ネジ 六角穴皿
M03X018(3カ シロ)
63 N10793 4 NUT, HEX
ナット 六角
M03 P=0.5(3カシロ)
64 PJ02971 1 SPACER
スペーサ
65 T4107K 1 DIGITAL SW
デジタルSW
A7BS-254-79-1
66 2MDLFC014100 2 SEAL
シール
W32c
67 XK04823 1 BOARD, PRINTED CIRCUIT
基板 プリント
FH1224B1F
68 PB01842 1 PLATE
プレート
69 2MDLFB040300 1 SHEET SW
シートSW
70 XH00201 1 HARNESS
ハーネス
71 PB88197 1 LEVER
レバー
72 PM02WC5 1 PIN
ピン
73 K64283 1 SCREW, HEX SOCKET COUNTERSUNK
小ネジ 六角穴皿
M04X008(3カシロ)
74 PM66294 1 BLOCK
ブロック
75 K5357X 1 SCREW, HEX SOCKET COUNTERSUNK
小ネジ 六角穴皿
M03X008(3カ シロ)
76 N4018A 1 SCREW, HEX SOCKET SET
ネジ 六角穴止め
M03X003 クボミサキ
78 RZ00490 1 TAPE
テープ
79 RZ00500 1 TAPE
テープ
110
PTS- FI FEEDER- 20
このページはブランクページです
This page is intentionally blank.
此页是空白页
111
PTS- FI FEEDER- 20

2
3
3
4
5
6
3
40
43
42
42
10
8
12
25
13
14
15
18
24
26
28
29
30
34
35
36
37
31
32
33
27
44
46
48
48.1
38
39
40
7
9
50
49
51
51
10
9
7
45
58
58
57
19
56
56
20
22
57
41
52
1
58
59
60
79
88
71
72
73
80
81
81
81
81
82
93
83
83
85
84
86
87
87
89
89
90
91
92
62
63
63
67
68
69
70
70
74
75
76
77
78
80
64
65
66
65
82
AB10334ࣇ࣮ࢲ:F
FEEDER W32c 2/3
112
PTS- FI FEEDER- 20