PTS-FIFEEDER-20.pdf - 第131页
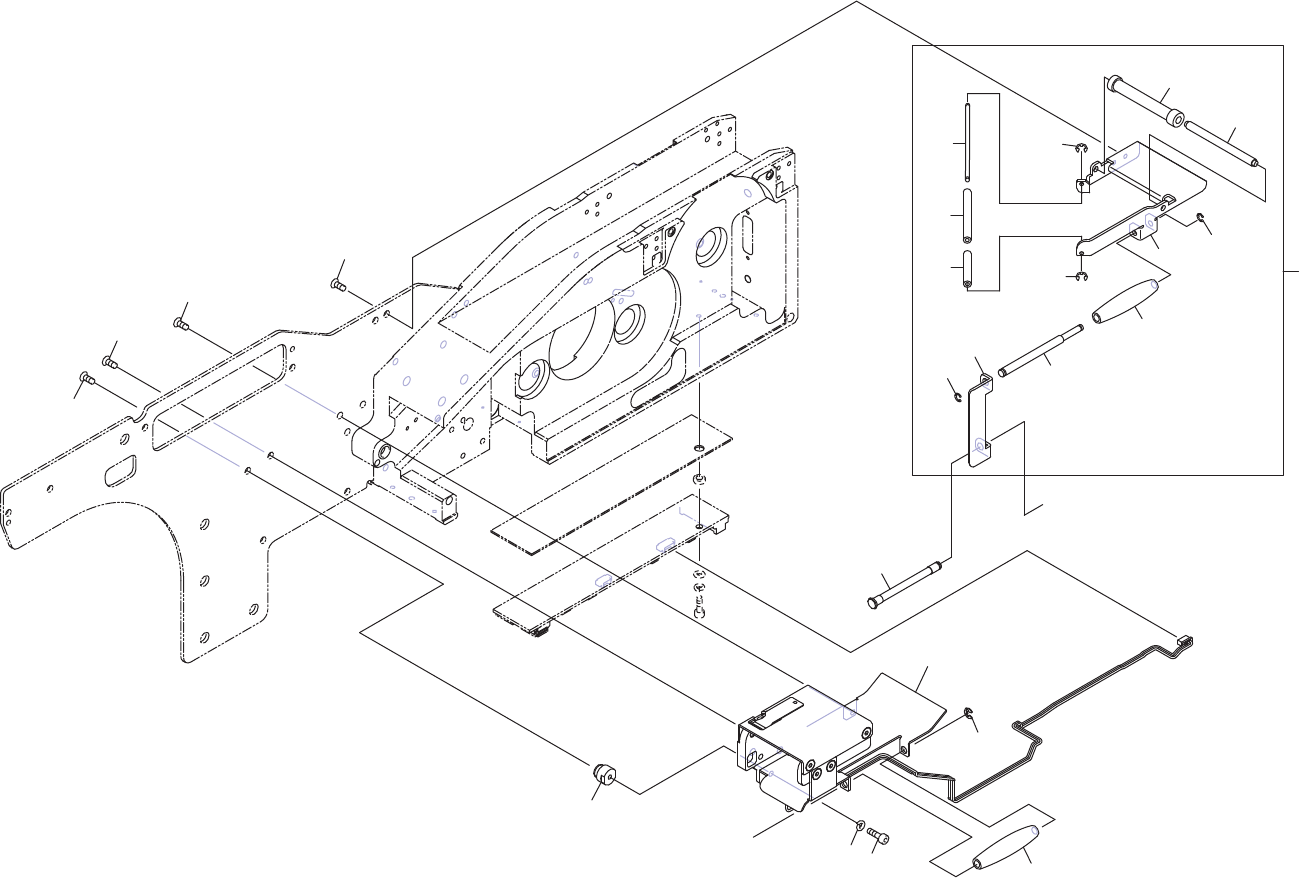
FEEDER W 44c 3/3 フィー ダ W4 4c 3/ 3 AB10431 No. Drg.No. & Code No. QTY Description Rating Remarks 番号 図番 & コー ド番号 個数 品名 規格 備考 1 AA8GM05 1 SENS OR センサ 2 K5357L 1 SCREW , HEX SOCKE T COUNTERSUN K 小ネジ 六角穴皿 M03X00 6(3 …

GG
GG
2
5
9
8
12
18
19
13
23
15
16
17
11
22
14
23
20
24
21
31
32
33
3
4
1
AB10431
ࣇ࣮ࢲ:F
FEEDER W44c 3/3
130
PTS- FI FEEDER- 20

FEEDER W44c 3/3
フィーダ W44c 3/3
AB10431
No. Drg.No. & Code No. QTY Description Rating Remarks
番号 図番 & コード番号 個数 品名 規格 備考
1 AA8GM05 1 SENSOR
センサ
2 K5357L 1 SCREW, HEX SOCKET COUNTERSUNK
小ネジ 六角穴皿
M03X006(3カ シロ)
3 H54251 1 BOLT, HEX SOCKET
ボルト 六角穴
M03X006(3カ シロ)
4 W1106C 1 WASHER, LOCK
ワッシャ スプリング
3M/M(3カ シロ)
5 K65003 1 SCREW, HEX SOCKET COUNTERSUNK
小ネジ 六角穴皿
M03X005(3カ シロ)
8 PM87183 1 PIN
ピン
9 K65003 1 SCREW, HEX SOCKET COUNTERSUNK
小ネジ 六角穴皿
M03X005(3カ シロ)
11 2ADLFC001800 1 BKT, ROLLER
BKT ローラ
12 K65003 2 SCREW, HEX SOCKET COUNTERSUNK
小ネジ 六角穴皿
M03X005(3カ シロ)
13 2MDLFC003000 1 BKT, ROLLER
BKT ローラ
14 PJ03553 1 ROLLER
ローラ
15 PM90432 1 PIN
ピン
16 S1003N 1 CIR-CLIP
サークリップ
ST-EW-2.5(3カ シロ)
17 S1003D 1 CIR-CLIP
サークリップ
ST-EW-2(3カ シロ)
18 PJ04532 1 ROLLER
ローラ
19 PM44121 1 PIN
ピン
20 PJ00965 1 ROLLER
ローラ
21 PJ01095 1 ROLLER
ローラ
22 PM44152 1 PIN
ピン
23 S61924 2 CIR-CLIP, E-TYPE
サークリップ E形
E-1.5 (3カ シロ)
24 PB063F0 1 BKT, SUPPORT
BKT 支え
31 PM90441 1 PIN
ピン
32 PJ03553 1 ROLLER
ローラ
33 S1003N 1 CIR-CLIP
サークリップ
ST-EW-2.5(3カ シロ)
131
PTS- FI FEEDER- 20

5
5
5
9
21
6
15
6
11
12
22
3
14
4
16
14
15
15
16
7
22
10
8
1
2
4
4
4
4
࣮ࣜࣝ࣍ࣝࢲ:Fࣥࢳ
REEL HOLDER W44c 15inch
AA85417
132
PTS- FI FEEDER- 20