PTS-FIFEEDER-20 - 第137页
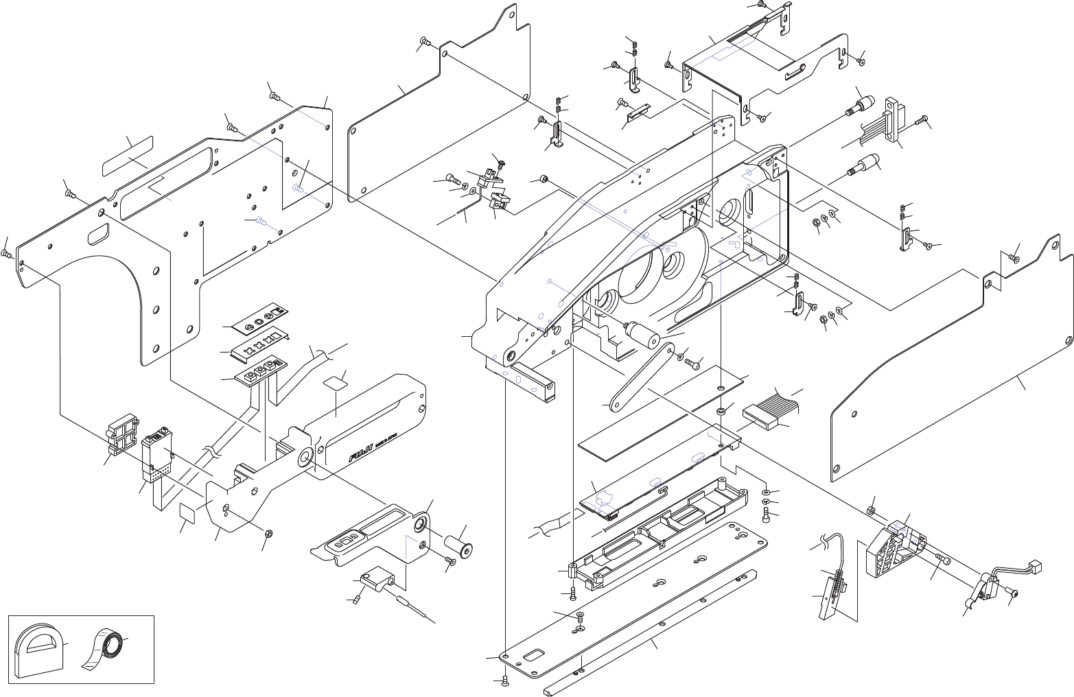
FEEDER W 56c 1/3 フィー ダ W5 6c 1/ 3 AB10530 No. Drg.No. & Code No. QTY Description Rating Remarks 番号 図番 & コー ド番号 個数 品名 規格 備考 1 AA36Z04 1 BODY 本体 2 2MDLFC0010 00 1 COVER カバー 3 K65003 5 SCREW , HEX SOCKE T COUNTERSU…

୧
㠃
ࢸ
࣮
ࣉ
15
mm x
20
mm
NW-5
10mm x 55mm
BB
CC
DD
DD
AA
BB
CC
AA
1
8
5
54
55
55
55
55
6
7
11
9
10
47
12
13
15
16
17
18
19
63
66
24
23
61
25
27
28
28
30
30
62
30
31
32
33
3
46
24
44
45
48
49
50
66
4
72
75
71
67
68
14
65
27
64
79
78
34
35
2
30
60
73
31
27
27
70
53
74
76
29
29.1
29.1
29
29.1
29
29.1
29
41
40
40.1
40.2
37
36
43
42
43.1
69
20
21
22
20
21
22
ࣇ࣮ࢲ:F
FEEDER W56c 1/3
AB10530
136
PTS- FI FEEDER- 20

FEEDER W56c 1/3
フィーダ W56c 1/3
AB10530
No. Drg.No. & Code No. QTY Description Rating Remarks
番号 図番 & コード番号 個数 品名 規格 備考
1 AA36Z04 1 BODY
本体
2 2MDLFC001000 1 COVER
カバー
3 K65003 5 SCREW, HEX SOCKET COUNTERSUNK
小ネジ 六角穴皿
M03X005(3カ シロ)
4 2MDLFC001100 1 COVER
カバー
5 K65003 4 SCREW, HEX SOCKET COUNTERSUNK
小ネジ 六角穴皿
M03X005(3カ シロ)
6 2MDLFC008501 1 PLATE
プレート
7 K5357L 4 SCREW, HEX SOCKET COUNTERSUNK
小ネジ 六角穴皿
M03X006(3カ シロ)
8 2ADLFB000900 1 GUIDE
ガイド
9 K65003 4 SCREW, HEX SOCKET COUNTERSUNK
小ネジ 六角穴皿
M03X005(3カ シロ)
10 2MDLFC001800 1 COVER
カバー
11 K5175Y 4 SCREW, C/R PAN
小ネジ 十穴鍋
M02X010(ステンレス)
12 2AGKFB001301 1 BOARD, PRINTED CIRCUIT
基板 プリント
FH1203E0F
13 PS00935 1 SHEET
シート
14 S62732 1 SPACER
スペーサ
EM-2-A
15 H54252 1 BOLT, HEX SOCKET
ボルト 六角穴
M03X008(3カ シロ)
16 W1106C 1 WASHER, LOCK
ワッシャ スプリング
3M/M(3カ シロ)
17 W1108B 1 WASHER, FLAT
ワッシャ 平
3M/MX0.5X7(3カシロ)
18 PM03958 1 PIN, ECCENTRIC
ピン 偏心
19 PM03967 1 PIN, ECCENTRIC
ピン 偏心
20 N1079B 2 NUT, HEX
ナット 六角
M04 P=0.7 1シュ(3カシロ)
21 W1106D 2 WASHER, LOCK
ワッシャ スプリング
4M/M(3カ シロ)
22 W1108S 2 WASHER, FLAT
ワッシャ 平
4M/MX0.8X9(1W-4)(3カシロ)
23 K51757 2 SCREW, C/R PAN
小ネジ 十穴鍋
M02.5X006(ステンレス)
24 RH02473 1 HARNESS
ハーネス
25 AA1TS10 1 GUIDE, TAPE
ガイド テープ
27 PM03557 4 PIN
ピン
28 2MDLFC017500 2 BKT
BKT
29 PZ22662 4 SPRING
スプリング
29.1 PZ22671 4 SPRING
スプリング
30 PM03557 8 PIN
ピン
31 2MDLFC017400 2 BKT
BKT
32 PM64632 1 BLOCK, REFERENCE
ブロック 基準
33 K5169H 1 SCREW, C/R COUNTERSUNK
小ネジ 十穴皿
M02X004(ステンレス)
34 2ADLFC006702 1 CLAMPER
クランパ
Assembly with wire/ワイヤー付きAssy
35 PZ02321 1 SPRING
スプリング
36 PH01500 1 BKT, CLAMP
BKT クランプ
37 H5426K 2 BOLT, HEX SOCKET
ボルト 六角穴
M04X008(3カ シロ)
40 2MDLFC020800 1 PLATE
プレート
40.1 H54252 2 BOLT, HEX SOCKET
ボルト 六角穴
M03X008(3カ シロ)
40.2 W1106C 2 WASHER, LOCK
ワッシャ スプリング
3M/M(3カ シロ)
41 PM97133 1 PIN
ピン
42 PZ02395 1 SW, MICRO
SW マイクロ
43 N10793 1 NUT, HEX
ナット 六角
M03 P=0.5(3カシロ)
43.1 K70747 1 SCREW, HEX SOCKET BUTTON
小ネジ 六角穴ボタン
M03X008 (3カ シロ) SL-250ショリ
44 AA68303 1 BKT, SENSOR
BKT センサ
45 H5425N 1 BOLT, HEX SOCKET
ボルト 六角穴
M02X008(3カ シロ)
46 W1106B 1 WASHER, LOCK
ワッシャ スプリング
2M/M(3カ シロ)
47 W60602 1 WASHER, FLAT
ワッシャ 平
1W-2X0.3X5.0 (3カ シロ)
48 PM05944 1 PIN, ECCENTRIC
ピン 偏心
49 XK04740 1 BOARD, PRINTED CIRCUIT
基板 プリント
FH1204B0F
50 K51989 1 SCREW, WASHER ASS'Y
小ネジ 座金組込み
M02X005 ナベセムス P4(3カシロ)
137
PTS- FI FEEDER- 20

FEEDER W56c 1/3
フィーダ W56c 1/3
AB10530
No. Drg.No. & Code No. QTY Description Rating Remarks
番号 図番 & コード番号 個数 品名 規格 備考
53 RH02461 1 HARNESS
ハーネス
54 2MDLFC000904 1 PLATE, REAR
プレート リヤー
55 K69487 4 SCREW, HEX SOCKET COUNTERSUNK
小ネジ 六角穴皿
M03X008(3カ シロ) SL-250ショリ
60 PX01862 1 SEAL, BAR CODE
シール バーコード
unit serial number
61 PJ02963 1 BKT
BKT
62 K66188 4 SCREW, HEX SOCKET COUNTERSUNK
小ネジ 六角穴皿
M03X018(3カ シロ)
63 N10793 4 NUT, HEX
ナット 六角
M03 P=0.5(3カシロ)
64 PJ02971 1 SPACER
スペーサ
65 T4107K 1 DIGITAL SW
デジタルSW
A7BS-254-79-1
66 PX10720 2 SEAL
シール
W56c
67 XK04823 1 BOARD, PRINTED CIRCUIT
基板 プリント
FH1224B1F
68 PB01842 1 PLATE
プレート
69 2MDLFB040300 1 SHEET SW
シートSW
70 XH00201 1 HARNESS
ハーネス
71 PB88197 1 LEVER
レバー
72 PM02WC5 1 PIN
ピン
73 K64283 1 SCREW, HEX SOCKET COUNTERSUNK
小ネジ 六角穴皿
M04X008(3カシロ)
74 PM66294 1 BLOCK
ブロック
75 K5357X 1 SCREW, HEX SOCKET COUNTERSUNK
小ネジ 六角穴皿
M03X008(3カ シロ)
76 N4018A 1 SCREW, HEX SOCKET SET
ネジ 六角穴止め
M03X003 クボミサキ
78 RZ00490 1 TAPE
テープ
79 RZ00500 1 TAPE
テープ
138
PTS- FI FEEDER- 20