PTS-FIFEEDER-20 - 第171页
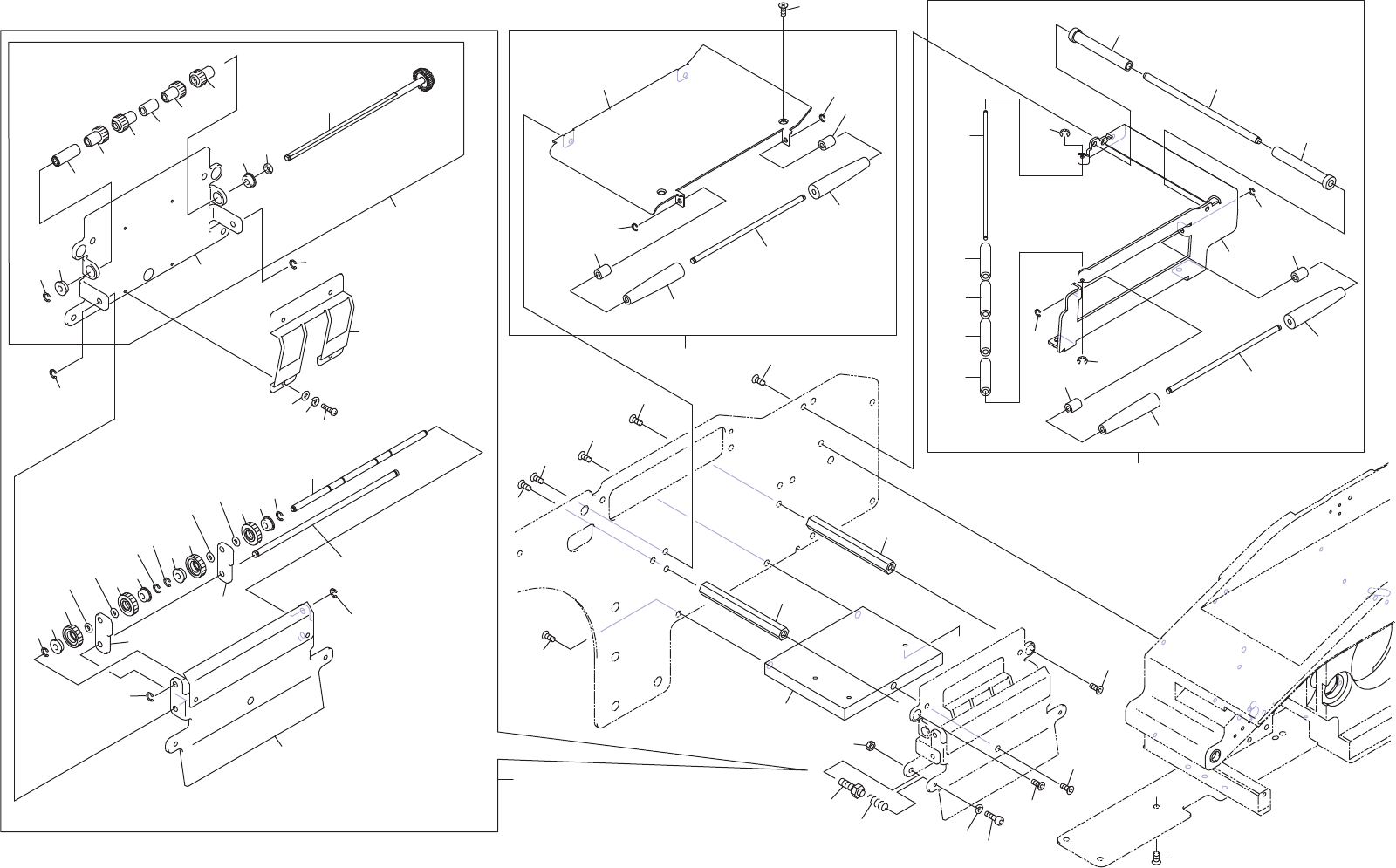
FEEDER W 88 3/3 フィー ダ W8 8 3/3 AA2HA53 No. Drg.No. & Code No. QTY Description Rating Remarks 番号 図番 & コー ド番号 個数 品名 規格 備考 1 2ADLFE003 901 1 BKT, ROLL ER BKT ローラ 2 PM01XA1 1 PIN ピン 3 S61924 2 CIR-CLIP, E-TYPE サークリッ…

AA
AA
11
42
44
43
46
45
19
20
22
21
26
23
23
25
27.1
32
29
30
31
38
40
40
37
37
34
33
28
36
33
17
42
42
41
42
41
22
24
25
47
26
24
26
24
24
39
27.2
33
33
23.1
23
23
23.1
27
48
49
49
49
13
12
14
15
14
16
16
18
1
9
4
4
4
4
2
9
6
10
6
3
3
8
5
10
7
50
23.1
26
23.1
10.1
10.1
14.1
14.1
AA2HA53ࣇ࣮ࢲ:
FEEDER W88 3/3
170
PTS- FI FEEDER- 20

FEEDER W88 3/3
フィーダ W88 3/3
AA2HA53
No. Drg.No. & Code No. QTY Description Rating Remarks
番号 図番 & コード番号 個数 品名 規格 備考
1 2ADLFE003901 1 BKT, ROLLER
BKT ローラ
2 PM01XA1 1 PIN
ピン
3 S61924 2 CIR-CLIP, E-TYPE
サークリップ E形
E-1.5 (3カ シロ)
4 S61819 4 SPACER
スペーサ
C-330
5 PM64021 1 PIN
ピン
6 PJ07021 2 ROLLER
ローラ
7 2MDLFE009801 1 BKT, ROLLER
BKT ローラ
8 PM71041 1 PIN
ピン
9 S1003D 2 CIR-CLIP
サークリップ
ST-EW-2(3カ シロ)
10 PJ07711 2 ROLLER
ローラ
10.1 S61818 2 SPACER
スペーサ
C-308
11 K65003 2 SCREW, HEX SOCKET COUNTERSUNK
小ネジ 六角穴皿
M03X005(3カ シロ)
12 2ADLFE004100 1 BKT, ROLLER
BKT ローラ
13 2MDLFE009901 1 GUIDE
ガイド
14 PJ07711 2 ROLLER
ローラ
14.1 S61818 2 SPACER
スペーサ
C-308
15 PM71041 1 PIN
ピン
16 S1003D 2 CIR-CLIP
サークリップ
ST-EW-2(3カ シロ)
17 K65003 2 SCREW, HEX SOCKET COUNTERSUNK
小ネジ 六角穴皿
M03X005(3カ シロ)
18 K5169X 2 SCREW, C/R COUNTERSUNK
小ネジ 十穴皿
M02.5X005(ステンレス)
19 AA37F10 1 GEAR
ギヤ
20 AA2HG02 1 LEVER
レバー
21 PM77733 1 PIN
ピン
22 S10190 2 CIR-CLIP
サークリップ
ST-EW-1.5(ステンレス)
23 PJ08591 4 GEAR
ギヤ
23.1 W1108B 4 WASHER, FLAT
ワッシャ 平
3M/MX0.5X7(3カシロ)
24 H4569A 4 BEARING, MINIATURE
ベアリング ミニチュア
DDLF-630ZZ
25 PB46391 2 SCRAPER
スクレーパ
26 S1003D 4 CIR-CLIP
サークリップ
ST-EW-2(3カ シロ)
27 AA37E10 1 GEAR
ギヤ
27.1 PB46414 1 BKT
BKT
27.2 PM00EM2 1 SPACER
スペーサ
28 PB45823 1 PLATE
プレート
29 K5175N 4 SCREW, C/R PAN
小ネジ 十穴鍋
M02X003(ステンレス)
30 W1106B 4 WASHER, LOCK
ワッシャ スプリング
2M/M(3カ シロ)
31 W60602 4 WASHER, FLAT
ワッシャ 平
1W-2X0.3X5.0 (3カ シロ)
32 AA3HR07 1 GEAR
ギヤ
33 PM91102 4 GEAR
ギヤ
34 PJ04321 1 COLLAR
カラー
36 PJ08493 1 COLLAR
カラー
37 H4569A 2 BEARING, MINIATURE
ベアリング ミニチュア
DDLF-630ZZ
38 S1003D 1 CIR-CLIP
サークリップ
ST-EW-2(3カ シロ)
39 PM76971 1 PIN
ピン
40 S1003D 2 CIR-CLIP
サークリップ
ST-EW-2(3カ シロ)
41 PM77031 2 SPACER
スペーサ
42 K5357X 4 SCREW, HEX SOCKET COUNTERSUNK
小ネジ 六角穴皿
M03X008(3カ シロ)
43 PZ24341 2 SPRING
スプリング
44 H54251 2 BOLT, HEX SOCKET
ボルト 六角穴
M03X006(3カ シロ)
45 W1106C 2 WASHER, LOCK
ワッシャ スプリング
3M/M(3カ シロ)
46 PM04LT1 2 SCREW, ADJUSTING
ネジ チヨウセイ
47 N1079B 2 NUT, HEX
ナット 六角
M04 P=0.7 1シュ(3カシロ)
171
PTS- FI FEEDER- 20

FEEDER W88 3/3
フィーダ W88 3/3
AA2HA53
No. Drg.No. & Code No. QTY Description Rating Remarks
番号 図番 & コード番号 個数 品名 規格 備考
48 PM94563 1 BLOCK
ブロック
49 K5357X 3 SCREW, HEX SOCKET COUNTERSUNK
小ネジ 六角穴皿
M03X008(3カ シロ)
50 K5357L 3 SCREW, HEX SOCKET COUNTERSUNK
小ネジ 六角穴皿
M03X006(3カ シロ)
172
PTS- FI FEEDER- 20