PTS-FIFEEDER-20.pdf - 第37页
このページはブランクページです This page is intentionally blank. 此页是空白页 3 7 P TS - FI FE E D E R - 2 0

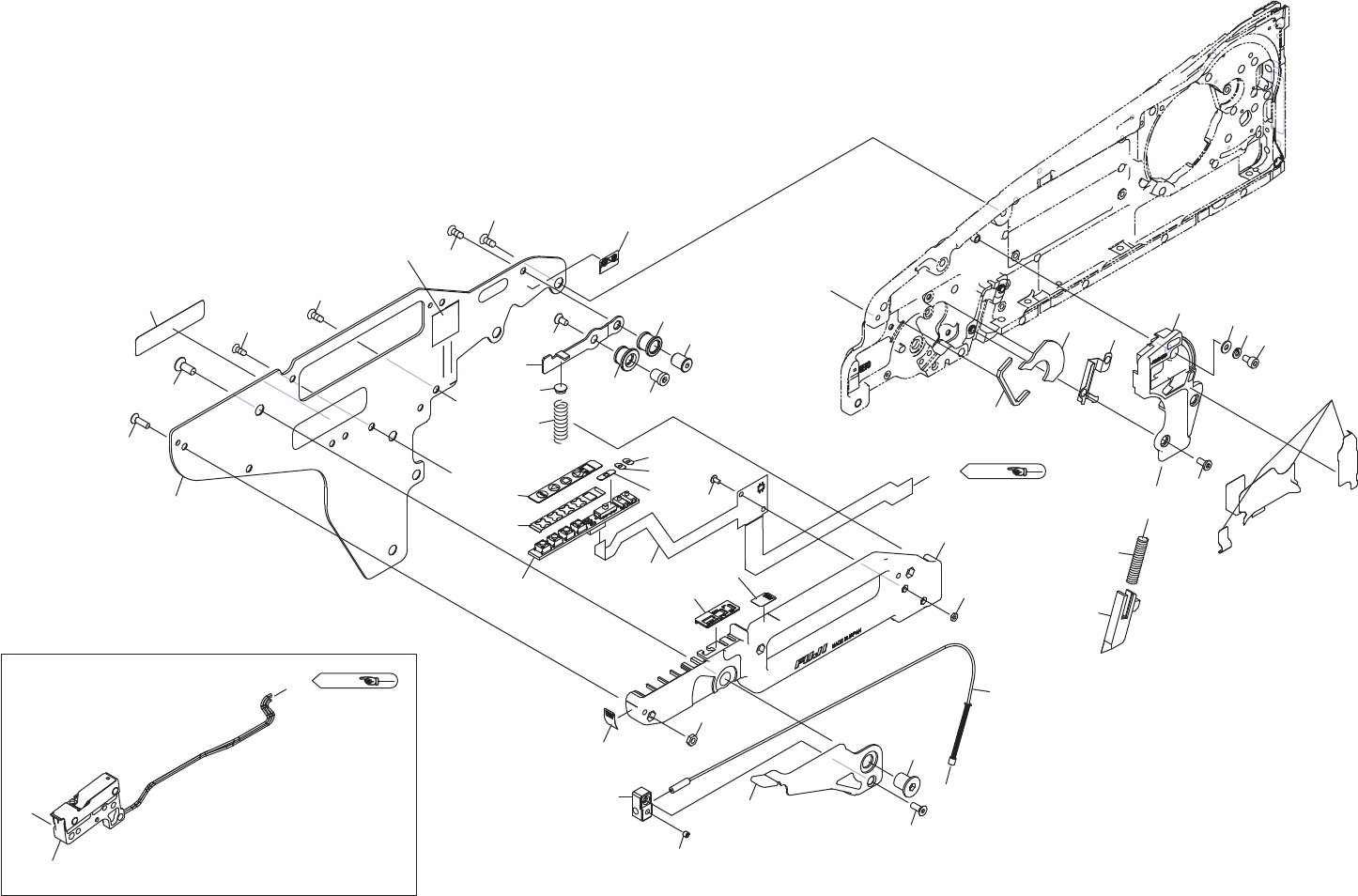
FEEDER W08f 1/2
フィーダ W08f 1/2
2ADLFA006143
No. Drg.No. & Code No. QTY Description Rating Remarks
番号 図番 & コード番号 個数 品名 規格 備考
70 2MDLFA254001 1 SPRING, TENSION
スプリング 引張
71 PP02645 1 GEAR
ギヤ
72 PP02772 2 SPACER
スペーサ
73 H4569A 1 BEARING, MINIATURE
ベアリング ミニチュア
DDLF-630ZZ
73.1 PM0K0Z2 1 BUSHING
ブシュ
74 S1003D 1 CIR-CLIP
サークリップ
ST-EW-2(3カ シロ)
75 PT01862 1 GEAR
ギヤ
76 W1121F 1 WASHER
ワッシャ
1417003-41004
77 PP02743 1 SCRAPER
スクレーパ
78 K5258D 2 SCREW, HEX SOCKET BUTTON
小ネジ 六角穴ボタン
M03X005(3カ シロ)
79 W1106C 2 WASHER, LOCK
ワッシャ スプリング
3M/M(3カ シロ)
80 PP03402 1 RETAINER, BEARING
押え ベアリング
81 K5357L 2 SCREW, HEX SOCKET COUNTERSUNK
小ネジ 六角穴皿
M03X006(3カ シロ)
82 PP02684 1 COVER
カバー
83 PZ13393 2 SCREW, C/R COUNTERSUNK
小ネジ 十穴皿
85 PP02668 1 COVER
カバー
86 K5254S 1 SCREW, C/R PAN
小ネジ 十穴鍋
U-0240-01
87 PZ13393 1 SCREW, C/R COUNTERSUNK
小ネジ 十穴皿
91 2MDLFA155102 1 PLATE
プレート
92 K5357L 2 SCREW, HEX SOCKET COUNTERSUNK
小ネジ 六角穴皿
M03X006(3カ シロ)
93 2MDLFA160601 1 RETAINER, TAPE
押え テープ
94 H54253 1 BOLT, HEX SOCKET
ボルト 六角穴
M03X010(3カ シロ)
95 W1106C 1 WASHER, LOCK
ワッシャ スプリング
3M/M(3カ シロ)
101 2MDLFA100305 1 GUIDE, TAPE
ガイド テープ
102 2MDLFA315100 1 GUIDE, TAPE
ガイド テープ
Peeling angle 25 degrees
103 2MDLFA301001 1 GUIDE, TAPE
ガイド テープ
NEXAS
111 2ADLFA011302 1 SUBPLATE
サブプレート
112 2ADLFA011801 1 SUBPLATE
サブプレート
Sub plate with magnet
113 2ADLFA017301 1 SUBPLATE
サブプレート
Sub plate with sponge
36
PTS- FI FEEDER- 20
このページはブランクページです
This page is intentionally blank.
此页是空白页
37
PTS- FI FEEDER- 20

EE
EE
DD
&RYHU7DSH
AA
Ref.1/
AA
JJ
JJ
KK
Ref.1/
1
2
46
47
4
5
6
3
7
8
45
9
11
12
13
14
15
16
17
18
19
20
21
22
23
24
25
26
27
28
29
30
32
33
34
35
35
37
42
42
43
44
39
40
31
41
10
38
52
51
ࣇ࣮ࢲ:I
FEEDER W08f 2/2
2ADLFA006143
38
PTS- FI FEEDER- 20