NPM_Parts List V2_3_N7203A329B03 - 第184页
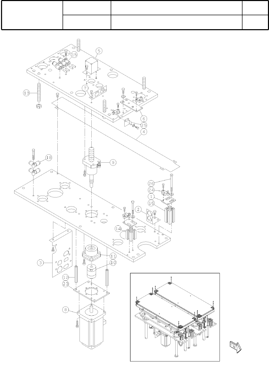
14-B 基 板 ホルダシングル 対応:NPM Bo ar d Hold er For S ing le: NP M パーツレイアウト Ki t N o . キット 品番 Kit N am e キット名称 N6 1007 020 2AA セクションNo. PARTS LAYOUT Section No. - - O77 ( KN610070202AA-08-2 )

Ref
No.
Remarks
R
1
Q'ty
14-A
基
板
ホルダシングル対応:NPM
Board Holder For Single:NPM
イラスト
No.
Part No.
品 名品番 数量
R
2
パーツリスト
Kit N
o
.
キット品
番
Kit Name
キット名称
N610070202AA
Part Name
備 考
セクションNo.
PARTS LIST
Section No.
R
3
PLATE
2
1 N210128435AB
PLATE
2
2 N210128436AB
PLATE
2
3 N210105699AB
GUIDE
4
4 N210130350AA
CYL-NUT
4
5 N210091597AA
CYL-NUT
4
6 KXFB00V7A00
DOG
2
8 N210105700AB
BRACKET
2
9 KXFB0A3CA00
STOPPER
2
10 N210091613AA
LINEAR-BUSH
8
12 N510035080AA LMH16UU
LINEAR-BUSH
8
13 N510035081AA LMFC16LUU
WASHER
6
14 N210117339AA
CYLINDER
4
15 KXF0A6PAA00 CJ2F16-115
JOINT
4
16 KXF0D2ZAA00 KQ2L04-M5
PLUNGER
2
17 N510020790AA 87BSJ4
SPRING
2
18 KXF0CTJAA00 6659
WASHER
4
19 N210117337AA
SPACER
2
20 N510037917AA ASF-595E
WASHER
8
21 N210117340AA
BOLT
4
22 N510032029AA CCBSS5-12
SPACER
8
23 N510035767AA CF-504E
SHAFT
8
24 N510035110AA SF16257M05B
JOINT
4
25 KXF0E36FA00 KQ2K04-M5
BOLT
8
26 N510040130AA CCBS5-12
URETHANE
8
27 N510038936AA 87URWH12-8-2
BOLT
2
28 N510017324AA
Hexagon socket head cap screw M3X30-10.9 A2J (Trivalent) Full thread
O76
--
( KN610070202AA-08-1 )

14-B
基
板
ホルダシングル対応:NPM
Board Holder For Single:NPM
パーツレイアウト
Ki
t
N
o
.
キット
品番
Kit Name
キット名称
N610070202AA
セクションNo.
PARTS LAYOUT
Section No.
--
O77
( KN610070202AA-08-2 )

Ref
No.
Remarks
R
1
Q'ty
14-B
基
板
ホルダシングル対応:NPM
Board Holder For Single:NPM
イラスト
No.
Part No.
品 名品番 数量
R
2
パーツリスト
Kit N
o
.
キット品
番
Kit Name
キット名称
N610070202AA
Part Name
備 考
セクションNo.
PARTS LIST
Section No.
R
3
PLATE
4
1 N210091599AB
BRACKET
2
2 N210097322AA
BRACKET
2
3 N210098277AB
COVER
1
4 N210091611AB
COVER
2
5 N210091612AA
BRACKET
2
6 N210097128AE
BRACKET
2
7 N210097326AB
MOTOR
2
8 N510039754AB
S
103H7822-19XS42
BALL-SCREW
2
9 N510044704AA BTK1404S-3.6ZZ+132.5LT(32253535K000)
COUPLING
2
10 N510043002AA XGT-25C-8X8
SUPPORT-UNIT
2
11 N510042612AA WBK10-629
SPACER
8
12 N510029496AA ASF-454E
SCREW
12
13 N510032612AA 87ANBN8-60
FRAME
2
14 N510049505AA SFF-204 L=30
JOINT
4
15 KXF0DZ4ZA00 KQ2U04-00
FRAME
2
16 N510049506AA SFF-204 L=46
JOINT
4
18 KXF0E00PA00 KQ2L04-00
PLATE
2
23 N210105639AB
SENSOR
8
24 N510049698AA EE-SX910-C2J-R 0.2M
DOG
2
25 N210128429AA
BOLT
4
26 N510017374AA
Hexagon socket head cap screw M4X55-10.9 A2J (Trivalent)
O78
--
( KN610070202AA-08-2 )