VM101 - 第114页
VM-101 2018.0520 - 108 - ■ 调整螺栓的配置图 ( 单位 : mm) 前 侧 A IR 0.5 MPa ~ 0.8 MPa 电源 819.5 8 14 5 24 6 7 22 3 860.5 1 680 660 77 77 基板传送基准 260 740 490 190 139.5 600.5 1 263 599 1 081 182

VM-101 2018.0520
- 107 -
13.
尺寸图
(
单位
: mm)
Remarks
上述示图的缩小比例与实际机器在严格上讲,并不完全一致。
在研讨生产线构成和尺寸时,请另行索取资料。
本机下部如有设置通风道等时,请确保与主体间空隙保持 40 mm 以上。
固定供给部规格 交换台车规格
1 022.5
954
2 000
1 500
900
1 010(左延长传送带的规格)
(基板传送高度)
830
820 5 5
(传送带长度)
(罩外形)
Air
电源
2 258
954 1 304
203
120
74
基板传送基准
卷盘支架
卷盘支架
180 180
1 004
1 010(右延长传送带的规格)
1 190(左右延长传送带的规格)
2 345
1 041 1 304
1 022.5
954
基板传送基准
1 004
托盘供料器规格
1 958 300
卷盘支架
1 958 87 300
2 360
1 056 1 304
1 022.5
954
基板传送基准
1 004
1 958 102 300
托盘供料器
卷盘支架
前 侧
前 侧
前 侧
交换台车

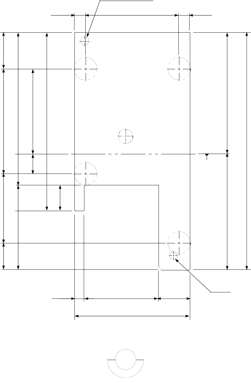
VM-101 2018.0520
- 108 -
■ 调整螺栓的配置图
(
单位
: mm)
前 侧
A
IR
0.5 MPa ~ 0.8 MPa
电源
819.5
8
14
5
24
6
7 22
3
860.5
1 680
660
77
77
基板传送基准
260 740 490
190
139.5 600.5
1 263
599 1 081
182

VM-101 2018.0520
- 109 -
■ 托盘供料器的外形尺寸(单体)
(
单位
: mm)
※1 托盘供料器高度 896 mm,是 VM101 的基板搬送高度是 900 mm 时的标准值。
可调整范围是: 896 mm。
※2 330 × 250 mm 尺寸的基板中心
382
(
从基板中心
※
2
)
基板中心
※
2
+65
-16.5
896
※
1
1 052
985
105
873
828
480