JX-300LED-Rev02.PDFA - 第53页
- - REF.NO N O TE PART NO D E S C R I P T I O N Q ty 1 401-36090 RAIL PLATE F L ASM 1 2 400-01048 RAIL PLATE F L (L ) (1 ) 3 401-35867 RAIL_ P LA T E_ F _ L ED_L (1 ) 4 400-11054 RAIL PLATE R (15 0 ) (1 ) 5 401-35863 C…

- -
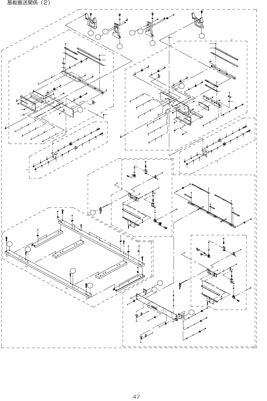
24.PWB CONVEYOR COMPONENTS (2)
G
B
C
D
7 7
7 7
7 9
7 8
7 9
7 8
7 5
7 5
7 3
7 5
7 7
7 7
8 1
8 0
7 6
7 5
7 4
7 6
7 7
8 0
7 7
6 5
6 5
6 7
6 9
6 7
7 1
6 8
6 9
6 7
6 7
6 8
6 5
6 4
6 6
6 5
6 3
7 0
6 6
7 0
6 7
6 7
6 2
7 2
E
3
4
2
1 5
6
1 5
7
7
8
9
1 0
1 1
1 2
1 3
1 6
2 0
2 4
2 1
2 32 2
2 5
2 6
2 7
2 9
2 8
1 4
2 9
2 8
1 4
2 5
2 7
2 6
1
1 9
6 0
5 9
A
3 1
3 7
3 2
3 3
5
3 8
3 9
4 0
4 1
4 2
4 3
4 6
5 0
4 9
5 4
5 2
5 3
5 1
5 5
5 6
5 7
5 6
5 7
5 5
4 7
5 8
4 8
3 7
3 5
3 0
5 9
6 0
F
F
6 1
I
A
6 1
5 7
5 5
5 6
5 7
5 5
5 6
4 7
5 8
4 8
4 7
5 8
4 8
4 7
5 8
4 8
2 7
2 5
2 62 7
2 5
2 6
2 7
2 5
2 6
G
I
H
H
D
E
C
B
5 7
5 6
5 5
5 7
5 6
5 5
5 7
5 6
5 5
1 5
7
1 8
1 7
3 6
3 7
4 4
4 4
4 4
4 5
3 4

- -
REF.NO NOTE PART NO D E S C R I P T I O N Qty
1 401-36090 RAIL PLATE FL ASM 1
2 400-01048 RAIL PLATE FL(L) (1)
3 401-35867 RAIL_PLATE_F_LED_L (1)
4 400-11054 RAIL PLATE R(150) (1)
5 401-35863 CONVEYOR_RAIL_B_2 (1)
6 SL-6041292-TN SCREW (3)
7 NM-3040520-SF FLANGE NUT M4 (6)
8 401-35861 CONVEYOR_RAIL_A (1)
9 SL-6030692-TN SCREW M3 L=6 (4)
10 401-35864 PWB_GUIDE_A_SPACER (1)
11 E2208-723-000 PWB GUIDE 6S (1)
12 SL-6031092-TN SCREW (3)
13 401-35865 PWB_GUIDE_B_SPACER (1)
14 SM-4042501-SC SCREW M4X0.7 L=25 (4)
15 SL-6041092-TN SCREW (6)
16 401-35866 PWB_INNER_SPACER (1)
17 401-36102 RAIL_PLATE_F_SUPPORT (1)
18 SL-6041092-TN SCREW (3)
19 E2012-721-000 ADJUST PLATE (1)
20 SL-6030692-TN SCREW M3 L=6 (2)
21 E2111-715-0A0 CONVEYOR PULLEY ASM. (1)
22 E2214-723-000 PULLEY SPACER 8.4 (1)
23 SM-4042001-SC SCREW M4 X 20 (1)
24 WP-0430800-SC WASHER M4 (1)
25 WP-0430801-SC WASHER M4 (5)
26 WS-0410002-KN SPRING WASHER M4 (5)
27 NM-6040001-SC NUT M4X0.7 TYPE1 (5)
28 E2089-721-0A0 CONVEYOR PULLEY B ASM. (4)
29 E2055-721-000 PULLEY SPACER (4)
30 401-36091 RAIL PLATE FR ASM 1
31 400-01051 RAIL PLATE FR(L) (1)
32 401-35868 RAIL_PLATE_F_LED_R (1)
33 400-11053 RAIL PLATE F(150) (1)
34 SL-6041092-TN SCREW (3)
35 401-35862 CONVEYOR_RAIL_B_1 (1)
36 SL-6041292-TN SCREW (3)
37 NM-3040520-SF FLANGE NUT M4 (6)
38 401-35861 CONVEYOR_RAIL_A (1)
39 SL-6030692-TN SCREW M3 L=6 (4)
40 401-35864 PWB_GUIDE_A_SPACER (1)
41 E2208-723-000 PWB GUIDE 6S (1)
42 SL-6031092-TN SCREW (3)
43 401-35865 PWB_GUIDE_B_SPACER (1)
44 SL-6041092-TN SCREW (6)
45 401-36102 RAIL_PLATE_F_SUPPORT (1)
46 401-35866 PWB_INNER_SPACER (1)
47 E2055-721-000 PULLEY SPACER (6)
48 SM-4042501-SC SCREW M4X0.7 L=25 (6)
49 E2012-721-000 ADJUST PLATE (1)
50 SL-6030692-TN SCREW M3 L=6 (2)
51 E2111-715-0A0 CONVEYOR PULLEY ASM. (1)
52 E2214-723-000 PULLEY SPACER 8.4 (1)
53 SM-4042001-SC SCREW M4X0.7 L=20 (1)
54 WP-0430800-SC WASHER M4 (1)
55 WP-0430801-SC WASHER M4 (7)
56 WS-0410002-KN SPRING WASHER M4 (7)
57 NM-6040001-SC NUT M4X0.7 TYPE1 (7)
58 E2089-721-0A0 CONVEYOR PULLEY B ASM. (6)
59 SL-6051092-TN BOLT 8
60 SL-6041092-TN SCREW 4
61 SL-6041492-TN SCREW 4
62 400-00831 PULLEY_BRAKET_L_ASM 1
63 E2157-721-000 PULLEY B (1)
64 E2016-715-000 IDLER PULLEY (1)
65 E2017-715-000 M LINER BUSH (4)
66 E2018-715-000 PULLEY SLEEVE (2)
67 WP-0531001-SC WASHER M5 (6)
68 WS-0510002-KN SPRING WASHER M5 (2)
69 NM-6050001-SC NUT M5X0.8 TYPE1 (2)
70 SM-6052502-TN SCREW (2)
71 400-00976 PULLEY_BRAKET (1)
72 400-00832 PULLEY_BRAKET_R_ASM 1
73 E2157-721-000 PULLEY B (1)
74 E2016-715-000 IDLER PULLEY (1)
75 E2017-715-000 M LINER BUSH (4)
76 E2018-715-000 PULLEY SLEEVE (2)
77 WP-0531001-SC WASHER M5 (6)
78 WS-0510002-KN SPRING WASHER M5 (2)
79 NM-6050001-SC NUT M5X0.8 TYPE1 (2)
80 SM-6052502-TN SCREW (2)
81 400-00976 PULLEY_BRAKET (1)

- -
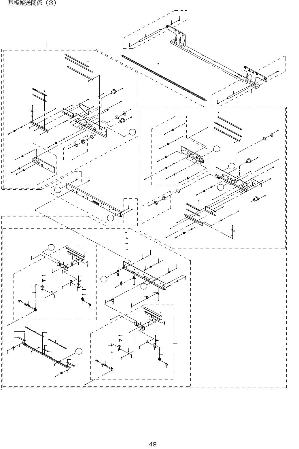
25.PWB CONVEYOR COMPONENTS (3)
1 7
1 6
3
4
5
6
6
7
7
8
9
8
9
1 1
1 0
1 2
1 4
1 8
1 7
1 8
1 6
2 0
1 9
2 1
2 2
2 3
2 4
2 6
3 2
3 1
2 8
2 9
3 3
3 4
3 5
3 5
3 8
4 2
4 1
4 3
4 2
4 1
4 4
3 0
3 4
3 7
3 6
4 4
3 9
3 9
3 6
3 9
3 8
4 0
4 3
4 5
4 6
4 7
4 8
4 9
5 0
5 1
5 2
4 8
4 7
4 6
4 5
4 3
4 0
3 8
3 9
3 6
3 9
3 9
4 4
3 6
3 7
3 4
3 0
4 4
4 1
4 2
4 3
4 1
4 2
3 8
3 5
3 5
3 4
3 3
2 9
2 8
3 1
3 2
2 6
2 5
A
A
B
B
5 4
5 3
5 5
5 3
5 5
5 4
5 6
5 7
5 6
5 7
5 6
5 7
2
1
6 1
6 0
2 5
6 5
6 6
6 6
6 3
6 4
6 2
6 2
6 3
6 6
6 5
6 6
6 4
1 3
2 7
2 7
6 7 6 8
1 5
5 8
5 9
7 0
6 9
6 9
D
E
D
E
C
C