CX-1_维修调整 - 第222页
Rev2.2 维修调整要领书 14-47 < < < < 调 整程 序 调整 程 序 调整 程 序 调整 程 序 > > > > 1. 1 . 1. 1. VR VR VR VR 7 7 7 7 ( ( ( ( A/D A/D A/ D A/D 变 换器 的 基准 电 压 变换 器 的 基准 电 压 变换 器 的 基准 电 压 变换 器 的 基准 电 压 ) ) ) ) 的调 整 的调 整 的调 整 的调 整 请一面以电压表观察 TP-…

Rev2.2
维修调整要领书
14-46
DSW
DSWDSW
DSW 1
11
1
(
((
(标准机
标准机标准机
标准机)
))
)
DSW1
DSW1DSW1
DSW1(
((
(装有
装有装有
装有 R
RR
R 贴装头选购件时
贴装头选购件时贴装头选购件时
贴装头选购件时)
))
)
DSW2
DSW2DSW2
DSW2
出货时全部
出货时全部出货时全部
出货时全部 OFF
OFFOFF
OFF
DSW3
DSW3DSW3
DSW3 DSW 3 上设定有基板的功能 Rev 和图案 Rev。一般情况下请不要变更。
下列是 Rev、图案 Rev 为 02 时的设定例
DSW4
DSW4DSW4
DSW4
仅3设定为 ON

Rev2.2
维修调整要领书
14-47
<
<<
<调整程序
调整程序调整程序
调整程序>
>>
>
1.
1
.1.
1.VR
VRVR
VR7
77
7(
((
(A/D
A/DA/D
A/D 变换器的基准电压
变换器的基准电压变换器的基准电压
变换器的基准电压)
))
)的调整
的调整的调整
的调整
请一面以电压表观察 TP-1(GND) -TP14 的电压,一面旋转 VR7,将电压调整到下表所示。
基板 REV01~02 1.25V±0.01
基板 REV03~ 2.50V±0.01
2.
2.2.
2.真空电平和温度传感器电平的调整
真空电平和温度传感器电平的调整真空电平和温度传感器电平的调整
真空电平和温度传感器电平的调整
1)
1
)1)
1)
VR1
VR1VR1
VR1~
~~
~VR5
VR5VR5
VR5(
((
(真空输入电压
真空输入电压真空输入电压
真空输入电压)
))
)的调整
的调整的调整
的调整
① 把 503 吸嘴安装到进行调整的轴上,打开真空开关。
② 请用电压表测量并记录 TP-1(GND)与外部输入校验端子间的电压 Vvac。
③ 请一面以电压表观察 TP-1(GND)与 A/D 输入校验端子间的电压,一面旋转真空输入电压调节
旋钮,将电压值调整到(Vvac/2)±0.01V。
各贴装头和检查端子、调整旋钮的关系如下。
贴装头 L1 L2 L3 L4 R
真空输入电压 VR1 VR2 VR3 VR4 VR5
外部输入检查端子 TP3 TP5 TP7 TP9 TP11
AD输入检查端子 TP2 TP4 TP6 TP8 TP10
2
22
2)
))
)
VR6
VR6VR6
VR6(
((
(温度传感器电压
温度传感器电压温度传感器电压
温度传感器电压)
))
)的调整
的调整的调整
的调整
① 用电压计测量并记录 TP-1(GND)和 TP13(外部输入校验端子)的电压 Vtmal。
② 一面用电压计测量 TP-1(GND)和 TP12(A/D 输入校验端子)的电压,一面转动 VR6 进行
调整,使 TP13 的电压为 TP12±0.01V。
注1、确认了 DC 电源输出电压的调整后进行。
注2、确认有关电压调整的传感器是否正确地连接。
VR1
T P
TP
TP
V R
TP
TP
V R
TP
TP
V R
TP
T P
9
V R
TP11
V R
贴装头主电路基板

Rev2.2
维修调整要领书
14-48
14
1
414
14-
--
-9
99
9.
..
.护罩关系
护罩关系护罩关系
护罩关系
14
1414
14-
--
-9
99
9-
--
-1
11
1.
..
.操作装置的构成
操作装置的构成操作装置的构成
操作装置的构成
操作装置由以下 4 种电路基板构成。
①40001953 操作电路基板组件
②40001956 操作SW电路基板A组件(后)
14
1414
14-
--
-9
99
9-
--
-2
22
2.
..
.操
操操
操作电路基板组件
作电路基板组件作电路基板组件
作电路基板组件(
((
(40001953
4000195340001953
40001953)
))
)的跨接设定
的跨接设定的跨接设定
的跨接设定
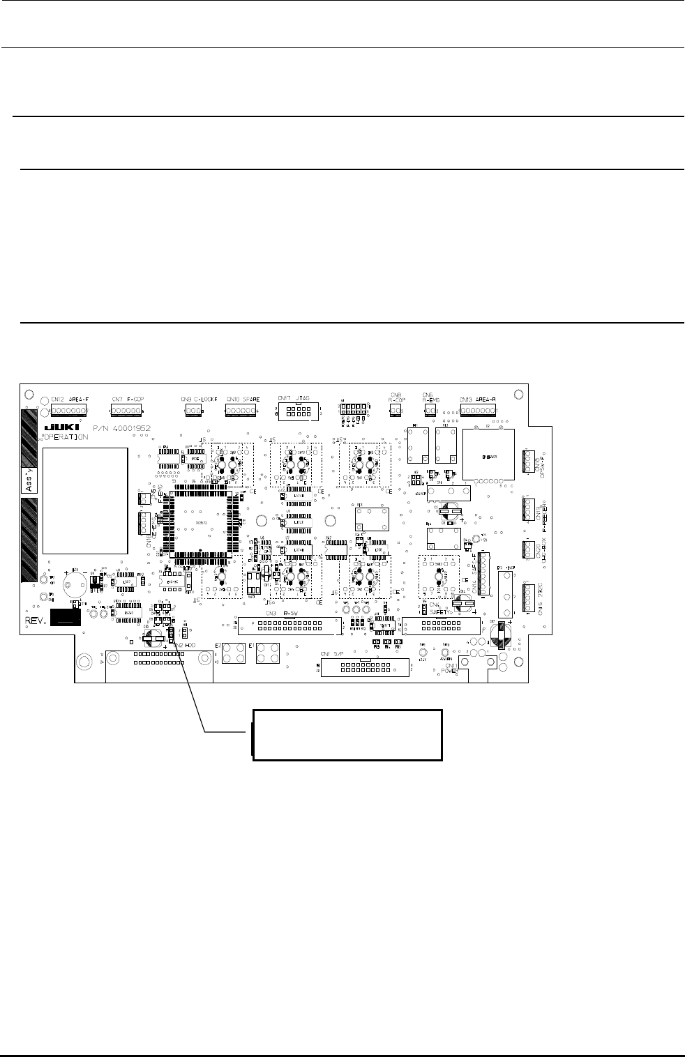
操作电路板的跳线设定请参照图 14-9-2-1 进行。
このリセプタクルが装着され、他に
は装着されてないかを確認
图
图图
图
14-9-2-1
14-9-2-114-9-2-1
14-9-2-1
确认此插座安装着,其它没有安装