CX-1_维修调整 - 第49页
Rev 2.2 维修调整要领书 2- 2 -2 . θ 马达(MNLA贴装头) 更换马达之后,需要重新输入有关轴原点的MS参数。 (输入项目请参照2-9项。) 1) 实施2-1-1项的1)~3),把②③向 左侧放倒。 2)实施2-2-1项的2),卸下马达护罩⑩。 3) 卸下θ马达的安装螺丝 ⑪ (4个),移 动、 θ 马达,松开皮带。 ⑪ 4) 拧松θ马达皮带轮的固定螺丝2个,向 上拉θ马达皮带轮,卸下θ马达。 5) 请按照相反的顺序组…

Rev 2.2
维修调整要领书
<程序>
① 把螺丝插到Z马达的螺丝孔,朝箭头方向用杆张
力 29.4 N(3kgf)的拉力,用安装螺丝固定。
② 请用杆张力把皮带中央部用 1.07 N的力量确认
垂度是否是 0.75 mm。
※在 Z 马达安装螺丝 ⑪(4个)上 涂上锁定
漆242后,拧紧固定,转矩为 2.3Nm。
※固定 Z 马达皮带轮的固定螺丝时,应注意
Z 马达轴的平部和皮带轮固定螺丝的方向。
固定螺丝的紧固转矩为 0.5Nm。
7) 组装后,请获取 MS 参数的基板上面高度。此值如果不在 1.5~4.5mm 之间的话,相对与 Z 轴马达轴
把马达皮带轮旋转 180 度固定,再次取得 MS 参数,确认基板上面高度在 1.5~4.5mm 之间。
拉
同步皮带 Z
(Z 轴球螺丝转动
1 圈的行程)
Z 传感器 OFF 区域
1.5~4.5mm 稳定区域
Z 传感器 ON 区域
6mm
2-7

Rev 2.2
维修调整要领书
2- 2-2.θ马达(MNLA贴装头)
更换马达之后,需要重新输入有关轴原点的MS参数。
(输入项目请参照2-9项。)
1) 实施2-1-1项的1)~3),把②③向
左侧放倒。
2)实施2-2-1项的2),卸下马达护罩⑩。
3) 卸下θ马达的安装螺丝
⑪
(4个),移 动、
θ
马达,松开皮带。
⑪
4)
拧松θ马达皮带轮的固定螺丝2个,向
上拉θ马达皮带轮,卸下θ马达。
5) 请按照相反的顺序组装。
6) 按照以下的程序进行皮带张力的确认
和调整。
<程序>
① 拧松安装螺丝,调整张力调整螺丝,
同时调整同步皮带T的张力,并用张
力计测定张力。
张力计设定值
Weight: 0.9 g/m
Width : 3 mm
Span : 58 mm
② 适当张力: 请确认是否是 5.6±1
N。
③ 张力调整后,请拧下调整螺丝。
※ 实施张紧时,要用手松一松皮带,看看是否已牢靠地嵌在皮带轮的牙齿上。
※ 皮带以 2 根为 1 组。文字的读向 2 根都请对好。再有,旋转方向的朝向要 180°反转。
※
请往θ马达安装螺丝
⑪
(4个)上
2.3Nm 来拧紧固定。
图2-2-3
⑫
张力调整螺丝
同步皮带T
2-8

Rev 2.2
维修调整要领书
※ 固定θ电动机皮带轮的制动螺丝时,θ电动机轴的平面部和皮带轮制动螺丝的朝向要一致,把
皮带轮与轴的端面对齐,按图示的朝向予以固定。固定转矩为 0.5Nm。
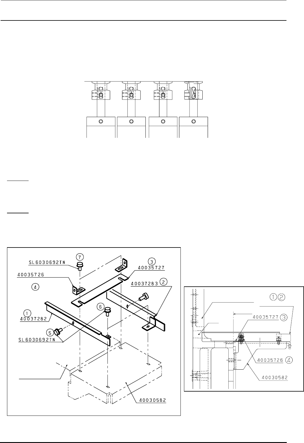
<θ皮带侧盖的安装和拆卸>
1)拆卸
(1)取下安装螺丝⑤、⑥,卸掉 T 皮带侧盖 L、R。
(2)取下安装螺丝⑦,卸掉 T 马达底座板③。
2)安装
(1)把 T 皮带侧盖 L、R 按住在 MNLA 贴装头托架的 A 面,在此状态下用安装螺丝⑥固定。
(2)把 T 马达底座板按住在 MNLA 贴装头托架的 B 面,在此状态下用安装螺丝⑦、⑤固定。
※ 安装螺丝要涂粘结剂 LOCTITE242 来固定。
L1 L2 L3 L4
图2-2-4
与端面对齐
有头带垫片螺丝
T 皮带侧盖角铁托架
T 皮带侧盖 L
有头带垫片螺丝
MNLA
贴装头托架
T 马达底座板
T 皮带侧盖
R
T 马达底座
MNLA
贴装头托架
A
面
B
面
T 皮带侧盖
T 马达底座板
T 侧盖角铁托架
T 马达底座
2-9