CX-1_维修调整 - 第64页
Rev 2.2 维修调整要领书 2- 9 . 更换后重新调整项目一览 贴装头芯 间调整 激光偏差 激光定标 贴装头 偏差 贴装综合 偏差 VCS摄 像机偏差 VCS综 合偏差 贴装头组件 ○ ( 注2 ) ○(注1) ○ ○ ○ ○ Z 马达 ○ θ马达 ○ ( 注2 ) ○(注1) ○ ( 注2 ) ○ ( 注2 ) ○ ○ ○ Z 传感器 ○ 激光传感器 ○ ○ ○ 同步皮带 Z ○ 同步皮带θ ○(注1) ○ S 箱组件 ○(注1…

Rev 2.2
维修调整要领书
2- 8.吸嘴套轴组件的更换
1) 拧松吸嘴套轴的安装螺丝⑰,卸下吸嘴套轴。
2) 安装时,用固定螺丝⑰进行固定。
这时,安装要做到螺丝位置与花键轴侧的划线一致。
3) 安装新的吸嘴套轴时,请按照以下的程序进行安装。
4) 更换作业结束后,请按照 2-9 项重新取得 MS 参数。
<程序>
① 把夹具吸嘴安装贴装头。
② 把测定标尺顶到夹具吸嘴,确认吸嘴套轴的摆动应在 0.02mm 以内。
如果超过 0.02mm,请逐渐错开螺丝位置与花键的划线位置,寻找何处小于 0.02mm。出 现 0.02mm
的组合时请在花键侧划上新的线。
※吸嘴套轴的安装螺丝,请用转矩0.5 Nm 进行固定。
※请拿住螺旋轴的黑色部分进行操作。触摸银色部分时请带上手套等,请勿用手直接触摸。
⑰
图2-8-2 FMLA 贴装头
图2-8-1 MNLA 贴装头
2-22

Rev 2.2
维修调整要领书
2- 9.更换后重新调整项目一览
贴装头芯
间调整
激光偏差 激光定标 贴装头
偏差
贴装综合
偏差
VCS摄
像机偏差
VCS综
合偏差
贴装头组件 ○(注2) ○(注1)
○ ○ ○ ○
Z 马达 ○
θ马达 ○(注2) ○(注1)
○(注2) ○(注2) ○ ○ ○
Z 传感器 ○
激光传感器 ○ ○ ○
同步皮带 Z ○
同步皮带θ ○(注1)
○
S 箱组件 ○(注1)
○ ○
吸嘴套轴 ○ ○
(注 1)激光偏差中的角度偏差也要重新取得。
(注 2)如果是 R 贴装头选购件(FMLA 贴装头),请重新取得。
MS参数请从左边按顺序输入。
注意
为了防止伤害人体,HOD 操作中请不要把手伸进机器,也不要把脸和头靠近机
器。
2-23

Rev 2.2
维修调整要领书
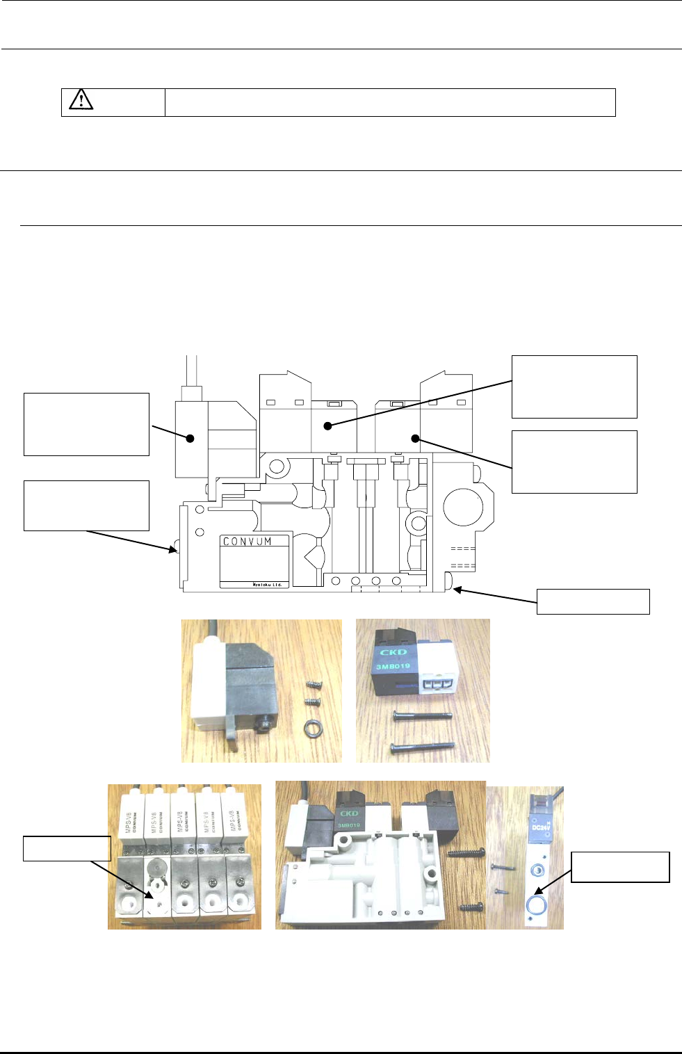
危险 为了防止突然的起动发生事故,请关掉电源之后再进行操作。
3
贴装头周边
3-1.推顶器的更换
降低主体的原压力,进行更换。
电磁阀、压力传感器因为插头类型的不同,请不要连接错误,更换后请用手动控制的贴装头真空和鼓
风装置ON/OFF进行确认。
注) 请不要弄丢电磁阀的里面有油封、压力传感器的O形环等零件。
真空传感器 电磁阀
更换消音器 推顶器单体(左:正面/右:侧面)
图 3-1-1 更换推顶器
真空破坏用电磁阀
圆头小螺丝(×2)
垫圈
真空用电磁阀
圆头小螺丝(×2)
垫圈
真空传感器
圆头小螺丝(×2)
O 形环
圆头小螺丝(×2)
消音器护罩
圆头小螺丝(×1)
推顶器过滤器
消音器
3-1