SM431_TechnicalReference(Kor_Ver2) - 第101页
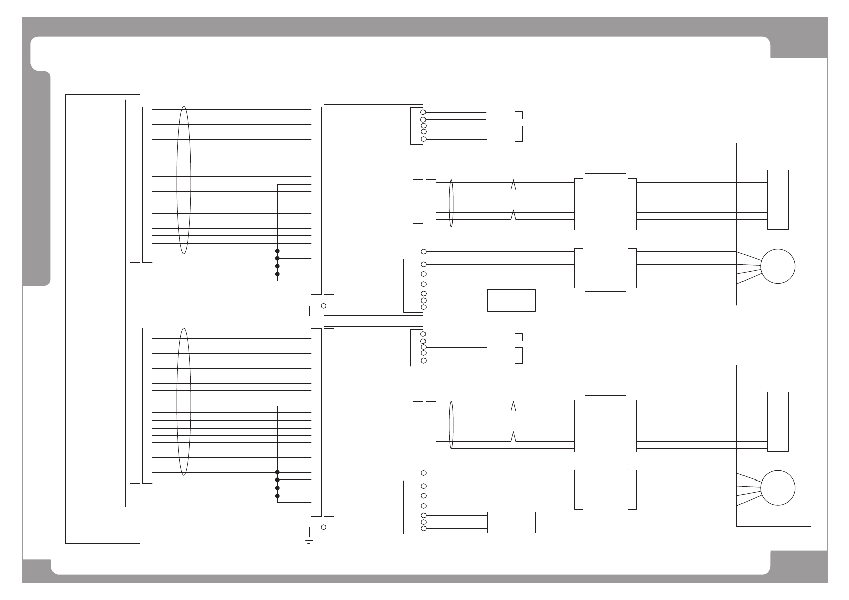
Page SAMSUNG TECHWIN 91 SM4 3 1 Servo Interface (Z,R, EL) Z3 MOTOR FLAT CABLE X7043N SEDES BOARD SM431_VM006:J90833089B (SM431_VM007:J90833090A) Z2 MOTOR Z1 MOTOR E SD W V U GND ENC_SHIELD +5V SD/ CN1(CN3) CN8 FRONT SEDE…

Page
SAMSUNG TECHWIN
90
SM4
3
1
Servo Interface (Y1, Y2)
X2
SERVO DRIVER
ROWA
13
X7043 NEW
TWIN SERVO B/D
19
22
30
21
20
16
18
17
15
14
9
12
11
8
7
CN1
3
4
2
1
13
19
22
30
21
20
16
18
17
15
14
GND
/EZ
EZ
EB
/EB
/EA
-COM
EA
INP
FG
50
9
8
49
25
38
36
24
23
21
48
22
41
39
9
12
11
8
7
3
4
2
1
+COM
/ALM
/ALMRST
/SON
CLR
/CW
/CCW
CCW
CW
6
30
37
31
29
7
5
4
3
Y1 AXIS
X5
RB2
RB3
RB1
L3
r
X1
L1
L2
t
TB1-38B(TB1-39B)
TB1-43B(TB1-44B)
TB1-33B(TB1-34B)
TB1-28B(TB1-29B)
TB1-23B(TB1-24B)
SM431_PW036:J90833036B (SM431_PW040:J90833040B)
REGENERATIVE
RESISTOR
GAIN
1010
27
13
8
50
9
41
21
13
31
30
38
36
25
24
23
49
48
22
39
37
27
29
7
6
5
4
3
Y1 MOTOR
D
C
B
A
U
V
W
PE
6
4
5
3
1
2
SHIELD
SD
SD/
0V
+5V
4
6
5
2
3
1
EN
H
G
K
L
J
SM431_MD006:J90832979B (SM431_MD010:J90832983B)
SM431_MD005:J90832978B (SM431_MD009:J90832982B)
SM431_MD024:J90833129A
X6
A
ROWB
5050
FG
38
8
99
8
38
RB1
RB3
RB2
X2
V
W
U
RESISTOR
REGENERATIVE
C
B
Y2 MOTOR
+5V
SHIELD
0V
SD
SD/
GAIN
CW
CCW
/CCW
/CW
CLR
/SON
/ALMRST
/ALM
+COM
INP
EA
-COM
/EA
/EB
EB
EZ
/EZ
GND
88
1616
17
18
20
21
30
22
19
30
22
20
21
18
19
17
10
11
12
9
14
15
13
12
14
15
13
10
11
9
2
4
3
77
4
3
11
2
2929
SERVO DRIVER
2121
23
24
36
25 25
36
23
24
22
48
49
48
49
22
3737
13
39
41
39
41
13
27
31
30
27
31
30
44
PE
66
55
X6
22
33
1
1
5
7
6
7
5
6
3
4
3
4
X5
Y2 AXIS
X1
t
L3
L2
L1
r
D
J
L
K
H
G
EN
SM431_VM001:J90833084B
(CN2)
TB1-28B(TB1-29B)
TB1-43B(TB1-44B)
TB1-38B(TB1-39B)
TB1-33B(TB1-34B)
TB1-23B(TB1-24B)
(SM431_VM002:J90833085B)
SM431_PW037:J90833037B (SM431_PW041:J90833041A)
SM431_PW036:J90833036B (SM431_PW040:J90833040B)
SM431_PW037:J90833037B (SM431_PW041:J90833041A)
SM431_PW038:J90833062B (SM431_PW042:J90833042B)
SM431_PW039:J90833039B (SM431_PW043:J90833043B)
(SM431_MD027:J90833132A)
SM431_MD025:J90833130A
(SM431_MD028:J90833133A)
SM431_MD007:J90832980A (SM431_MD011:J90832984B)
SM431_MD008:J90832981B (SM431_MD012:J90832985B)

Page
SAMSUNG TECHWIN
91
SM4
3
1
Servo Interface (Z,R, EL)
Z3 MOTOR
FLAT CABLE
X7043N SEDES BOARD
SM431_VM006:J90833089B
(SM431_VM007:J90833090A)
Z2 MOTOR
Z1 MOTOR
E
SD
W
V
U
GND
ENC_SHIELD
+5V
SD/
CN1(CN3)
CN8
FRONT SEDES SLAVE B/D
(REAR SEDES SLAVE B/D)
CN16
CN12
CN11
1 ~ 50
1 ~ 50
1 ~ 20
1 ~ 20
1 ~ 20 1 ~ 20
1 ~ 20
1 ~ 20
Z1-CMD
Z2-CMD
Z3-CMD
Z1-EN
Z1-PW
Z2-EN
Z2-PW
Z3-PW
Z3-EN
Z1 AXIS DRIVER
Z2 AXIS DRIVER
Z3 AXIS DRIVER
2 3 4 5 6
1 2 3 4
2 3 4 5 6
1 2 3 4
2 3 4 5 6
1 2 3 4
2 3 4 5 6
1 2 3 4
2 3 4 5 6
1 2 3 4
2 3 4 5 6
1 2 3 4
CN13
CN17
1 ~ 20
1 ~ 20
1 ~ 20
A6 A7 A1 A2 A3 A4 A8 A9 A10 A11 B1 B2 A5 B3 B4 B5 B6 B7 B8 B9
1 ~ 20
Z4-CMD
R-CMD
Z4-EN
Z4-PW
R-EN
R-PW
Z4 AXIS DRIVER
R AXIS DRIVER
2 3 4 5 6
1 2 3 4
2 3 4 5 6
1 2 3 4
2 3 4 5 6
1 2 3 4
2 3 4 5 6
1 2 3 4
5 4 3 2 1
3 2 1 4
A1 A2 B1 B2 A4 B4 A3 B3 A5
E
SD
W
V
U
ENC_SHIELD
+5V
SD/
E
SD
W
V
U
ENC_SHIELD
+5V
SD/
Z4 MOTOR
E
SD
W
V
U
ENC_SHIELD
+5V
SD/
R MOTOR
E
SD
W
V
U
ENC_SHIELD
+5V
SD/
EL MOTOR
E
SD
W
V
U
ENC_SHIELD
+5V
SD/
Z-AXIS I/F B/D
SM431_VM013
:J90833096A
SM431_FL001:J90832960C
CN1
A1,B1~A8,B8
CN2
A1,B1~A10,B10
A1,B1~A8,B8 A1,B1~A10,B10
SM431_MD017
:J90832990B
SM431_MD018
SM431_MD019
:J90832992B
SM431_MD020
:J90832993B
A1 A2 B1 B2 A4 B4 A3 B3 A5
A1 A2 B1 B2 A4 B4 A3 B3 A5 A1 A2 B1 B2 A4 B4 A3 B3 A5A1 A2 B1 B2 A4 B4 A3 B3 A5
A1 A2 B1 B2 A4 B4 A3 B3 A5 A1 A2 B1 B2 A4 B4 A3 B3 A5A1 A2 B1 B2 A4 B4 A3 B3 A5
CN3 CN4 CN5 CN6
SM431_MD021
:J90832994A
SM431_MD022
:J90832995A
GND
GND
GND
GND
GND
A1 A2 B1 B2 A4 B4 A3 B3 A5 A1 A2 B1 B2 A4 B4 A3 B3 A5
A1 A2 B1 B2 A4 B4 A3 B3 A5 A1 A2 B1 B2 A4 B4 A3 B3 A5
SM431_VM004(SM431_VM005)
:J90833087B(J90833088B)
X2
FG
X5
RB2
RB3
RB1
L3
r
X1
L1
L2
t
TB1-41B
TB1-31B
TB1-26B
TB1-21B
SM431_PW028:J90833028C
U
V
W
PE
6
4
5
3
1
2
FG
SD
SD/
5G
+5V
4
6
5
2
3
1
X6
SM431_PW029:J90833029B
SM431_PW031
(SM431_MD016
EL AXIS
SERVO DRIVER
50 25 36 38 9 8 07 29 03 04 05 06 30 27 31 37 39 41 13 21 22 48 49 23 24 42
PLUSE
*PLUSE
SIGN
*SIGN
CLR
GAIN
/ALMRST
/ALM
INP
-COM
GND
A
/A
B
/B
C
/C
FG
/S-ON
+24V
50 25 36 38 9 8 07 29 03 04 05 06 30 27 31 37 39 41 13 21 22 48 49 23 24 42
CN14
1 ~ 20
:J90833031B
J90832989B)
(SM431_PW032:J90833032C)
(SM431_PW033:J90833033B)
SM431_MD014
:J90832987B
SM431_MD013
J90832986A
(SM431_MD015
J90832988A)
(SM431_PW035
:J90833035B)
SM431_VM008:J90833091A
SM431_VM009:J90833092A
SM431_VM010:J90833093A
SM431_VM011:J90833094A
SM431_VM012:J90833095A
B1 A2 A1 B2 A5 B4 A4 B3 A3
SM431_MD030
:J90833061A
:J90832991B

Page
SAMSUNG TECHWIN
92
SM4
3
1
Servo Interface (FX, RX)
X2
SERVO DRIVER
ROWA
11
X7043N
17
20
19
18
14
16
15
13
12
7
10
9
6
5
CN2
3
4
2
1
11
17
20
19
18
14
16
15
13
12
GND
/EZ
EZ
EB
/EB
/EA
-COM
EA
INP
FG
50
9
8
49
25
38
36
24
23
21
48
22
41
39
7
10
9
6
5
3
4
2
1
+COM
/ALM
/ALMRST
/SON
CLR
/CW
/CCW
CCW
CW
6
30
37
31
29
7
5
4
3
FX AXIS
X5
RB2
RB3
RB1
L3
r
X1
L1
L2
t
TB1-41B
TB1-31B
TB1-26B
TB1-21B
SM431_PW028:J90833028C
REGENERATIVE
RESISTOR
GAIN
88
27
13
8
50
9
41
21
13
31
30
38
36
25
24
23
49
48
22
39
37
27
29
7
6
5
4
3
X MOTOR
U
V
W
PE
6
4
5
3
1
2
FG
SD
SD/
5G
+5V
4
6
5
2
3
1
EN
SM431_MD001:J90832974A
SM431_MD023:J90833128A
X6
ROWB
SM431_VM003:J90833086B
4
1
2
3
4
1
2
3
FLAT CABLE
1
2
3
4
5
3
6
2
4
5
SEDES BOARD
SM431_PW029:J90833029B
2727
2525
GND
FG
50
8
9
8
50
9
36
38
36
38
/EB
/EZ
EZ
EB
/EA
-COM
EA
INP
/ALMRST
/ALM
2121
4949
23
24 24
23
22
48 48
22
1313
39
41 41
39
31
37 37
31
PE
RB1
X2
RB3
RB2
W
V
U
+5V
5G
SD/
SD
FG
44
66
55
11
X6
33
22
SERVO DRIVER
/SON
/CCW
+COM
CCW
CW
/CW
44
77
29
30 30
29
6
5
6
5
RX AXIS
X5
33
t
L3
X1
L2
L1
r
TB1-26B
TB1-41B
TB1-31B
TB1-21B
44
3
2
1
3
2
1
SW MOTOR
FLAT CABLE
5
4
3
6
3
2
2
1
5
4
EN
CLR
GAIN
11
17
20
19
18
14
16
15
13
12
7
10
9
6
5
3
4
2
1
8
11
17
20
19
18
14
16
15
13
12
7
10
9
6
5
3
4
2
1
8
REGENERATIVE
RESISTOR
SM431_MD026:J90833131A
SM431_PW030:J90833030B
SM431_PW034:J90833034B
SM431_PW032:J90833032C
SM431_PW033:J90833033B
SM431_MD002:J90832975B
SM431_MD003:J90832976A
SM431_MD004:J90832977B
FG
SD
SD/
5G
+5V
SM431_MD029:J90833056A
FG
SD
SD/
5G
+5V
SM431_MD029:J90833056A