5OM-1075-002.pdf - 第14页
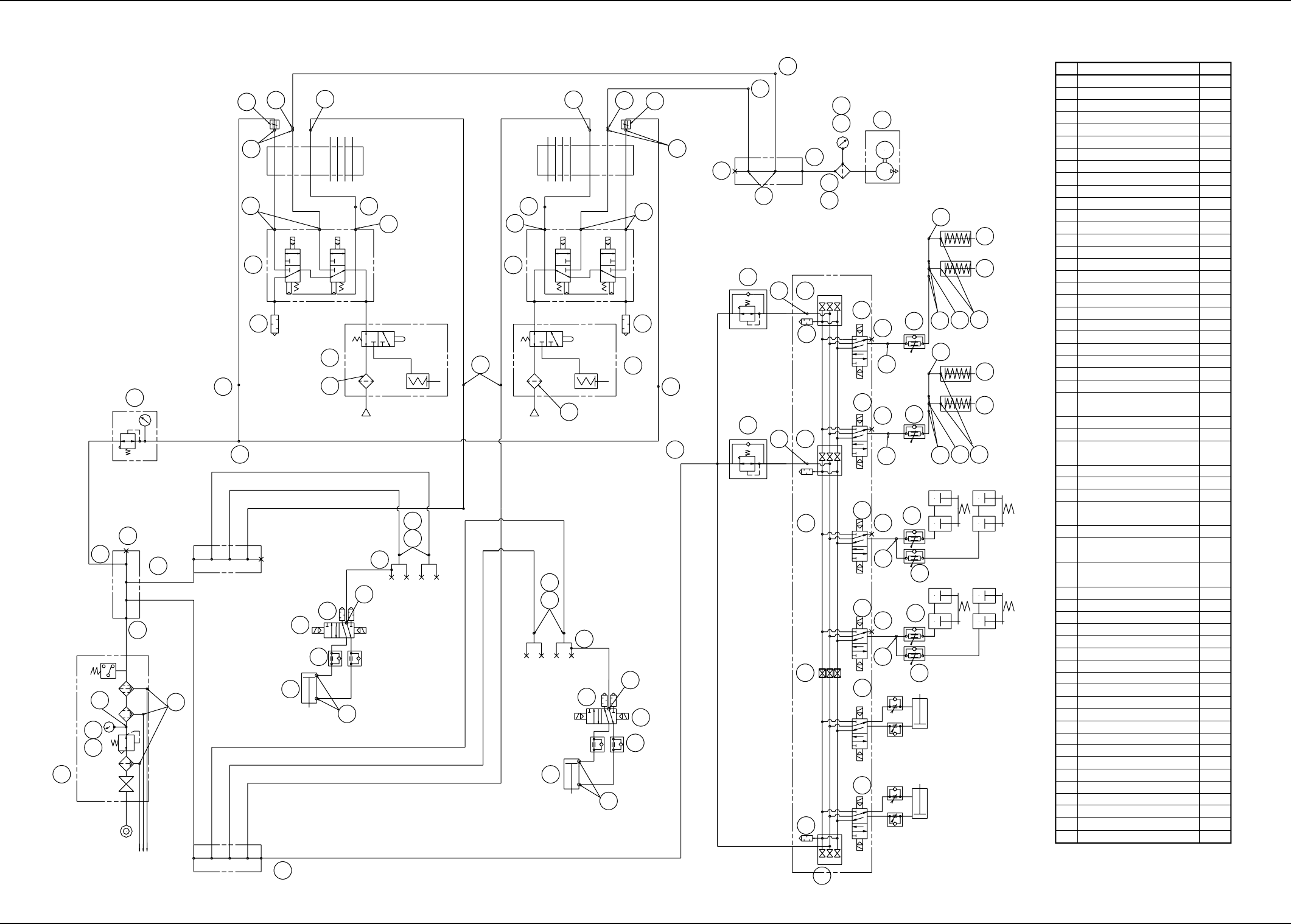
1. Pneumatic Diagram 1. Pneumatic Diagram 0308-003 C(M750XA---0021) 1-1 AHB01EMTP 22 30 30 21 20 51 50 2 53 15 36 16 17 15 36 16 17 19 17 18 18 18 19 37 38 38 18 18 19 38 27 19 38 37 38 18 19 27 38 42 39 39 40 42 39 39 4…

0107-001 1-B AHB01EMTP

1. Pneumatic Diagram
1. Pneumatic Diagram
0308-003 C(M750XA---0021) 1-1 AHB01EMTP
22
30
30
21
20
51
50
2
53
15
36
16
17
15
36
16
17
19
17
18
18
18
19
37
38
38
18
18
19
38
27
19
38
37
38
18
19
27
38
42
39
39
40
42
39
39
40
41 43
41 43
52
16
26
32
3
22
25
21
43
57
33
8
4
5
6
7
9
45
32
35
35
32
45
7
9
6
5
8
4
34
26
57
56
58
1
49
48
47
28
10
14
12
26
13
12
14
28
47
49
48
46
11
29
27
29
27
46
13
P
V
R
A
R
PV
A
M
φ6
φ6
φ6
φ6
φ6
φ6
φ10
φ10
φ4
φ4
φ4
φ8
φ6
φ6
φ6
φ6
φ6
φ6 φ6
φ6 φ6
φ8
φ6
φ6
φ6
φ6
φ10
φ10φ10
φ8
φ6
φ8
φ6
φ6
φ6
φ6
φ6
φ6
φ6
φ6
φ4
φ4
φ4
φ4
φ4
φ4
φ6
φ4
φ6
φ6
φ6
φ8
φ8
φ6
φ6
φ4
φ8
YSV52
YSV51
YSV51
YSV52
YSV12A
YSV12B
YSV12B
YSV31A
YSV32A
YSV32B
YSV35A
YSV36A
YSV33B
YSV34B
YSV34A
YSV33A
YSV36B
YSV35B
YSV31B
YSV12A
Up to the area
under the cover
Head #1
Feeder
Base #1
Feeder
Base #4
Stocker 2
Setting:
0.05 MPa
Setting:
0.35 MPa
Setting:
0.4 MPa
Feeder
Base #3
Feeder
Base #2
Stocker 1
Bonding Cable
Bonding Cable
Mechatronics Tube
Vacuum Pump
P.C.B. YR Pusher
P.C.B. YL Pusher
P.C.B. ZR Clamp
P.C.B. Stopper P2
P.C.B. Stopper P1
Head #2
Bonding Cable
Bonding Cable
Mechatronics
Tube
Bonding Cable
Bonding Cable
Setting:
0.3 MPa
Setting:
0.2 MPa
No. Name Q'ty
1 Combination Unit
2 Vacuum Pump
3 Regulator
4 Cylinder
5 Speed Controller
6 Solenoid Valve
7 Silencer
8 Hose Elbow
9 Elbow
10 Solenoid Valve
11 Solenoid Valve
12 Mechanical Valve
13 Filter
14 Silencer
15 Regulator
16 SUP/EXH Block
17 Silencer
18 Solenoid Valve
19 Plug
20 Bushing
21 Quick Universal Joint
22 Plug
23 Y Union
24 Straight Joint
25 Reducer
26 Straight Joint
27 Straight Joint for Different
Diameters
28 Half Union
29 Elbow Union
30 Straight Joint for Different
Diameters
31 Cheese
32 Y Union
33 Reducer
34 Cross Joint for Different
Diameters
35 Plug
36 Straight Joint for Different
Diameters
37 Y Union for Different
Diameters
38 Speed Controller
39 Cylinder
40 Barbed Joint
41 Universal Elbow
42 Barbed Elbow
43 Bushing
44 Manifold
45 Cheese
46 Partition Union
47 Partition Female Union
48 Half Union
49 Throttle Valve
50 Vacuum Gauge
51 Elbow
52 Barrel Nipple
53 Casting Elbow
54 Half Union
55 Elbow Union
56 Half Union
57 Elbow Union
58 Air Gauge
1
1
1
2
4
2
4
4
2
1
1
2
2
2
2
3
3
6
4
1
5
2
1
2
2
4
2
4
2
2
1
1
1
1
4
2
2
6
4
4
2
2
1
2
2
2
4
2
2
1
1
3
2
1
1
1
4
1

0107-001 1-2 AHB01EMTP