5OM-1075-002.pdf - 第23页
Section 2 Parts Location 0308-002 A(M750YVB--2102) 2-6 AHB01EMTP Rear Door View of Base Frame (R)

Section 2 Parts Location
0308-002 B(M750YVB--2101) 2-5 AHB01EMTP
Plane and Side Views of Base Frame (R)
AA
B

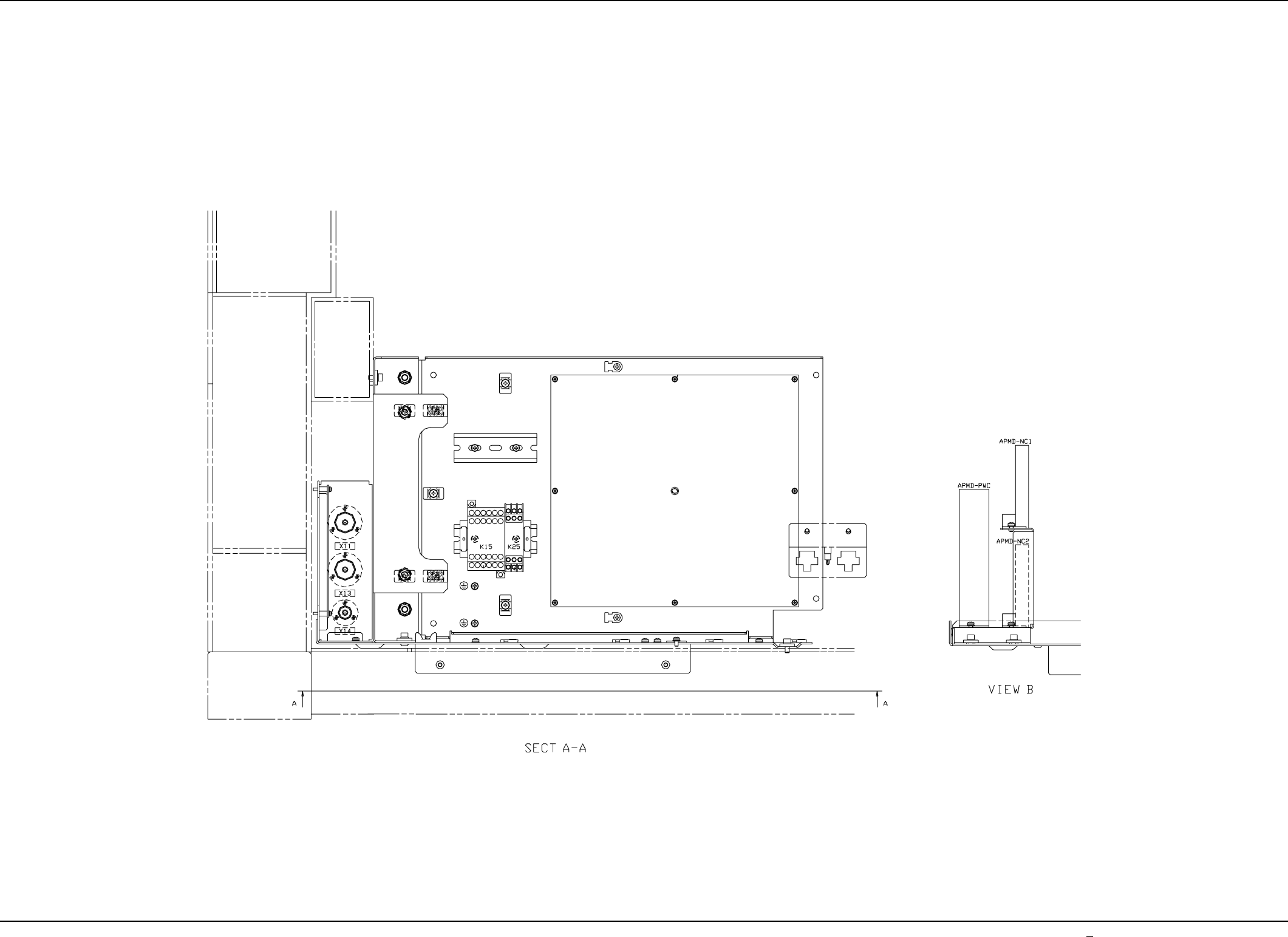
Section 2 Parts Location
0308-002 A(M750YVB--2102) 2-6 AHB01EMTP
Rear Door View of Base Frame (R)

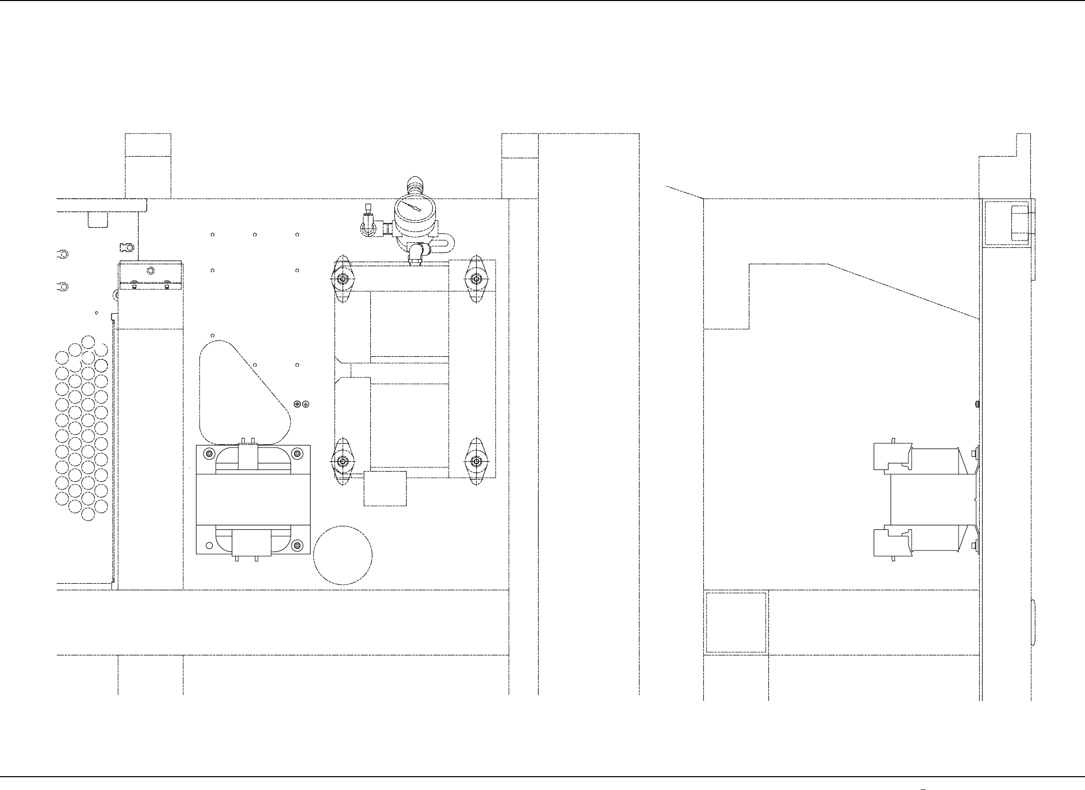
Section 2 Parts Location
0308-001 A(M750YVB--2103) 2-6-1 AHB01EMTP
Location of Transformer in Base Frame (R)