5OM-1075-002.pdf - 第29页

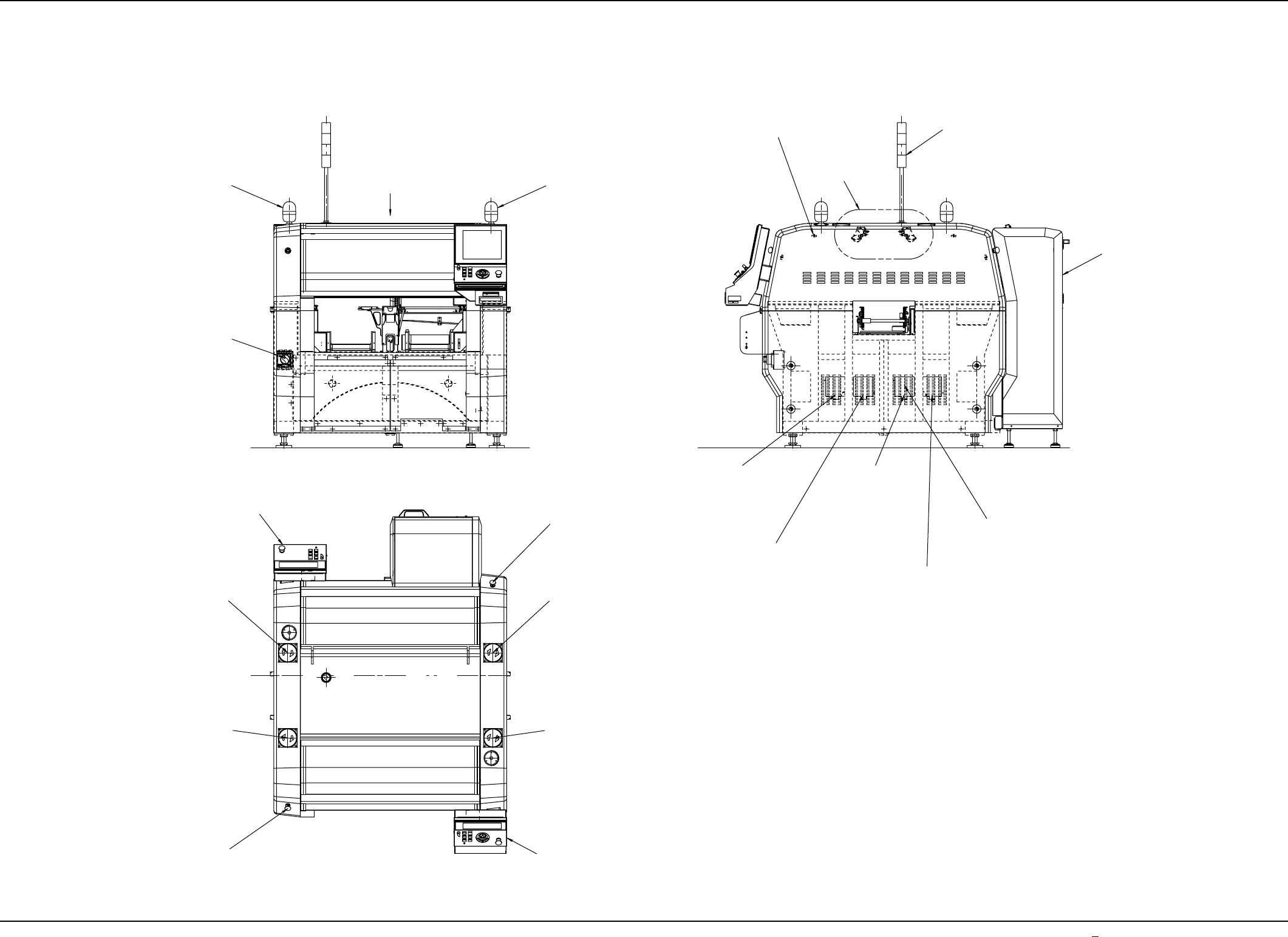
Section 2 Parts Location 0107-001A(M750YVD--2101) 2-9 AHB01EMTP Plane and Side Views of Control Box

100%1 / 107
Section 2 Parts Location
0308-001 B(M750YVC--2104) 2-8-2 AHB01EMTP
5
5
5
8
5
Windows NT
EasyRestore
Drive Image Pro
A
VIEW A
Upper Exhaust Fan Motor 4
on Frame (MFAN14)
Front Operation Panel
Wire Fixture (inside the cover)
×
12 <Including the opposite side>
Frame Lower R Side 1
Fan Motor (MFAN1)
<Opposite Side>
Frame Lower L Side 1
Fan Motor (MFAN5)
Component Shortage Lamp
in Feeder Section A
(HPL06)
Primary Power Breaker
(Q200)
Rear Operation Panel Section
Upper Exhaust Fan Motor 3
on Frame (MFAN13)
Emergency Stop
(SPB34)
Component Shortage Lamp
in Feeder Section B
(HPL05)
Emergency Stop
(SPB32)
Upper Exhaust Fan Motor 2
on Frame (MFAN12)
Upper Exhaust Fan Motor 1
on Frame (MFAN11)
Work Lighting Section
Light Tower
(HD17,18,19)
Frame Lower R Side 2
Fan Motor (MFAN2)
<Opposite Side>
Frame Lower L Side 2
Fan Motor (MFAN6)
Frame Lower R Side 3
Fan Motor (MFAN3)
<Opposite Side>
Frame Lower L Side 3
Fan Motor (MFAN7)
MFAN4 Deleted
<Opposite Side>
Frame Lower L Side 4
Fan Motor (MFAN8)
Frame Lower L- and R-Side Fan Motors
(MFAN 1 to 3, 5 to 8)
Multi-Layer Tray 2
(FP-5030B)
(Option)
Plane B Side of Machine (Front View)
Whole Layout of Base Frame (U)
Section 2 Parts Location
0107-001A(M750YVD--2101) 2-9 AHB01EMTP
Plane and Side Views of Control Box
Section 2 Parts Location
0308-002 B(M750YVD--2102) 2-10 AHB01EMTP
Board View of Control Box VME Rack
XCN157XCN159 XCN158 XCN156
U-A51EB005
DVE
4600
68K/41S
SANYOCOGNEXSVA011 DENSAN
XCN83 XCN82 XCN81
XCN206 XCN202
XCN204
XCN201
XCN205
XCN200
XCN54
XCN51
XCN52
XCN53
XCN50
XCN206A
VIEW A
CPU3 SVME-UA51 <UA51>
JAMMC-EB005-3 <UA57>
CPU2 DVE-68K/ 41S <UA83>
RECOG VPM-46532-410 <UA60>
CPU1 SVA011-30Z-6E-F482 <UA84>
(S059)
ROM
SW3
W3
W2W1
W6
W5 W4
JP4JP7 JP6
JP5
SW1
JP11
JP10
JP9
JP8
(S060)
ROM
JP1
JP2
JP3
SANRITSU
Component-Mounted Side
Reserved
Reserved
Reserved
Reserved
ROM Position on UA83 Board
Component-Mounted Side
ROM Position on UA51 Board