5OM-1075-002.pdf - 第31页

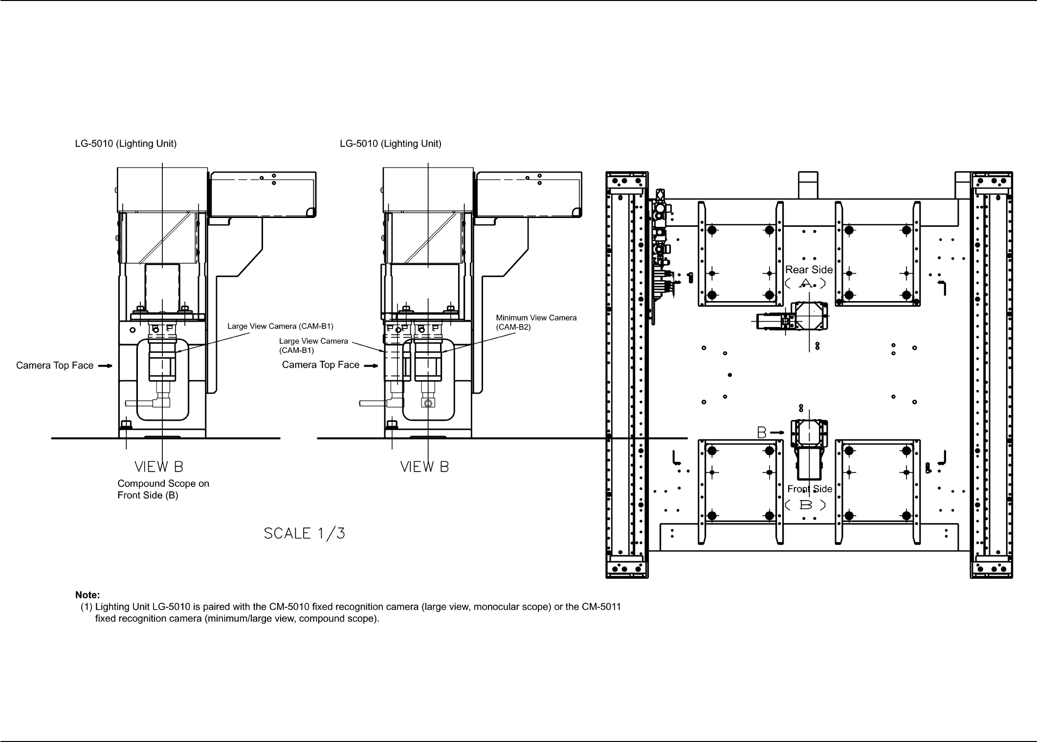
Section 2 Parts Location 0206-001-(M756AUC--2101) 2-1 1 AHB01EMTP CM-501 1 Fixed Recognition Camera Minimum/Large V iews (Option)

100%1 / 107
Section 2 Parts Location
0308-002 B(M750YVD--2102) 2-10 AHB01EMTP
Board View of Control Box VME Rack
XCN157XCN159 XCN158 XCN156
U-A51EB005
DVE
4600
68K/41S
SANYOCOGNEXSVA011 DENSAN
XCN83 XCN82 XCN81
XCN206 XCN202
XCN204
XCN201
XCN205
XCN200
XCN54
XCN51
XCN52
XCN53
XCN50
XCN206A
VIEW A
CPU3 SVME-UA51 <UA51>
JAMMC-EB005-3 <UA57>
CPU2 DVE-68K/ 41S <UA83>
RECOG VPM-46532-410 <UA60>
CPU1 SVA011-30Z-6E-F482 <UA84>
(S059)
ROM
SW3
W3
W2W1
W6
W5 W4
JP4JP7 JP6
JP5
SW1
JP11
JP10
JP9
JP8
(S060)
ROM
JP1
JP2
JP3
SANRITSU
Component-Mounted Side
Reserved
Reserved
Reserved
Reserved
ROM Position on UA83 Board
Component-Mounted Side
ROM Position on UA51 Board
Section 2 Parts Location
0206-001-(M756AUC--2101) 2-1 1 AHB01EMTP
CM-5011 Fixed Recognition Camera Minimum/Large Views (Option)
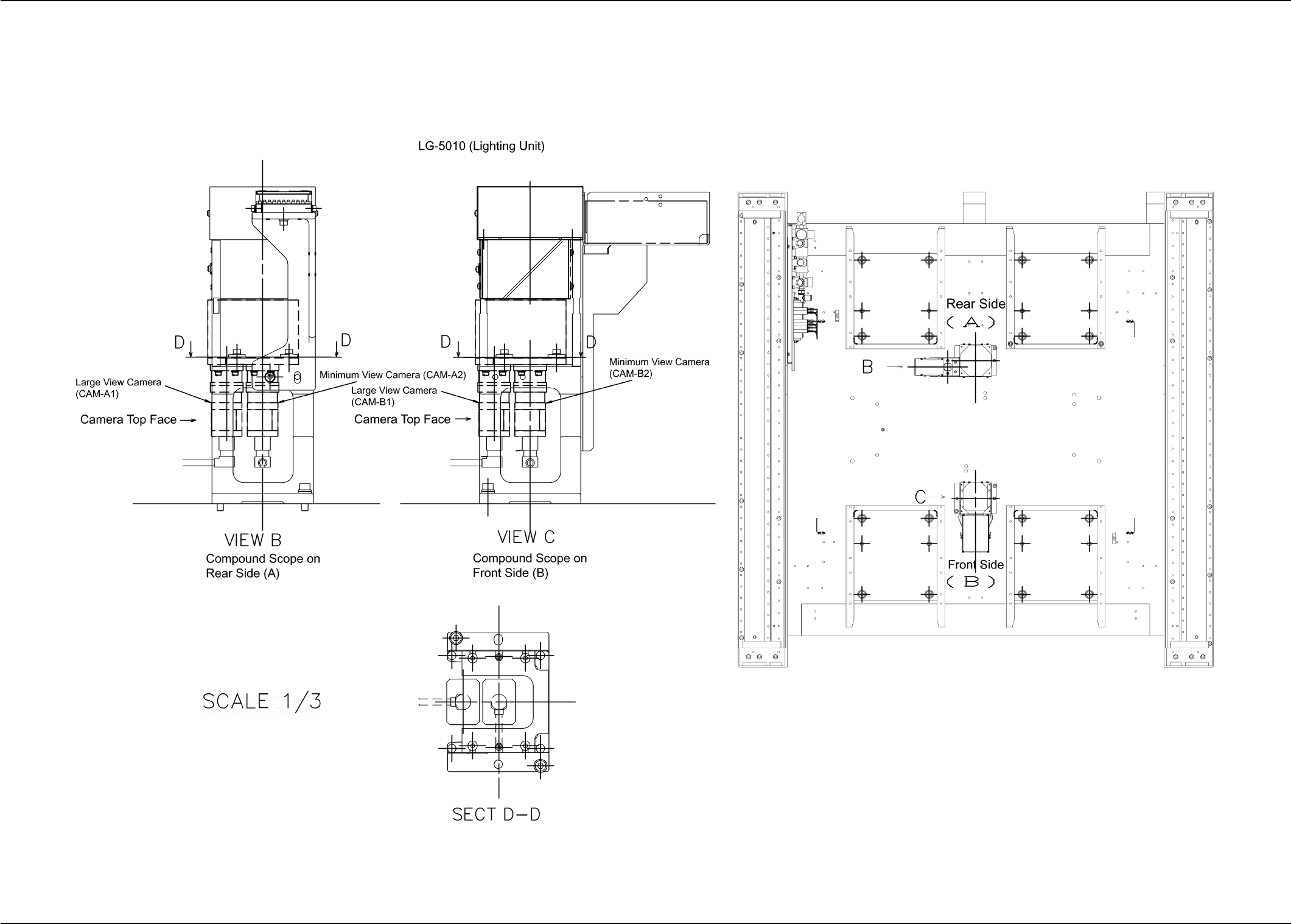
Section 2 Parts Location
0206-001-(M756AUD--2101) 2-12 AHB01EMTP
LG-5010 Lighting Unit (Option)