00198761-01_SM_Head_Care_Station_II_EN - 第14页
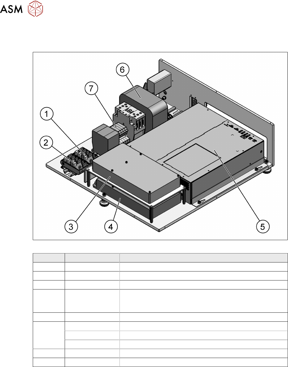
2 Spare parts overview 2.2 HCS II Control Box 14 Service Manual SIPLACE Head Care Station II 11/2019 2.2 HCS II Control Box Spare Parts – Control Box Fig.5: Spare Parts – Control Box Pos. Item Number Description 1, 2 03…

2 Spare parts overview
2.1 HCSII Head Unit
Service Manual SIPLACE Head Care Station II 11/2019 13
Spare Parts – Front View
Fig.4: Spare Parts – Front View
Pos. Item Number Description
12 03085198-xx Board Adapter Head interface C700B (from front view)
13 03008825-xx Assembly- PCB digital 28 (View)
14 03104448-xx VTS board head camera GigE
See also
2 4 "Service work – HCSII Head Unit" [}23]

2 Spare parts overview
2.2 HCS II Control Box
14 Service Manual SIPLACE Head Care Station II 11/2019
2.2 HCS II Control Box
Spare Parts – Control Box
Fig.5: Spare Parts – Control Box
Pos. Item Number Description
1, 2 03090149-xx PCB Power Adjust HCS II compl. (PCB1)
3 03147077-xx AC/DC converter FlatPAC 2 x 40VDC 400W (PS3)
4 03079126-xx AC/DC converter FlatPAC 150VDC 400W (PS4)
5 03120423-xx BoxPC ABP402-A CPU1020E 2xPCI SSD (iBase)
(Replaces: Control Computer BoxPC 627B complete
[03055280‑xx], Control Computer BoxPC 627C [03094731‑xx])
6 03087898-xx AC/DC converter QS10.241 24VDC 10A 240W (PS1)
7 03037590-xx Fuse clamp max. 10A type 281-611
03010624-xx F1: Feinsicherung 5x20 / T 1,0A / keramik
03133256-xx F2, F3, F4, F5: Fuse 5x20mm T 6,3A 400VDC
In BoxPC 03079973-xx CAN card COM168V2-PCI
In BoxPC 03052135-xx Hotlink Interface PCI-A24-K01 (View)
See also
2 5 "Service work – HCSII Control Box" [}51]

2 Spare parts overview
2.3 Cables
Service Manual SIPLACE Head Care Station II 11/2019 15
2.3 Cables
Cables – Head Unit
Fig.6: HCSII Head Unit – Cables
1 03159108-xx CAN-Bus cable
2 03148066-xx Hotlink cable
3 03148067-xx GigE cable
4 03148065-xx USB cable
5 03152929-xx Connection cable HCS