F5HM Circuit Diagrams - 第124页
4 Printed Circui t Boards 124 0032969 9-020101 ND3 Contro l board , tape cutter HS50 (Sh. 1 of 2) Cont rol bo ard HS50 tape cutter Sheet

4 Printed Circuit Boards 123
00327284-010101MD4 Optical decoupling unit A6
11.06.1996
11.06.1996
00327284-010101MD4
SIEMENS
Aktiengesellschaft
AUT 5 BPB BS1
Datum
Bearb.
Gepr.
Norm
Name
Dateiname:
Zust.
Mitteilung
Datum
Name
(Materialnummer)
Format A4
Mat.-Nr.: FS ES US S/F
Blatt
Maßstab
Weitergabe sowie Vervielfältigung dieser Unterlage, Verwertung und Mitteilung
ihres Inhaltes nicht gestattet, soweit nicht ausdrücklich zugestanden.
Zuwiderhandlungen verpflichten zu Schadenersatz. Alle Rechte für den Fall
der Patenterteilung oder GM-Eintragung vorbehalten.
Copying of this document, and giving it to others and the use or communication
of the contents thereof, are forbidden without express authority. Offenders are
liable to the payment of damages. All rights are reserved in the event of the
grant of a patent or the registration of the utility model or design.
00327284.11M
A
X3ki
B
X1ki
X1ki
A6
X5ki
Siemens AUT5
00327284-01
AA-BBBB-CCCC
15
10
X2ki
X6ki
X2kiX7ki
A6
R3
U1
R2 R4
R6
R5
R9
R10
V2
V1
V6
R8
R7
R11
R12
V4
V3
V7
V8
R1
U2
U3
U4
C1 C3
C2 C4
MP1
MP2
MP3
MP4
MP5
MP6
MP7
MP8
V5
JP1 JP2
1 2 3 1 2 3
MP9
K1
X4ki
X6ki
X5ki
X4kiX3ki
X7ki
SMD Placement System Siplace
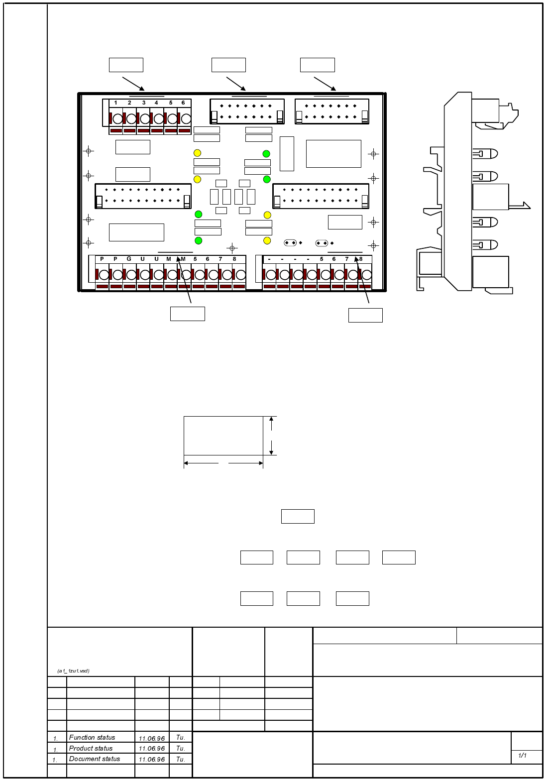
Optical decoupling unit A6
The following labels have to be stuck on:
1 : Assembly designation
Attach the terminal designation to the
terminals.
2 : Plug designation
A : Identification label
B : Inspection label
Assembly inscription acc. to recommendation VA-F-510-001
font size 1.5 mm, mat. Scotchcal 3698-E ( color A1 Ral 9006 )
AA = manufacturer/location acc. to SN 37040
BBBB = date (year/month/day) acc. to SN 01007
CCCC = numeral
Product inspection certification acc. to recommendation VA Q 509-001
3 : Terminal designation
Assembly inscription acc. to recommendation
VA-F-510-001
Labels: size approx. 5X12mm, font size 3mm

4 Printed Circuit Boards 124
00329699-020101ND3 Control board, tape cutter HS50 (Sh. 1 of 2)
Control board
HS50 tape cutter
Sheet

4 Printed Circuit Boards 125
00329699-020101ND3 Control board, tape cutter HS50 (Sh. 2 of 2)
HS50 tape cutter
Control board
Sheet