F5HM Circuit Diagrams - 第38页
1 Detailed Circuit Diagr ams 38 LP09 -F5H M PCB c onve yor 2, c erami c subs trat e cente ring Aend erung Zus tand Da tum CAD-Datei : LP9-F5HM.DWG Urspr./ Ers.f./Ers.d . Norm Name Gepr. Strom laufpla n/Circu it di agra m…

1 Detailed Circuit Diagrams 37
LP08-F5HM PCB conveyor 2, width adjustment
AenderungZustand Datum
CAD-Datei : LP8-F5HM.DWG
Urspr./Ers.f./Ers.d.NormName
Gepr.
Stromlaufplan/Circuit diagram
PL EA
Mat.-Nr. :
Beab. Hi
Datum 08.01.2001
SIEMENS
Sh.
Sh.
SMD Placement System SIPLACE F5 HM
1
1
PCB conveyor 2
Width adjustment
rd
11
X10
+24VDC
X33
2
3
narrower
00326037-xx
br
gn
wh
’dual conveyor’
Conversion board
00325581-xx
3
2
wh
gn
X31
8
I/O cards
Port A6.6
Port A6.5
00345485-xx
(Cable)
00345486-xx
(Cable)
00326062-xx
(Cable) (Cable)
00326065-xx
Control unit
00345179-xx
A6
5
rd
9
9
Port A6.4
8
6
9
8
X10
6
17
+24VDC
GND
fast, conveyor 2
Motor, width adjustment
Motor, width adjustment
narrower, conveyor 2
Motor, width adjustment
wider, conveyor 2
Position width adjustment 2
00326035-xx
bk
br
bl
A1bk
bl -
br +
Sensor switch,
wider
End position:
+24VDC
gn
wh
3
4
2
1
adjustment 2
width adjustment 2
Limit switch
width adjustment 2
Limit switch
2
1
4
4
2
1
Control unit -
dual conveyor
00327615-xx
wider
wh
gn
00326036-xx
br
X17
6
7
5
orwh
rd
or
8
br
brwh
rdwh
yewh
ye
width
00326056-xx
Motor
+
-
-
+
+
-
-
+
A
A
B
B
M
13
X11
2
1
3
4
bl
pk
gr
Width 1 B+
Width 1 A-
Width 1 B-
Width 1 A+
20a/c
18a/c
15a/c
14a/c
X2b
X1b
18c
17c
8
7
6
5
X4b
13
X3b
11
00325580-xx
Dual stepping
Backplane
gr
pk
bl
rd
motor board
Width 1 B-
Width 1 B+
Width 1 A-
Width 1 A+
width adjustment 1
narrower
End position:
width adjustment 1
16a
16c
X1b
15a
Dual stepping
00325579-xx
motor board
21a
X3b
17
9
6
8
Dual stepping
00325580-xx
Backplane
motor board
Width adjstm. 2 fast
Width adjstm. 2 wider
Width adjstm. 2 narrower
End pos., width adjstm. 2
00326065-xx
(Cable)
X25
3
2
Conversion board
00325581-xx
’Dual conveyor’
X4
8
9
X13
9
10
X4’
X1ki X5ki
9
8
10
11
6
7
vi
bk
00344266-xx
left-hand side
Terminal panel
width adjstm., conveyor 2
conveyor 2
Sensor switch: position
End signal: width adjstm.
00326068-xx
(Cable)
(Cable)
00329284-xx
Port E5.4
Port E5.3
X4sg
9
X3sg
11
10

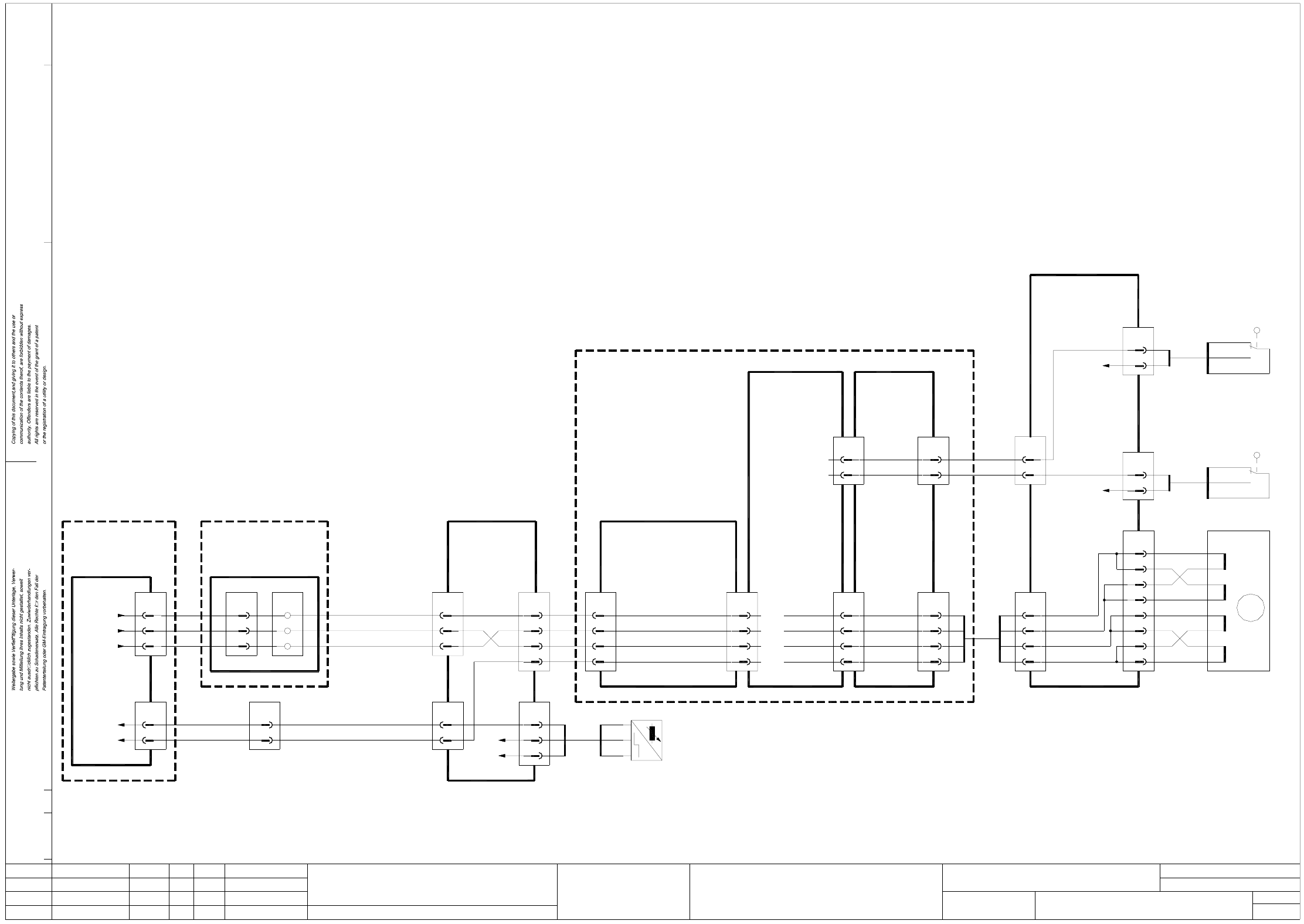
1 Detailed Circuit Diagrams 38
LP09-F5HM PCB conveyor 2, ceramic substrate centering
AenderungZustand Datum
CAD-Datei : LP9-F5HM.DWG
Urspr./Ers.f./Ers.d.NormName
Gepr.
Stromlaufplan/Circuit diagram
PL EA
Mat.-Nr. :
Beab. Hi
Datum 08.01.2001
SIEMENS
Sh.
Sh.
SMD Placement System SIPLACE F5 HM
1
1
PCB conveyor 2
Ceramic substrate centering
(Cable)
00345486-xx
Conversion board
00325581-xx
’dual conveyor’
6
2
br
X49
GND
+24VDC
6
3
bl
br
2
X47
bk
12
Terminal panel
left-hand side
00344266-xx
X4’
X1ki
12
12
8
A6
X5kiX3sg
12
X4sg
00345485-xx
(Cable)
Port A6.7
Port E5.7
00345179-xx
Control unit
X13
12
X14
12
00329284-xx
(Cable)
00326068-xx
(Cable)
bl
rd-bl
Sensor switch
Valve, ceramic substrate centering 2
Ceramic substrate centering 2
Ceramic substrate
Sensor switch
bk
GND
br
bl -
+
bk A1
(Cable)
00326051-xx
B1
2
1
X40
br
wh
00326049-xx
Valve
centering 2
centering 2
Ceramic substrate

1 Detailed Circuit Diagrams 39
LP10-F5HM PCB conveyor 1, fluxing option, ramp control
nderungZustand Datum
CAD-Datei : LP10-F5HM.DWG
Urspr./Ers.f./Ers.d.NormName
Gepr.
Stromlaufplan/Circuit diagram
PL EA
Mat.-Nr. :
Beab. Hi
Datum 08.01.2001
SIEMENS
Sh.
Sh.
SMD Placement System SIPLACE F5 HM
1
1
PCB conveyor 1
Fluxing option
(Cable)
00331297-01
(ramp control, fluxing)
Light barrier, output conveyor 1
A1
pk
bk
br
bl
Ramp control
28
+24VDC
Conversion board
X6
00325581-xx
’dual conveyor’
00330946-01
3
6
pk
br
2
bl
bk
X54
GND
+
-
25
+24VDC
GND
3
6
pk
br
bl
2
X52
bk
Light barrier, center conveyor 1
(ramp control, fluxing)
00330945-01
bl
br
pk
-
+
bk A1
+24VDC
26
GND
00330944-01
3
pk
br
X50
6
2
bl
bk
Light barrier, input conveyor 1
(ramp control, fluxing)
bl
br
-
+
pk
bk A1
X2cX1c
13a
13b
14a 28
25
26
6-channel
00325460-xx
half-bridge board
Light barrier
Input conveyor 1
Center conveyor 1
Light barrier
Light barrier
Output conveyor 1