F5HM Circuit Diagrams - 第42页
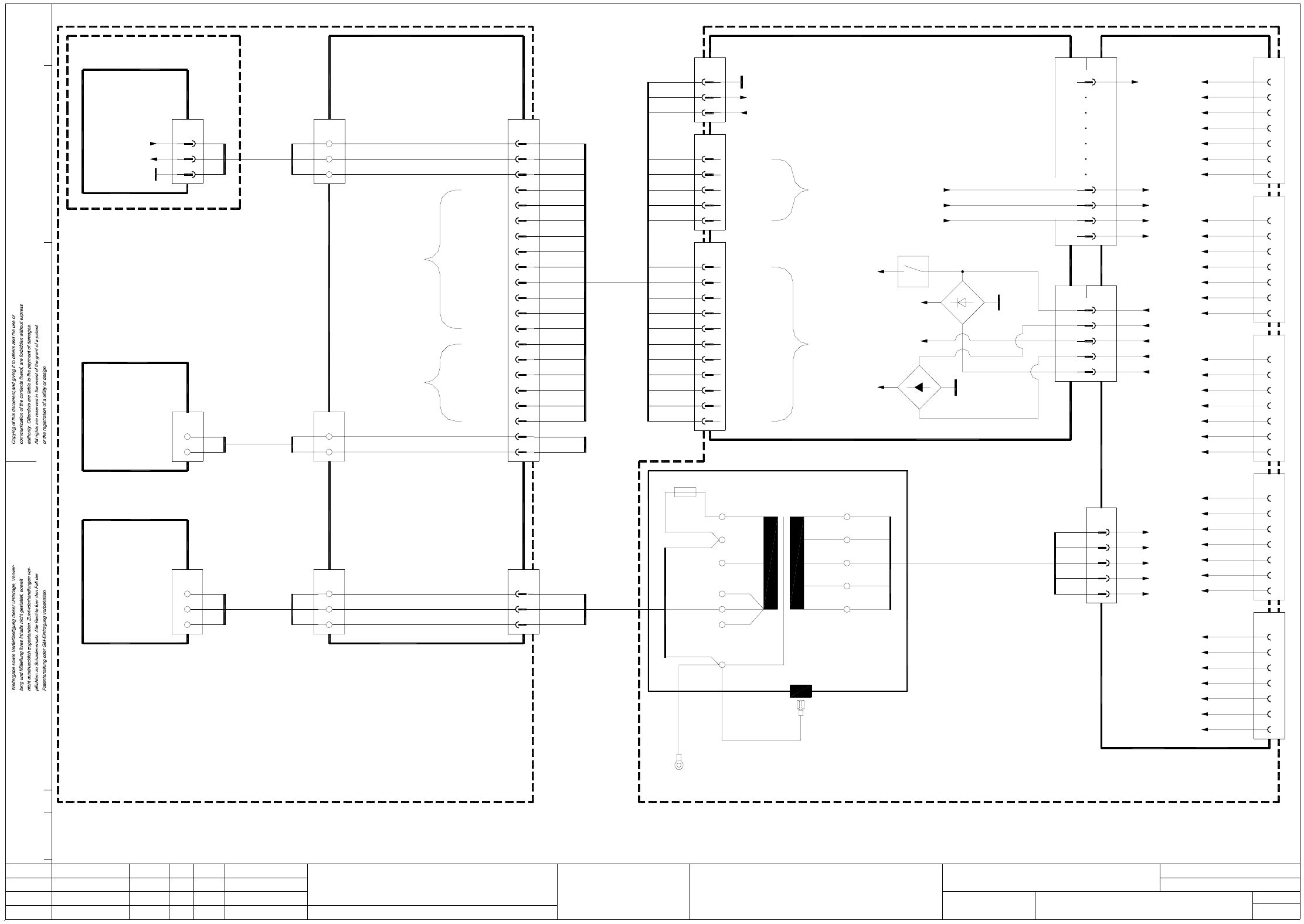
1 Detailed Circuit Diagr ams 42 BT2-F 5HM C omponen t table, mobi le, lefthand s ide (Cab le) 003287 53-x x br X37a 3a 2a X37 a Interface for comp.-handling GND (5 V) Control unit 00345179-xx 00326142-xx assembly A13 Com…

1 Detailed Circuit Diagrams 41
BT1-F5HM Component table, mobile, righthand side
AenderungZustand Datum
CAD-Datei : BT1-F5HM.DWG
Urspr./Ers.f./Ers.d.NormName
Gepr.
Stromlaufplan/Circuit diagram
PL EA
Mat.-Nr. :
Beab. Hi
Datum 08.01.2001
SIEMENS
Sh.
Sh.
SMD Placement System SIPLACE F5 HM
1
1
Component table, mobile, right-hand side
(Cable)
00328753-xx
br
X37b
3a
2a
X37b
Interface for comp.-handling
GND (5V)
Control unit
00345179-xx
00326142-xx
assembly A13
Communications
4a
br
00321429-xx
(Cable)
gn
wh
5
3
2
X3sd
wh
gn
br
V-24
TxD
RxD
GND
(righthand side)
00322064-xx
2a
3aRxD
gn
4aTxD
ye
gr&pk
rd&bk
bl
5a
7a
6a
+5VDC
+30VDC
GND (5V)
rdbl
grpk
vi
3b
2b
1b
C
B
A
whgr
whpk
yebr
whye
brgn
whgn
1c
3c
7b
6b
5b
4b
Y5
GE
GND (30V)
+30VDC
Y7
Y6
brrd&whbk
brbl&whrd
whbl
pkbr
2c
1a
7c
6c
5c
4c
M-
Limit switch,
M+
Limit switch,
to tape cutter,
pneumatically or
mechanically operated
EMERGENCY-STOP loop
lefthand side
righthand side
mechanically operated
to tape cutter,
br
lbl
Terminal panel,
00344266-xx
7
8
X211
lefthand side
br
lbl
(Cable)
00322070-xx
1a
2a
X37b
br
bl
00337342-xx
Terminal panel,
righthand side
N
L3
X206
br
bl
(Cable)
00322068-xx
X36b
PE
gnye gnye
X36b
L3
N
PE
gnye
bl
br
00300379-xx
(Cable)
Control board, component table
X4do
3
4
6
X9do
3
1
2
4
5
5
4
X7do
2
3
1
6
8
7
9
13
14
00323583-xx
GND (5V)
RxD
TxD
br
ye
gn
pkbr
brrd&whbk
brbl&whrd
whpk
whbl
rdbl
grpk
vi
whgr
rd&bk
gr&pk
whye
yebr
whgn
brgn
bl
M-
M+
lefthand side
Limit switch,
righthand side
Limit switch,
+30VDC
GND (5V)
GND (30V)
C
B
A
GE
Y5
Y7
Y6
+30VDC
+5VDC
to tape cutter,
mechanically
mechanically
pneumatically or
to tape cutter,
bl
gnye
br
5
11
4
3
2
1
10
9
7
8
6
28V/3A
8V/2A
0V
8V/2A
28V/3A 1
4
2
3
5
PE
230V
230V
115V
+5%
0V
-5%
gnye
1,5mm²
1,5mm²
gnye
F1 = 3.15 AT at 230VAC
F1 = 6.3 AT at 115VAC
Transformer
cover
to
table crosshead
+5VDC
+24VAC
+30VDC
GND
operated
operated
1
3
2
X1do
5
4
X23dp
2
5
3
4
1
X22dp
A17/A18/B17/B18/C17/C18
C32
A15/A16/B14/B15/C14/C15
A19/B18/B19/C18
A1
X2do
X21dp
28VAC
8VAC
8VAC
0V
28VAC
1
2
3
4
5
00301069-xx
(Cable)
8VAC
28VAC
0V
8VAC
28VAC
24VAC
GND
+30VDC
3
4
1
X1dp
6
7
5
2
Output 2
Output 1
24VAC
X21:C32
X21:B32
X21:C31
+30VDC
X21:A32
GND
Input 2
Input 1
2
5
7
6
1
4
3
X21:C1
24VAC
X21:A2
Output 2
Output 1
X21:C1
+30VDC
X21:A1
GND
Input 1
Input 2
X20dp
+30VDC
GND
24VAC
00323584-xx
Conversion board, comp. table
2
5
7
6
1
4
3
X21:A31
X21:B31
24VAC
Output 2
Output 1
X21:C30
+30VDC
X21:B30
GND
Input 1
Input 2
X2dp
3
4
1
6
7
5
2
X21:C19
X21:B20
24VAC
X21:C20
Output 2
Output 1
+30VDC
X21:A20
GND
Input 1
Input 2
X10dp
2
5
7
6
1
4
3
X21:A3
X21:B3
X21:B2
24VAC
Output 1
Output 2
Input 2
GND
X21:C2
+30VDC
Input 1
X19dp
(sd)
Component table, right-hand side
00301251-xxF5 HM

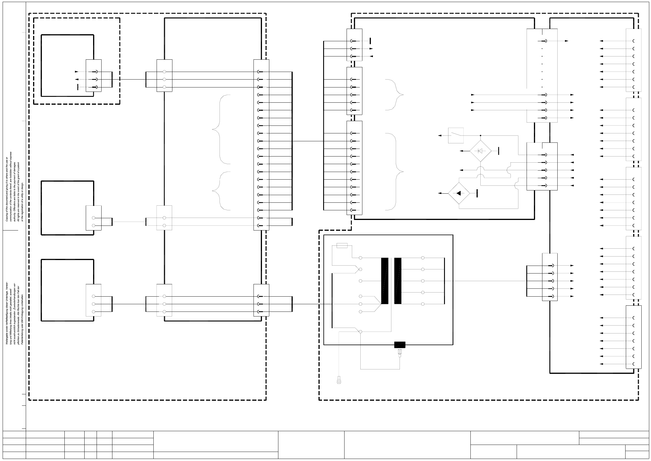
1 Detailed Circuit Diagrams 42
BT2-F5HM Component table, mobile, lefthand side
(Cable)
00328753-xx
br
X37a
3a
2a
X37a
Interface for comp.-handling
GND (5V)
Control unit
00345179-xx
00326142-xx
assembly A13
Communications
AenderungZustand Datum
CAD-Datei : BT2-F5HM.DWG
Urspr./Ers.f./Ers.d.NormName
Gepr.
Stromlaufplan/Circuit diagram
PL EA
Mat.-Nr. :
Beab. Hi
Datum 08.01.2001
SIEMENS
Sh.
Sh.
SMD Placement System SIPLACE F5 HM
1
1
Component table, mobile, left-hand side
F1
00323583-xx
GND (5V)
RxD
TxD
br
ye
gn
pkbr
brrd&whbk
brbl&whrd
whpk
whbl
rdbl
grpk
vi
whgr
rd&bk
gr&pk
whye
yebr
whgn
brgn
bl
M-
M+
lefthand side
Limit switch,
righthand side
Limit switch,
+30VDC
GND (5V)
GND (30V)
C
B
A
GE
Y5
Y7
Y6
+30VDC
+5VDC
to tape cutter,
mechanically
mechanically
pneumatically or
to tape cutter,
bl
gnye
br
5
11
4
3
2
1
10
9
7
8
6
28V/3A
8V/2A
0V
8V/2A
28V/3A 1
4
2
3
5
PE
230V
230V
115V
+5%
0V
-5%
gnye
1,5mm²
1,5mm²
gnye
F1 = 3.15 AT at 230VAC
F1 = 6.3 AT at 115VAC
Transformer
cover
to
table crosshead
+5VDC
+24VAC
+30VDC
GND
operated
operated
1
3
2
X1do
5
4
X23dp
2
5
3
4
1
X22dp
A17/A18/B17/B18/C17/C18
C32
A15/A16/B14/B15/C14/C15
A19/B18/B19/C18
A1
X2do
X21dp
28VAC
8VAC
8VAC
0V
28VAC
1
2
3
4
5
00301069-xx
(Cable)
8VAC
28VAC
0V
8VAC
28VAC
24VAC
GND
+30VDC
3
4
1
X1dp
6
7
5
2
Output 2
Output 1
24VAC
X21:C32
X21:B32
X21:C31
+30VDC
X21:A32
GND
Input 2
Input 1
2
5
7
6
1
4
3
X21:C1
24VAC
X21:A2
Output 2
Output 1
X21:C1
+30VDC
X21:A1
GND
Input 1
Input 2
X20dp
+30VDC
GND
24VAC
00323584-xx
Conversion board, comp. table
2
5
7
6
1
4
3
X21:A31
X21:B31
24VAC
Output 2
Output 1
X21:C30
+30VDC
X21:B30
GND
Input 1
Input 2
X2dp
3
4
1
6
7
5
2
X21:C19
X21:B20
24VAC
X21:C20
Output 2
Output 1
+30VDC
X21:A20
GND
Input 1
Input 2
X10dp
2
5
7
6
1
4
3
X21:A3
X21:B3
X21:B2
24VAC
Output 1
Output 2
Input 2
GND
X21:C2
+30VDC
Input 1
X19dp
F5 HM 00301251-xx
Component table, left-hand side
(sd)
4a
br
00321428-xx
(Cable)
gn
wh
5
3
2
X5sd
wh
gn
br
V-24
TxD
RxD
GND
(lefthand side)
00322063-xx
2a
3aRxD
gn
4aTxD
ye
gr&pk
rd&bk
bl
5a
7a
6a
+5VDC
+30VDC
GND (5V)
rdbl
grpk
vi
3b
2b
1b
C
B
A
whgr
whpk
yebr
whye
brgn
whgn
1c
3c
7b
6b
5b
4b
Y5
GE
GND (30V)
+30VDC
Y7
Y6
brrd&whbk
brbl&whrd
whbl
pkbr
2c
1a
7c
6c
5c
4c
M-
Limit switch,
M+
Limit switch,
to tape cutter,
pneumatically or
mechanically operated
EMERGENCY-STOP loop
lefthand side
righthand side
mechanically operated
to tape cutter,
br
lbl
Terminal panel,
00344266-xx
5
6
X211
lefthand side
br
lbl
(Cable)
00322069-xx
1a
2a
X37a
br
bl
00337342-xx
Terminal panel,
righthand side
N
L2
X206
br
bl
(Cable)
00322067-xx
X36a
PE
gnye gnye
X36a
L2
N
PE
gnye
bl
br
00300379-xx
(Cable)
Control board, component table
X4do
3
4
6
X9do
3
1
2
4
5
5
4
X7do
2
3
1
6
8
7
9
13
14

1 Detailed Circuit Diagrams 43
GS1-F5HM Tape cutter, pneumatically operated, righthand side
AenderungZustand Datum
CAD-Datei : GS1-F5HM.DWG
Urspr./Ers.f./Ers.d.NormName
Gepr.
Stromlaufplan/Circuit diagram
PL EA
Mat.-Nr. :
Beab. Hi
Datum 08.01.2001
SIEMENS
Sh.
Sh.
SMD Placement System SIPLACE F5 HM
1
1
Tape cutter, pneumatically operated,
(Cable)
00322072-xx
Control board, tape cutter
X3dq
00329699-xx
1
GND
X5dq
5
2
rd
bk
00332901-xx
(Cable)
X1
1
2
Left valve
LOGIC
piston retracted
Sensor switch
00332900-xx
00332900-xx
Sensor switch
piston extended
+5VDC
3
2
rd
bk
X7dq
+5VDC
3
rd
X8dq
2
bk
2
3
br
gn
ye
Left cylinder
Signal
Signal
Right cylinder
piston extended
piston retracted
Sensor switch
00332899-xx
00332899-xx
Sensor switch
Signal
Signal
00332901-xx
(Cable)
2
1
Right valve
X1
(Cable)
00328753-xx
righthand side
(sd)
Pneumatically operated tape cutter, right-hand side
00341698-xx
2
3
8
4
10
GND
+30VDC switched
(righthand side)
6a
5a
1c
7a
7b
1b
2b
3b
6b
bl
gr&pk
whgr
rd&bk
yebr
vi
grpk
rdbl
whye
+30VDC
+5VDC
GND (5V)
GND (30V)
Component table, right-hand side
00301251-xx
Control board
00323583-xx
component table
+30VDC
+5VDC
GND (30V)
X7do
14
13
2
1
9
3
GND (5V)
GE
A
4
5
8
B
C
Y7
00322064-xx
X4do
3
6
4
br
gn
ye
2a
3a
4a
GND (5V)
RxD
TxD
3
bk
2
X10dq
rd
3
bk
X9dq
2
rd
GND
5
2
rd
bk
X6dq
+5VDC
+5VDC
gr
4
pk
5
wh
10
bl
6
7a
7b
1b
2b
3b
6b
X37b
5a
3a
2a
X37b
Interface for comp.-handling
+5VDC
Y7
B
C
A
GE
GND (5V)
Control unit
00345179-xx
00326142-xx
assembly A13
Communications
4a
br
00321429-xx
(Cable)
gn
wh
5
3
2
X3sd
wh
gn
br
V-24
TxD
RxD
GND
br
gn
wh
gn
br
wh
X207 X1dq
(Cable)
00313400-xx
00337342-xx
righthand side
Terminal panel
1