F5HM Circuit Diagrams - 第45页
1 Detailed Circuit Diagr ams 45 PW1-F5 HM Nozzle ch anger Aend erung Zus tand Da tum CAD-Datei : PW1-F5HM.DWG Urspr./Ers .f./Ers.d. Norm Name Gepr. Strom laufpla n/Circu it di agra m PL EA Mat.-Nr. : Beab. Hi Datum 08.01…

1 Detailed Circuit Diagrams 44
GS2-F5HM Tape cutter, pneumatically operated, lefthand side
AenderungZustand Datum
CAD-Datei : GS2-F5HM.DWG
Urspr./Ers.f./Ers.d.NormName
Gepr.
Stromlaufplan/Circuit diagram
PL EA
Mat.-Nr. :
Beab. Hi
Datum 08.01.2001
SIEMENS
Sh.
Sh.
SMD Placement System SIPLACE F5 HM
1
1
Tape cutter, pneumatically operated,
(Cable)
00322071-xx
Control board, tape cutter
X3dq
00329699-xx
1
GND
X5dq
5
2
rd
bk
00332901-xx
(Cable)
X1
1
2
(Cable)
00328753-xx
lefthand side
Pneumatically operated tape cutter, left-hand side
00341698-xx
(sd)
2
3
8
2
10
GND
+30VDC switched
(lefthand side)
6a
5a
1c
7a
7b
1b
2b
3b
6b
bl
gr&pk
whgr
rd&bk
yebr
vi
grpk
rdbl
whye
+30VDC
+5VDC
GND (5V)
GND (30V)
Left comp. table
00337690-xx, 00301251-xx
Control board
00323583-xx
component table
+30VDC
+5VDC
GND (30V)
X7do
14
13
2
1
9
3
GND (5V)
GE
A
4
5
8
B
C
Y7
00322063-xx
X4do
3
6
4
br
gn
ye
2a
3a
4a
GND (5V)
RxD
TxD
3
bk
2
X10dq
rd
3
bk
X9dq
2
rd
GND
5
2
rd
bk
X6dq
+5VDC
+5VDC
gr
4
pk
5
wh
10
bl
6
7a
7b
1b
2b
3b
6b
X37a
5a
3a
2a
X37a
Interface for comp.-handling
+5VDC
Y7
B
C
A
GE
GND (5V)
Control unit
00345179-xx
00326142-xx
assembly A13
Communications
4a
br
00321428-xx
(Cable)
gn
wh
5
3
2
X5sd
wh
gn
br
V-24
TxD
RxD
GND
br
gn
wh
gn
br
wh
X207 X1dq
(Cable)
00313400-xx
00337342-xx
righthand side
Terminal panel
1
Left valve
LOGIC
piston retracted
Sensor switch
00332900-xx
00332900-xx
Sensor switch
piston extended
+5VDC
3
2
rd
bk
X7dq
+5VDC
3
rd
X8dq
2
bk
2
3
br
gn
ye
Left cylinder
Signal
Signal
Right cylinder
piston extended
piston retracted
Sensor switch
00332899-xx
00332899-xx
Sensor switch
Signal
Signal
00332901-xx
(Cable)
2
1
Right valve
X1

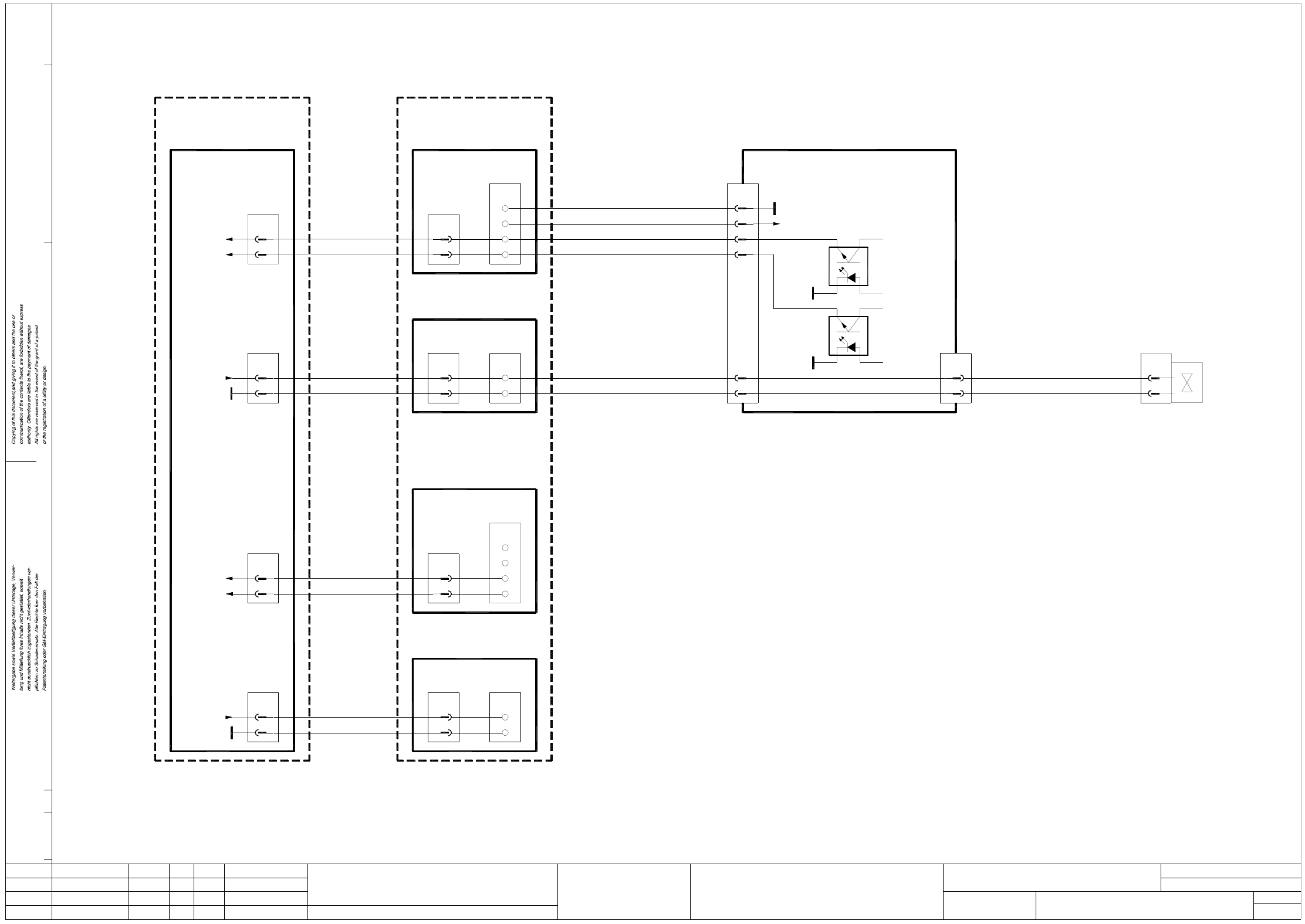
1 Detailed Circuit Diagrams 45
PW1-F5HM Nozzle changer
AenderungZustand Datum
CAD-Datei : PW1-F5HM.DWG
Urspr./Ers.f./Ers.d.NormName
Gepr.
Stromlaufplan/Circuit diagram
PL EA
Mat.-Nr. :
Beab. Hi
Datum 08.01.2001
SIEMENS
Sh.
Sh.
SMD Placement System SIPLACE F5 HM
1
1
X2kf
-
+
4
GND
Port A1.2
3
X1kf
7
8
A3
7
13,14
3
-
A1
X1ka X2kaX2se
X4sf
13,14
7
8
7
Port E3.3
(Cable)
00344234-xx
00344228-xx
(Cable)
Port E3.2
Nozzle changer closed
Nozzle changer open
Port E3.5
Port E3.4
Port A1.3
GND
13,14
8
X2se
00344228-xx
(Cable)
X2ka
X1ka
13,14
8
-
4
pk
bl
9
10
X4sf
00344234-xx
(Cable)
A1
9
10
5
6
+
-
rd
ye
br
wh
X2kf
X1kf
A3
+ Valve
- Valve
5
6
X2eb
3
1
wh
br
+24VDC
Control board - nozzle changer
+24VDC
GND
7
3
1
9
GND
(Cable)
00317579-xx
X1eb
Nozzle changer 1
00317353-xx
(Cable)
00317578-xx
X60
2
1
V1
Valve
lefthand side
00344266-xx
Terminal panel
00345179-xx
Control unit
I/O boards
Nozzle changer for the collect&place head

1 Detailed Circuit Diagrams 46
WPW-F5HM WPC interface, righthand side
EMERG.-STOP button
Port E2.1
actuated
WPC-interface, right-hand side
00322105-xx
wh
br
gn
ye
gr
pk
wh
gn
br
bk
br
bk
bl
gnye
Spare
RxD
TxD
EMERGENCY-STOP, external, GND
EMERGENCY-STOP, external
EMERGENCY-STOP loop, to WPC
EMERGENCY-STOP loop, from WPC
Signalling circuit
EMERGENCY-STOP loop
PE
N
L3
L2
L1
wh
(Cable)
00322110-xx
00322108-xx
(Cable)
00322112-xx
(Cable)
2
pk
wh
X210
1
20
1
gr
br
X211
3
5
X25d
2
L2
X206
L1
br
bk
6
7
ye
gn
wh
gn
br
L3
N
PE
bk
be
gnye
Terminal board, right-hand side
00337342-xx
Control unit
00345179-xx A13 (sd)
Communications assembly
Terminal board, left-hand side
00344266-xx
-
2
X2kd
+
blbk
blbk
+24V
X1kd
6
A2
13,14
6
X55e
I/O boards
13,14
(Cable)
00344231-xx
Control unit
00345179-xx
AenderungZustand Datum
CAD-Datei : WPW-F5HM.DWG
Urspr./Ers.f./Ers.d.NormName
Gepr.
Stromlaufplan/Circuit diagram
PL EA
Mat.-Nr. :
Beab. Hi
Datum 08.01.2001
SIEMENS
Sh.
Sh.
SMD Placement System SIPLACE F5 HM
1
1
WPC interface, right-hand side
X56b
PE
4
3
2
1
2c
X57b
1c
2a
3a
4a
1a
6c
5c
4c
3c