F5HM Circuit Diagrams - 第47页
2 Circuit Diagr ams 47 2 Circuit Diagrams 001 17550-0 10201LD3 SIPLA CE F5 HM , basic mod ule (Sh. 1 of 6) = Datum Gepr. Norm Bearb. Sheet Urspr. Ers. f. Ers. d. Name Datum Aenderung Zus tand SIEME NS AG Sh. + Motor MT T…

1 Detailed Circuit Diagrams 46
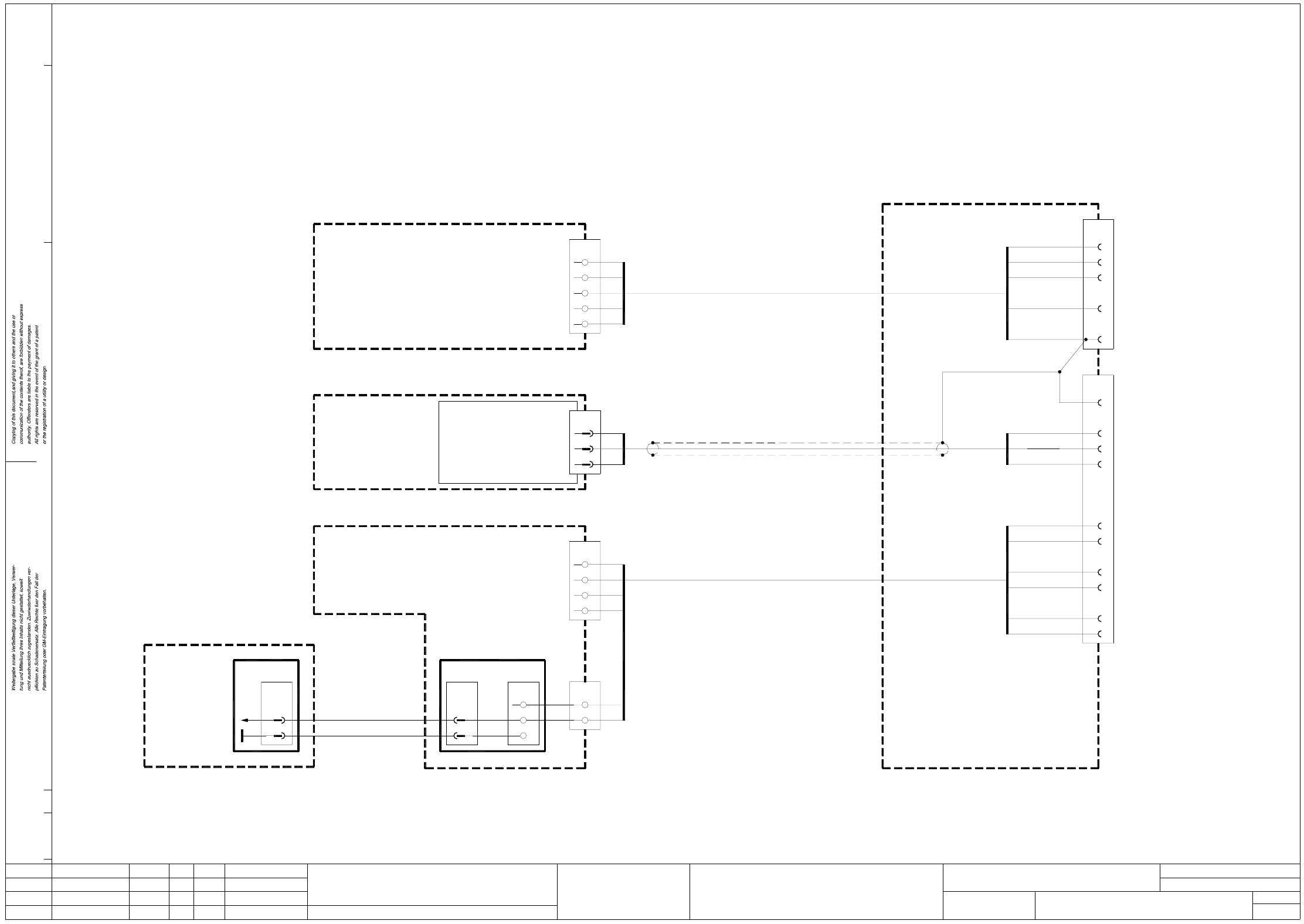
WPW-F5HM WPC interface, righthand side
EMERG.-STOP button
Port E2.1
actuated
WPC-interface, right-hand side
00322105-xx
wh
br
gn
ye
gr
pk
wh
gn
br
bk
br
bk
bl
gnye
Spare
RxD
TxD
EMERGENCY-STOP, external, GND
EMERGENCY-STOP, external
EMERGENCY-STOP loop, to WPC
EMERGENCY-STOP loop, from WPC
Signalling circuit
EMERGENCY-STOP loop
PE
N
L3
L2
L1
wh
(Cable)
00322110-xx
00322108-xx
(Cable)
00322112-xx
(Cable)
2
pk
wh
X210
1
20
1
gr
br
X211
3
5
X25d
2
L2
X206
L1
br
bk
6
7
ye
gn
wh
gn
br
L3
N
PE
bk
be
gnye
Terminal board, right-hand side
00337342-xx
Control unit
00345179-xx A13 (sd)
Communications assembly
Terminal board, left-hand side
00344266-xx
-
2
X2kd
+
blbk
blbk
+24V
X1kd
6
A2
13,14
6
X55e
I/O boards
13,14
(Cable)
00344231-xx
Control unit
00345179-xx
AenderungZustand Datum
CAD-Datei : WPW-F5HM.DWG
Urspr./Ers.f./Ers.d.NormName
Gepr.
Stromlaufplan/Circuit diagram
PL EA
Mat.-Nr. :
Beab. Hi
Datum 08.01.2001
SIEMENS
Sh.
Sh.
SMD Placement System SIPLACE F5 HM
1
1
WPC interface, right-hand side
X56b
PE
4
3
2
1
2c
X57b
1c
2a
3a
4a
1a
6c
5c
4c
3c

2 Circuit Diagrams 47
2 Circuit Diagrams
00117550-010201LD3 SIPLACE F5 HM, basic module (Sh. 1 of 6)
=
Datum
Gepr.
Norm
Bearb.
Sheet
Urspr. Ers. f. Ers. d.NameDatumAenderungZustand
SIEMENS AG
Sh.
+
Motor
MT
Tacho
IC2-head
X32aa
Track, dr-IC2
X3vc
Z-motor IC2
Tacho Z IC2
00321796-xx(W1)
X3vf
X3vf
X8vb
X8va
X20aa
X20aa
X31a
X17aa
X21aa
X21aa
X18aa
X18aa
X13aa
X13aa
X25aa
X25aa
678
1
E
F F
E
D
out
CAN busCAN bus
n.c.
00344217-xx
Power supply
in
00345501-xx
00345490-xx
00345488-xx
8
C
D
SMD Placement System SIPLACE F5-HM
1
765432
B
X7sd
X18
X18
X35aa
X35aa
X31aa
X31aa
X24aa
X24aa
X -axis
Y -axis
00321541-xx(W2)
00346381-xx(W2)
Tacho X-axis
00337066-xx(W1)
X30aa
X3se
X4se
X4se
Head axes
X1-track / ON bus
Star 1/1-axis
X3sg
2345
X2se
X3se
X1kg X1kf X2kg X1ka X1kc X1kb X1kd
C
B
A
00321797-xx(W1)
X5sz
X1kf X2kg X1ka
X1ta
X1ta
X1uc
X1ki
X3ta
X3ta
X6sc
X6sc
X20
X20
X5ab X4sc X7sd
X1kc X1kb X1kd
00344233-xx
00344234-xx
00344235-xx
00344229-xx
00344231-xx
00345487-xx
X23aa
X23aa
X15aa
X15aa
X16aa
X16aaX22aa
00345485-xx
00344230-xx
00344228-xx
X5se
X5se
X3sg
X2ki
X5sg
X5sg
X3sf
X3sf
X4sf
X4sf
X5sf
X5sf
X2se
1
Deu
Tu.
Deu
01
02
01
Function status
Product status
Document status
16.04.99
18.10.99
16.04.99
18.10.99
Tuth
#
SIPLACE F5-HM basic module
00117550-010201LD3
X1ki X2ki
X3sz
X3sz
X1sz
X1sz
X1kg
00321220
00321222
00321523
00321216
00349845-xx
00300609
00321217
00321217
00321217
PL EA1 E5
6
00326222
00332971
00320925
00321219
(fb)
(fc)
00345503-xx
00321223
Illumination control
00344485-xx
Processor board
00344488-xx
Step motor board
Vision Board Modular
00344489-xx (fa)
z-axis
Vision Board Modular
(fh)
(fg)
00321524
X8aa
X5ac
X5ac
X5sz
X3uc
X3uc
X8vb
X1vb
X1vb
X1uc
X31a
00346384-xx
00346383-xx
X32a
X32a
X34aaX36aa
X36aa
X38aa
X38aa
X28aa
X28aa
X8va
00321469-xx
00330648-xx
(ac)
X4ab
X4ab
X5ab
X5ab
X6ab
X6ab X7ab
X8ab
X8ab
Intermed. distribution board, SP6-12, digital
00321539-xx
00321213
X19ac
X19ac
C458
X15ac
X15ac
X16acX11ac
X11ac
X10ac
X10ac
X3fb
X3fb
X4fb
X4fb
00344489-xx
CO camera
Meas. system
dp-axis
DP-axis
X2aa
X2aa
X1ac
X1ac
X1aa
X1aa
X3fa
X1fc X4fc
X4ac
ICOS
X1ab
X1ab
X2ab
X2ab
X11aa
X6fb
X12fb
X12fb
X11aa
X10aa
X10aa
X11fb
X12ab
X12ab
X37aa
X37aa
00346191-xx
X3ab
X3ab
X13ab
X13ab
X7fb
X7fb
X4fa
X8c
X8c
X9ab
X9ab
S1
C458
X6ac
X6ac
X8aa
X18ac
X18ac
M
X7aa
X7aa
X4ac
X16ac
X4aa
X4aa X14aa
X3ac
X3ac
X3aa
X3aa
X2ac
X2ac
Y-axis
Vacuum
meas. board
Increments
Reject
Y -axis
End pos. prox. switch 1
Pickup
00336690-xx
X2fc
X1fc X4fcX2fc
X13ac
X13ac
X6fb
00321213
X5fb
X5fb
X11fb
00321213
X10fb
X10fb
X14ac
X14ac
X2fb
X2fb
X1fb
X1fb
n.c.
F5 control unit
00321218
Test points
n.c.
Conversion board- Portal
00344215-xx(W2)
Motor/Tacho
Y-axis
X12ac
X12ac
X17ac
X17ac
M
00321213
00322558-xx
00322261-xx
Optical system
(fa)
End pos. prox.
Light barrier
Increments
X-axis
switch, X-axis
IC-head
X3vd
X3vd
X33aa
CO camera
Nominal value, Y -axis
CO illumination
steep
Power supply, star
Nominal value,
I
Adjust
00345876-xx
M
Undergantry
00321547-xx
00345179-xx
Forced air
Star-axis
X2va
00345821-xx
Conversion board - large axis
00345507-xx
X2vc
Limit switch 2
X -axis
00321578-xx
camera
Camera
00322259-xx
dp1 -axis
PCB illumination
Distance light barrier
X6sz
flat / middle
Head board, SP6-12, digital
X4sz
Nominal value, Z-IC2
00345504-xx
CO illumination
X4ta
X4ta
M
T
(ab)
(aa)
X -axis
End pos. prox. switch 2
00322557-xx
X-motor
X-motor / Y-track
00337065-xx(W2)
Light barrier
z-axis, bottom
X30aa
00337065-xx(W1)
00344266-xx
X33aa
X3vk
X3vk
z-axis, top
Terminal strip, lefthand side
X3vg
X29aa
X29aa
00344250-xx
00344251-xx
00344252-xx
00344253-xx
00344254-xx
Track, Y-axis
Track, X-axis
Track, dr-SP/IC1
Track, Z-SP/IC1
Nominal value, Star -axis
Crash signal
Nominal value, X -axis
Nominal value, Z -axis
00345502-xx
00354432-xx
valve
X2uc
dp1 -axis
X34aa
X2va
X2vb
X2vb
00321541-xx(W1)
X2vc
X2vd
X2vd
X2vf
X2vf
X2vg
X2vg
X2vk
X2vk
dp -motor
dp -tacho
Crash-prox.switches
00346382-xx(W1)
X1va X3vg
X32aa
X1va
00322265-xx
X2ta
X2ta
X6sz
00345505-xx
Flash-Mode
00300601-xx
00349844-xx
00321796-xx(W2)
X3vc
00345506-xx
00300905-xx
00322262-xx
00322264-xx
X17aa
Nominal value, dr-IC2
00345458-xx
S1
Limit switch 1
X -axis
00321577-xx
00345481-xx
00321544-xx(W1)
00321544-xx(W2)
Xxxx
X27aa
X27aa
X12aa
X12aa
CAN bus
00344260-xx
00344226-xx
00344224-xx
Track, dp
00322556-xx
X4uc
X4uc
X11e
X11e
X2uc
00315224
n.c.
00337066-xx(W2)
X4sz
X2sz
X2sz
A
dr-motor IC2
dr-tacho IC2
Track, Z-IC2
00321797-xx(W2)
Servoeinschub F4-6
Motor X-axis
dr -motor -SP/IC1
Motor Z -SP/IC1
Tacho Z -SP/IC1
00344215-xx(W1)
ICOS
Power supply, illumination I

2 Circuit Diagrams 48
00117550-010201LD3 SIPLACE F5 HM, basic module (Sh. 2 of 6)
=
Datum
Gepr.
Norm
Bearb.
Sheet
Urspr. Ers. f. Ers. d.NameDatumAenderungZustand
SIEMENS AG
Sh.
+
Power
00322068-xx
Right
X16
X16
X4
X4
X17
X17
X19
X19
Power
F5 control unit
00345821-xx
00345179-xx
00324358-xx
Ground
power supply
00306880-xx
Voltage (+8V-12V)
X2kc 5
X2kc 6
X2kc -
X2
A
1
765432
B
X2
X3
X3
Ground, power supply
00324359-xx
Power
00322067-xx
interface
00322063-xx
Left
mounting plate
Ground
gnye / 2mm²
00322064-xx
interface
Ground
mounting plate
Keyboard
Ground
trackball A3
00321623-xx
Mouse
A1
00328348
Voltage (150V-70V)
00300163-xx
gnye / 6mm²
00337342-xx
To term. strip
gnye / 6mm²
Interface for
00322105-xx
right WPC
00322333
righthand side
lefthand side
F5 servo unit
345
8
C
D
1
E
F F
E
D
C
B
A
LAN
card
SMD Placement System SIPLACE F5-HM
machine
frame
Signal K1-K5
00344266-xx
Ground
(not to be connected)
LAN (from M45)
00344262-xx
machine
frame
Control
00301485-xx Voltage
00321496-xx PC voltage
Voltage (5V-30V)
00344213-xx
Voltage, power supply unit
00344212-xx
00337342-xx
Voltage (5V-30V)
00300182-xx
Ground Ground
Voltage (6V,30V)
00300164-xx
S23 power supply
Terminal strip,
00342917-xx
3x400V / 50Hz
PC Monitor and
X1
2
*
C797-W1
*
678
VGAVGA
Voltage (30V-80V)
Serial 1
Serial 2
Main power supply
00344219-xx
00321858-xx
00321582-xx
M44
Icos MC1
00345456-xx
VGA cable, Vision
ws
GND
00322110-xx
Power
br
gn
VGA cable, M44
00344263-xx (W1)
00344263-xx (W2)
To term. strip
Keyboard cable
00344214-xx
X4az
X1az
X1az
LAN
To succeeding machine
00301486-xx
and main
power filter
00300161-xx
00336812-xx
00300272-xx
VGA cable, PC
00321495-xx
00301589-xx
Keyboard and
Barcode
Infeed
00324356-xx
gnye / 2mm²
00322089-xx
Terminal strip,
00337342-xx
00342916-xx
Service
socket
touch-screen
A2
Touch-
Screen
00329585
Video-Multiplexer A4
X105
X105
X106
Voltage
*
* Supplied with monitor
X106
X106
X106
X104 X102
X102X104
X44
X44
X43
X43
X5az
X5az
X2az
X2az
X3az
X3az
X5sa
X5sa
X33
X33
X4sa
X4sa
X5sc
X5sc
X4az
Product status
Function status
01
02
01
Deu
Tu.
Deu
2
6
X6az
X6az
00321113-xx
X110
X110
X103
X100
X103
X103
PL EA1 E5
00117550-010201LD3
SIPLACE F5-HM basic module
#
Tuth
18.10.99
16.04.99
18.10.99
16.04.99
Document status