JUKI_KE-2070-2080_MAINTE_CH - 第222页
维修调整要领书 14 -3 14 -2 .底座上部的布 局 图 14-2-1 表示底座上面图 。 14-2-1 .各部的名称 ①XL 轴马达 ②XR 轴马达 ③ Y L 轴马达 ④ Y R 轴马达 ⑤ 支撑台马达 ⑥ 传送 L 马达 ⑦ 传送中心马达 ⑧ 传送 R 马达 ⑨ATC 装置传感 器中转基板 ⑩CAL 块基板 ⑪ CARRY 基板 ⑫ 传送步进马 达驱动器 〔 传送 L 、 传送中心 、 传送 R 〕 ⑬ BANK/FP I-…

维修调整要领书
14-2
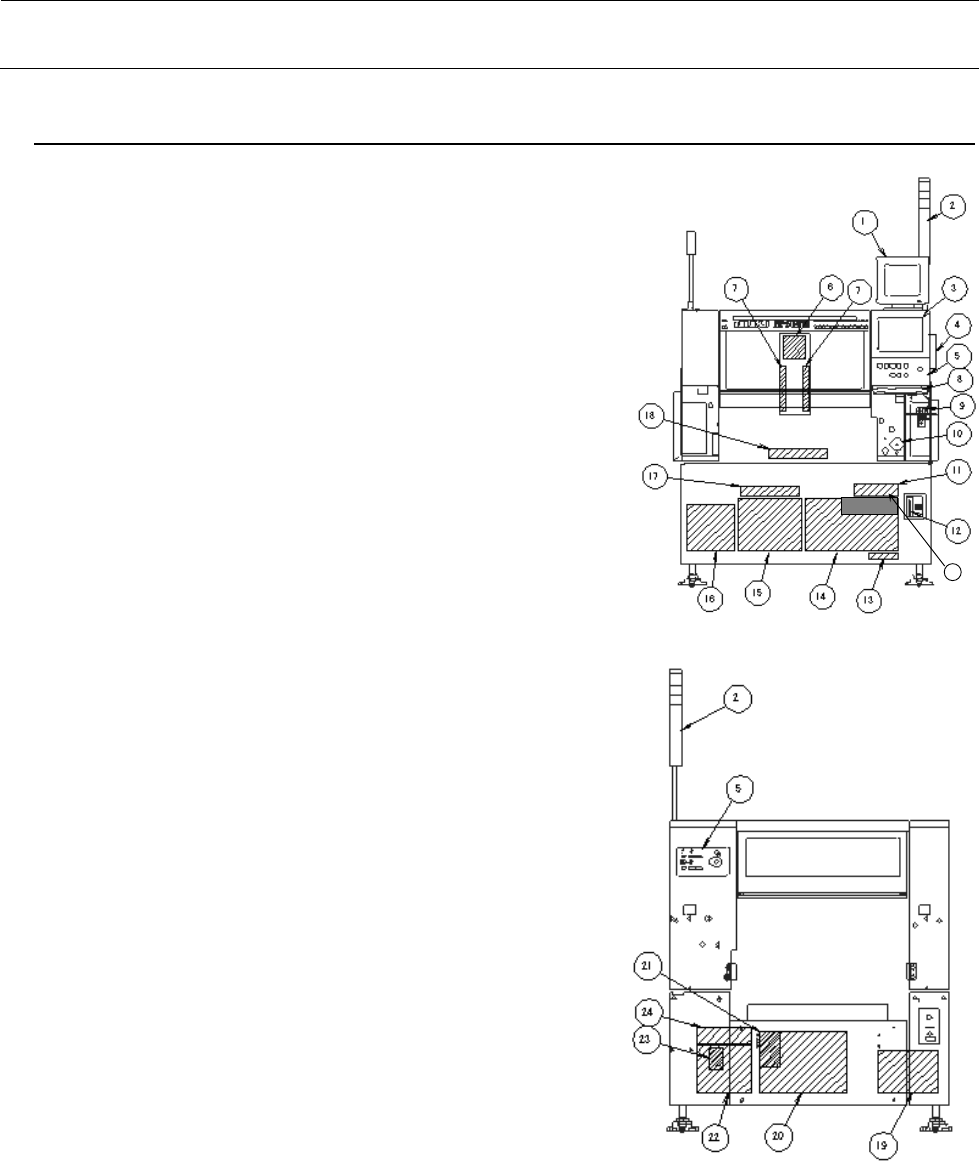
主体背面图
14-1-2.各部的名称(KE-2070/2070C/2080/2080R)
1.图像用监视器 2.信号灯
3.LCD监视器 4.HOD
5.操作盘
〔前:LCD 监视器、操作基板〕
〔后:操作SW基板〕
6.贴装头装置
〔贴装头主基板组、贴装头中转基板组、Z/θ 轴伺服放大器、
选购品:HMS 触点传感器、坏标记阅读器〕
7.OCC 摄像机、垂直照明基板组 (左、右)、
角度照明基板 (左、右)
8.键盘 9 鼠标 10.电源开关 11.现在未使用
12.IDE I/F FDD (选购品) 13.HDD
14.控制器
〔CPU 接口、定位板、跨接口、IEEE1394A 电路板、XY RELAY
基板、SAFETY 基板、
Base Feeder 基板、I/O 控制基板、
LIGHT CTRL 基板、IP-X3R 基板、c-PCI Back Board、VME
Back Board、2080R: MCM 基板、选购品:N-VERIFY I/F 基板、
I-CX 基板〕
15.XY 轴 AC 伺服放大器
16.真空泵 (选购品)
17.5 相步进驱动器
〔右側支撑台马达用;选购品:左側传送通道宽度自动调整
马达用〕
18.CARRY 中继电路板
19.XY 伺服用变压器
20.电源装置
21.UPS(无停电电源)
22.DC 电源用变压器
23.断路器
24.AC 输入装置
25.测力传感器放大器
主体正面图
25

维修调整要领书
14-3
14-2.底座上部的布局
图14-2-1表示底座上面图。
14-2-1.各部的名称
①XL轴马达
②XR轴马达
③YL轴马达
④YR轴马达
⑤支撑台马达
⑥传送 L 马达
⑦传送中心马达
⑧传送 R 马达
⑨ATC装置传感器中转基板
⑩CAL块基板
⑪CARRY基板
⑫传送步进马达驱动器
〔传送 L、传送中心、传送 R〕
⑬BANK/FPI-F 基板
⑭BANK/FPI-R 基板
〔仅 KE-1070/1080/2070/2080/2080R〕
⑮IEEE1394中继器(中转用电路板)
图 14-2-1 底座上面图
3
1
2
9
5
6
7
10
8
11
12
13
14
4
15

维修调整要领书
14-4
14-3.电源装置
14-3-1.電源装置的构成
电源装置安装在装置背面的中央部。图 14-3-1-1 表示构成。
电源装置由DC电源、控制用继电器、电路保护器等构成,向各装置(控制器,XY装置,Zθ装置,传送
装置,贴装头装置等)供给AC、DC电源。
各 DC 电源的用途如下∶
-12V(-12V±0.1V、PS4) RS-232C、IPX-3R 基板、贴装头主基板
+3.3V(+3.3V±0.1V、PS5) 位置板(运动控制)、IEEE1394 板
+5V(+5.08V~5.12V、PS2) 全部基板的逻辑电路用、照明用 LED(VCS 同轴照射)
+24V(+24±0.1V、PS1) 继电器、电磁阀、步进马达、传感器、激光、信号指示等驱动用
+12V(+12±0.1V、PS7) 摄像机、串行通信、照明用 LED(VCS 同轴照射除外)、CPU 基板
+24V(+24±0.1V、PS3) 安全电路驱动用(仅 EN 机)
+6V(+6.3V~6.5V、PS6) 供料器(多层、32mm 纸带)控制用
+24V(+23V~25V、PS8) Zθ 伺服放大器控制用
14-3-1-1.DC 电源电压等级的调整方法
NO. 电源规格 电源代号 电源装置测定端子 电压调整值
1 +3.3V PS 5 CN019 1 销(+3.3V)和 10 销(GND
)
(+3.3V±0.1V)
2 +5V PS 2 CN019 2 销(+5.0V)和 11 销(GND
)
(+5.08V~5.12V)
3 +5V PS 2 CN019 3 销(+5.0V)和 12 销(GND
)
(+5.08V~5.12V)
4 +6V PS 6 CN019 4 销(+6.0V)和 13 销(GND
)
(+6.3V~6.5V)
5 +12V PS 7 CN019 5 销(+12V)和 14 销(GND) (+12.4±0.1V)
6 -12V PS 4 CN019 6 销(-12V)和 15 销(GND) (-12V±0.1V)
7 +24V PS 1 CN019 7 销(+24V)和 16 销(GND) (+24±0.1V)
8 +24V PS 3 CN019 8 销(+24V)和 17 销(GND) (+24±0.1V)
9 +24V PS 8 CN097 1 销(+24V)和 2 销(GND) (+24±0.1V)
・DC电源输出电压调整用电源装置的CN019来进行。
・PS8 的电源输出电压调整以电源装置的CN097 进行。
・从PSU BLACKET A和PSU BLACKET B引出线,以保证 DC 电源的输出电压是规格调整值,各D
C电源的输出电压用可变电阻器调整。
※No.2、No.3均是从 PS2 输出,要确认时请在 CN 019 第 2 脚与第 11 脚之间进行。
注1.
调整时,请注意电压值不能大于规格调整值。
注2.
CN019-17、18销,和有调整指示的电源以外的GND绝对不能共用(不能连接)。
注3.
PS3是 POWER UNIT(EN)安装的EN规格用的DC电源,POWER UNIT上没有安装。
※
※