JUKI_KE-2070-2080_MAINTE_CH - 第230页
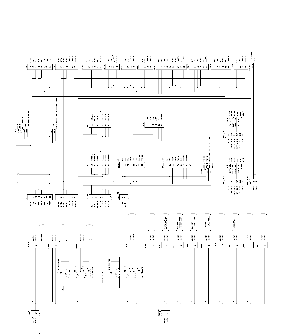
维修调整要领书 14 - 11 控制装置 ( �色) +24V �源�出控制 �源控制 �送�源控制 ( 黄色) 安全装置 ( �色) 安全装置 ( �色) 从控制装置来 图 14-3-1-6 电源基板的连接图 ( 2/2 )

维修调整要领书
14-10
控制装置
控制装置
背面��器
�送中心�达基板
接��感器
��基板
凹�网�接基板
自��整��器
主����器
��
��
��器1/2��器2/2
前一次更�台
旧一次更�台
后一次更�台
旧一次更�台
前一次更�台
旧一次更�台
后一次更�台
旧一次更�台
��
( 黄色)
( 黄色)
( �色)
( �色)
CARRY�接基板用
I N- MT R
OUT-MTR
自�控制MTR
( 有�送伺服ON)
( 无�送伺服ON)
��
接�装置
��
图 14-3-1-5 电源基板的连接图(1/2)

维修调整要领书
14-11
控制装置
( �色)
+24V�源�出控制
�源控制
�送�源控制
( 黄色)
安全装置
( �色)
安全装置
( �色)
从控制装置来
图 14-3-1-6 电源基板的连接图(2/2)

维修调整要领书
14-12
14-4.控制装置
14-4-1.控制装置的构成
控制装置的基板配置图如下所示。请参照这些图确认基板的安装。
14-4-1-1.KE-1070/1070C/2070/2070C 基板配置
IP-X3R PCB ASM
IO CTRL PCB ASM 40001943
BASE FEEDER PCB ASM 40001941
LIGHT CTRL PCB ASM
SAFETY PCB ASM
XY RELAY PCB ASM 40044557
N-VERIFY DMM 40029035
RS232C CHANGE PCB ASM 40026382
MOUSE/KEYBOARD SELECTOR 40003281
CPU BOARD
POSITION BOARD 40044540
IEEE1394A BOARD 40044519
2CH SERIAL COM BOARD 40003299
BUS BRIDGE BOARD 40003313
I-CX BOARD 40031754(オプション)
N-VERIFY I/F PCB ASM 40029039(オプション)
BLANK PANEL B
BLANK PANEL B
图 14-4-1-1.基板配置图(KE-1070/1070C/ 2070C/2070)
注 1 根据有无 MNVC 选项而变更。(仅 KE-2070)
有 MNVC(OP)选项 有 MNVC(ST)选项 无 MNVC 选项
LIGHT CTRL PCB ASM LIGHT CTRL PCB ASM LIGHT CTRL PCB(50) ASM
40001904 40001904 40001918
IP-X3R PCB B IP-X3R PCB A IP-X3R PCB A
40052360 40052359 40052359
注 2 根据有无简易载荷选项而变更。(仅 KE-2070)
I-CX BOARD(品番:40031754)使用 2 槽口。
注 3 根据有无 SCS 或 CVS(选项)而变更。(仅 KE- 2070)
注 4 使用基板根据机器 Rev. 而异。请参阅下表。
机种
CPU 基板货号 SAFETY PCB ASM 货号
40044475 40107372 40044553 40136685
KE-1070 Rev. G 以前 Rev. H 以后 Rev. H 以前 Rev. I 以后
KE-1070C Rev. G 以前 Rev. H 以后 Rev. H 以前 Rev. I 以后
KE-2070C Rev. C 以前 Rev. D 以后 Rev. D 以前 Rev. E 以后
KE-2070 Rev. I 以前 Rev. J 以后 Rev. J 以前 Rev K 以后
注 4
注 1
注 1
(
选购品
)
注 2
注 3
注 4
BLANK PANEL B
IEE1394A BOARD 40150021