JUKI_KE-2070-2080_MAINTE_CH - 第322页
维修调整要领书 19 -3 ( 3 ) 从新安装护罩时,图中所示的电缆不要挂住护罩窗口部,并请确认从窗口部看得到 LED 灯。 护罩窗口部 电缆

维修调整要领书
19-2
<MPC 的更换>
① 拆下 MPC 的电源连接器、Ethernet 电缆。
② 拆下固定基座止动螺丝①。
③ 请拆下用于固定 MPC 的螺丝②进行更换。
④ 更换后,按相反的工序复原,
这时,请从更换前的 MPC Prog 端子上卸下防尘罩,安装到更换后的 MPC 上。
⑤ 请按照“Intelli SCS 使用说明书”-“附录 A 原点复归要领书”进行 MPC 的登录。
<SWITCHING HUB 的更换>
① 请从 HUB 的 Ethernet 电缆和电源端子台上拆下电源电缆。
② 一面将 A 部朝箭头方向拉,一面将其从图的 B 部卸下。
③ 更换后,请按相反的工序复原。
④ 请将更换前的 HUB 用来保护空端口的防尘盖卸下,将其安装到更换后的 HUB 上。
A
①
①
②
电源端子台
防尘盖
B

维修调整要领书
19-3
(3) 从新安装护罩时,图中所示的电缆不要挂住护罩窗口部,并请确认从窗口部看得到 LED 灯。
护罩窗口部
电缆

维修调整要领书
19-4
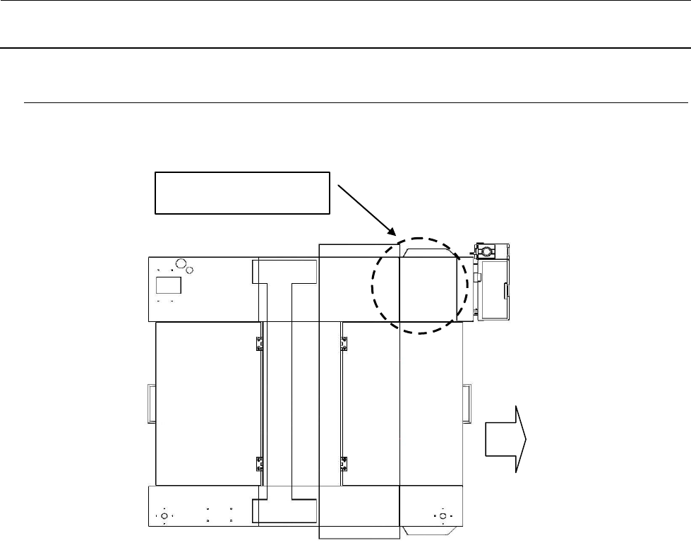
19-1-2.当 HUB BOX 被安装在装置内部时
(1) MPC 和 HUB 组装在“HUB BOX”内,安装在如下位置。
HUB BOX安装位置
装置正面
机器上面图