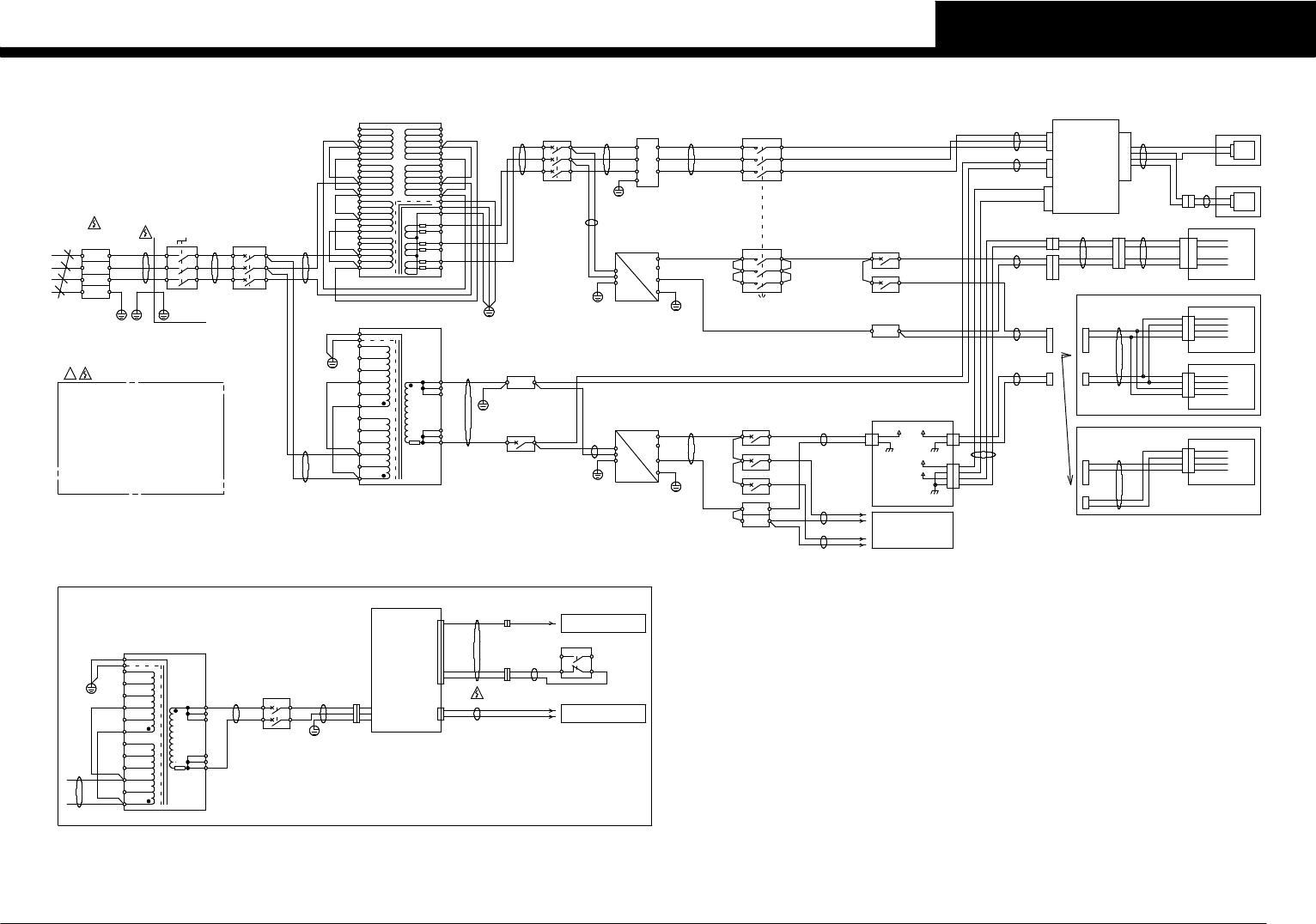
YSM10_KMG_000_2009(CWD) - 第6页
Confidential & P roprietary P A G E 2 3 4 5 6 7 8 9 10 1 CN33 PC1 +5V Q1 2 3 4 5 6 7 8 9 10 1 CN33 +24V-32 EMG CONVERTE R BOARD CVTR EM G GOOD S RV2 GOOD 3 2 1 GOOD 3 2 1 CONTROL BOX A01 GOOD SERVO BOARD 1 SRV1 GO OD…

Confidential & Proprietary
PAGE
J0014
QF31 (4-6.3A)
set 6A
W50
V50
U50
V51
U51
W51
V51
U51
J0013
W
V
U
230V
230V
230V
N
0V
190V
200V
208V
220V
240V
0V
190V
200V
208V
220V
240V240V
220V
208V
200V
190V
0V
240V
220V
208V
200V
190V
0V
240V
220V
208V
200V
190V
0V
240V
220V
208V
200V
190V
0V
200V
200V
200V
2.79KVA
J0655
J0654
J0653
J0012
J0011
J0010
J0009
J0008
J0007
J0006
J0005
J0004
J0003
TM11
U50
V50
W50
T2S2
R2
NOTE:
Icu≧7.5kA(AC440V)
MAX600V/20A
QF11
R2
T2
S2
S2
R2
T1
S1
R1 L1
L2
L3
T2
T3
T1
J0002
T1
S1
R1
MAX690V/25A
T1
T2
T3
L1
L3
L2
QS11
L3
L2
L1
J0652
MAIN SWITCH
BRACKET
J0001
≧AWG11
(4sq)
At the UPS specification
U10B
V10B
U10A
V10A
J0031
U10B
V10B
J0655
J0656
R2
S2
1.00KVA
TC11
REAR MONITOR
LCD2
REAR
LCD2
FRONT MONITOR
LCD1
LCD1
FRONT
High Voltage
!
when MAIN SW QS11 is OFF.
Residual risk
CONTROL BOX A1.
・Chemical capacity for motor power in
and MAIN SW QS11.
・Secondary side of UPS.
・Between INCOMING SUPPLY TERMINAL BLOCKS XB11
*
J0651
XB11
L3
L2
L3
L2
L1
L1
PE
PE
・Around J0001,J0002 harness.
・On the cover under the rear center.
・On the cover under the front right side.
・On the lower former cover at CONTROL BOX A1.
・Near the MAIN SW QS11.
・Lower of INCOMING SUPPLY TERMINAL BLOCKS XB11.
that might be gotten an electric shock.
*The charge mark is put on the place
・On the cover under the rear left side.
QF61 10A
J0019
J0020
J0021
IF RAS
J0201
B10
・
A7
B7
A8
B8
・
RAS
A1
LCD2
2
1
2
1
J0202
B3
A3
・
A1
MOTOR
POWER
C/R DC24V
DC24V:FAN POWER
CONTROL BOX
AC100V
AC230V
3
2
1
3
2
1
AC230V:DRIVE
AC100V:CONTROL
ACIN
A01
J0017
J0032
E
25
4
6
1
3
MAX500V/6A
J0659
W51
U51
V51
W52
V52
U52
NF11
J0018
QS11A *2
41 42
33 34
41 42
IF RAS
V10
U10
QF21
XT21
J0201
J0902
GB01
J0901
UPS RMT
UPS SIG
UPS SIGNAL
J0903
UPS OUT
UPS OUT
UPS ASSY
UPS IN
UPS INJ0903
See Page 5
CONTROL BOX -2-
Note2 : *2(Auxiliary contact) is attached to the QS11.
J0067H POW/EMG
・・
6
5
6
5
2
1
2
1
CN2
B1
・
B3
A3
A1
GND+24V
+24V
GND+48V
+48V
B1
・
B3
A3
A1
HP CN2
HEAD POW BOARD ASSY
P042
STEPPER DRV BRD ASSY-1
GND+MV
+MV
CN1STP1 CN1
4
3
2
1
4
3
2
1
GND+24V
+24V
STEPPER DRV BRD ASSY-2
STEPPER DRV BRD ASSY-1
P091
GND+MV
+MV
CN1STP1 CN1
4
3
2
1
4
3
2
1
GND+24V
+24V
See Page 6
See Page 6
+MV
GND+MV
STP2 CN1 CN1
4
3
2
1
4
3
2
1
GND+24V
+24V
P092
P091See Page 6
J0403
6
・
2
1
STP+48V
2
1
STP+24V
6
・
2
1
2
1
STP+48V
STP+24V
J0406
6
・
2
1
STP+48V
2
1
STP+24V
J0065
J0068
J0661
0V48
+48V
300W 6.3A
Peak 21A 5sec
J0660
V51
U51
L
N
FG
+
+
-
-
GS31
J0051
J0053
+24V-42
CN41
2
1
CN41
2
1
+24V-46
+24V-45
P021
CN43
4
3
2
1
CN43
4
3
2
1
FEEDER HOLDER
I/O CONVEYOR BOARD ASSY
CONV IO CN1 CN1
+24V
2
1
2
1
See Page 7-9
J0045
J0047 *1
J0046
J0042
+24VA3
+24VA2
QF43 7A *1
QF42 7A
J0043 *1
+24VA1
QF41 10A
+24VA
J0044
0V24A
XT41
0V24A
MAX660V/38A
0V24A
0V24A
0V24A
0V24A
J0041
J0662
600W 25A
L
N
FG
+
+
-
-
GS21
U11
V10
J0033
J0663
0V24A
+24VA
Peak 40.5A 5sec
R FDR PWR
F FDR PWR
J0021
J0020
MAX660V/38A
J0658
U10
U11
U11
QF21 10A
V10 V10
V10
XT21
V10
J0031
U10
V10
J0657
J0656
1.00KVA
S2
R2
240V
220V
208V
200V
190V
0V
240V
220V
208V
200V
190V
0V
0V
100V
100V
100V
0V
0V
TC11
J0019
H+48V
66
・・
2
1
2
1
H+24V
2
1
2
1
J0066
Note1 : *1 is attached when Rear FEEDER/sATS15 is chosen.
FIX24,sATS15
KM11
W52
V52
U52
3/L2 4/T2
5/L3
1/L1 2/T1
6/T3
MAX690V/12A
See Page 3
+48V
EMERGENCY CIRCUIT
KM12
MAX690V/12A
5/L3
3/L2
1/L1 2/T1
4/T2
6/T3
W54
V54
U54
+48VB
+48VB2
+48VB1+48VB
QF52 3A
QF51 3A
MAX660V/38A
0V48
0V48
XT31
0V48
0V48
J0064
J0015
J0061
J0062
PU-AXIS none(Option)
(Option)
Standard
240V
220V
208V
200V
190V
0V
240V
220V
208V
200V
190V
0V
0V
100V
100V
100V
0V
0V
See Page 15
See Page 15
See Page 15
See Page 10,11
See Page 12-14
See Page 4,5
MAX600V/35A
V3
2
POWER CIRCUIT
YSM10

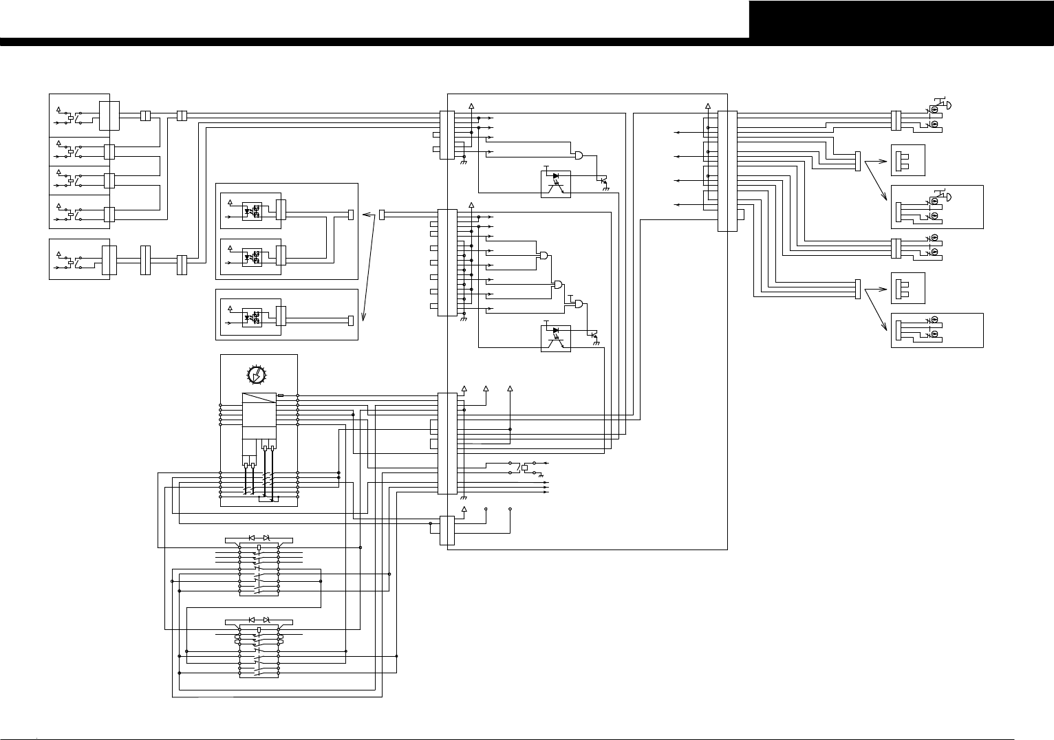
Confidential & Proprietary
PAGE
2
3
4
5
6
7
8
9
10
1
CN33
PC1
+5V
Q1
2
3
4
5
6
7
8
9
10
1
CN33
+24V-32
EMG
CONVERTER BOARD
CVTR EMG
GOOD SRV2 GOOD
3
2
1
GOOD
3
2
1
CONTROL BOX A01
GOOD
SERVO BOARD 1
SRV1 GOOD
3
2
1
GOOD
3
2
1
3
2
1
GOOD
3
2
1
IF RASRAS
REMOTE IF BOARD
B10
・
B2
A2
B1
A1
B10
・
B2
A2
B1
A1
GOOD
CN35
B1
A1
+24V-33
CN35
B1
A1
SERVO BOARD 2 *3
P042
CN2
B3
A3
B2
A2
B1
A1
HEAD POW BOARD ASSY
GOOD
HP CN2
B3
A3
B2
A2
B1
A1
※sATS15 Spec.
・ ・
B4
A4
B3
A3
N01004F2
F EMG SW
B4
A4
B3
A3
・・
B7
A7
B6
A6
N01004F3
R EMG SW
B7
A7
B6
A6
・・
B10
A10
B9
A9
N01004F4
B10
A10
B9
A9
F COVER SW
・ ・
A13
B12
A12
N01004F5
A13
B12
A12
R COVER SW
B28
・
B28
・
・・
B30B30
H POW/EMG
5
66
5
4
3
2
1
4
3
2
1
H EMG
44
33
22
11
A1
B1
A2
B2
A3
B3
A5
A4
B4
B6
B5
A6
A8
B8
A9
B9
B7
A7
A11
B11
B10
A10
CN31
A1
B1
A2
B2
A3
B3
A5
A4
B4
B6
B5
A6
A8
B8
A9
B9
A7
B7
A11
B11
A10
B10
CN31
+24V-30
+5V
PC2
+5V
Q2
IF GOOD
2
1
2
1
C/R GOOD
2
1
2
1
SPARE/N0100536
SPARE/N0100550
SPARE/N0100547
SPARE/N0100546
SPARE/N0100545
SPARE/N0100544
SPARE/N0100543
STEPPER DRV GOOD/N0100535
HEAD GOOD/N0100534
SPARE/N0100542
SPARE/N0100541
CONTROL BOX GOOD/N0100533
STP1 CN2CN2
STEPPER DRV BRD ASSY-1
44
33
22
11
2
1
STP GOOD
P091
GOOD
2
1
STP GOOD
CN2
4
3
2
1
STP2 CN2
4
3
2
1
STEPPER DRV BRD ASSY-2
P092
GOOD
STP1 CN2CN2
STEPPER DRV BRD ASSY-1
44
33
22
11
2
1
STP GOOD
P091
GOOD
B2
A3
B3
B2
A3
B3
A1
B1
A2
CN38
+24V-38
A1
B1
A2
CN38
+24V-36 +24V-37
A5
B5
A6
B6
A7
B7
A8
A5
B5
A6
B6
A7
B7
A8
・ ・
・
B13
・
A14
・
B13
・
A14
RL1
READY OUT/T01000E1
B17
A17
B16
B17
A17
B16 SERVO ON/N0100530
CONTACTOR ON1 /N0100531
CONTACTOR ON2 /N0100532
KM10 A1 +24V
KM10 T31 FB0
KM10 A2 0V
KM10 T32 FB3
KM10T12 SAFE1
KM10T23 SAFE1
KM10T11 SAFE0
KM10
KM10 44 +24C
KM10 24 SRVON
KM10 14 +24B
KM10 34 +24E
KM10 43 +24V
KM10 33 +24V
KM10 23 +24V
KM10 13 +24V
1
2
3 5
6
7
23
33
43
53
61
14
24
34
44
54
Off
Delay
Timer
K1K2
K3K4
62
A1
A2
T11
T12
4
T21
T22
T31
T32
T23
*OFF-delay time setting switch
Set time 0.5sec
PE
B
A
Control
Circuit
13
ACDC
LOGIC
I/O CONVEYOR BOARD ASSY P021
W54
V54
U54
S11
KM11 54 KMON1
21 22
73 74
83 84
53 54
A1 A2
1/L1
3/L2
5/L3
2/T1
4/T2
6/T3
61 62
KM11/KM11A
W52
V52
U52
KM11 61 FB1
KM11 21 FB1
KM11 62 FB2
KM11 22 FB2
KM11 53 +24V
KM11 A2 0VKM11 A1 +24B
+48VB
KM12 61 FB2
KM12 21 FB2
KM12 62 FB3
KM12 22 FB3
S12
KM12 54 KMON2
KM12 A1 +24C KM12 A2 0V
KM12 53 +24V
+48V
KM12/KM12A
21 22
73 74
83 84
53 54
A1 A2
1/L1
3/L2
5/L3
2/T1
4/T2
6/T3
61 62
+24V-13 +24E-1 IN +24E-2 IN
2
1
CN14
・
12
6
・
2
1
CN14
・
12
6
・
Standard
PU-AXIS none(Option)
4
3
4
3
SB31
FRONT EMG SW
F EMG SW
2
1
2
1
4
3
2
1
R EMG SW
4
3
2
1
Standard
SB32
REAR EMG SW
4
3
2
1
EMG SW
SQ101
4
3
2
1
4
3
2
1
COVER
4
3
2
1
COVER
SQ102
4
3
2
1
F COVER
FRONT COVER SW
REAR COVER SW
Standard
4
3
2
1
R COVER
REAR SAFETY COVER(Option)
REAR SAFETY COVER(Option)
KM11 84 KMON1KM11 83 +24V
KM12 83 +24V KM12 84 KMON2
V3
3
EMERGENCY CIRCUIT
YSM10

Confidential & Proprietary
PAGE
CONTROL BOX ASSY A01
J0122
Y1P
Y2P
J0121
J0123
J0156
XP
XM
Y1P
Y1M
Y2P
Y2M
SCP
SCM
XP
XM
SYS LAN2
CONTROL BOX -2-
See Page 5
CN39
CONVEYOR I/O -3-
AZBK
FLEXIBLE
DUCT Y
AZM
AHM
INTERCONNECTION DIAGRAM
AHP
AZP
S2 BK+24V
J0316
J0163
J0133
J0132
J0131
J0162
J0161
M03
M02
M01
ECAT IN
ECAT OUT
TRG1
TRG2
GOOD
ECAT IN
SRV1 ECAT IN J0186
ECAT OUT
BRAKE
E02
S1 M1
M1
J0152
SERVO 1
J0111
ENCODER2 AXIS
INC ENC3 : -
ENCODER1 AXIS
SER ENC1 : Y1
SER ENC2 : Y2
INC ENC1 : -
INC ENC2 : -
SER ENC3 : X
SER ENC4 : -
INC ENC4 : SC
ENCODER2
SRV1 ENC1
ENCODER1
J0112
J0151
E01
S1 M0
M0
E03
J0153S1 M2
M2
E04
J0154S1 M3
M3
SRV1 ENC2
BRAKE
J0802
J0803
M0
M1
E06
E07
S2 M0
S2 M1
M2
DUMMY PANEL
ENCODER2 AXIS
SER ENC3 : -
SER ENC4 : -
INC ENC1 : AZ
INC ENC2 : AH
SER ENC1 : -
SER ENC2 : -
ENCODER1 AXIS
INC ENC3 : -
J0801SRV2 ENC1
ENCODER1
INC ENC4 : -
ENCODER2
M3
J0804SRV2 BK
J0187
SRV2 GOOD
DUMMY PANEL
J0261
CN33
CN43
POWER CIRCUIT
See Page 2
CONVEYOR I/O -3-
CONVEYOR I/O -2-
F MULTI CAMERA
R MULTI CAMERA
CONVEYOR I/O -3-
H CAM
J0017
TRG1
TRG2
GOOD
SRV1 GOOD
CONVERTER
C/R DC24V
AC230V
AC IN
J0211C/R FAN
EMG
FAN PWR
FAN
J0053
DUMMY PANEL
CAM1(HALF)
VIS1 CAM1 J0706
CAM2(FULL)
VIS1 CAM2 J0701
CAM3(HALF)
VIS1 CAM3 J0707
CAM4(FULL)
TRG1
TRG2
ON
OFF
1 2
SW1
VISION
J0203
J0401
C/R BOX FAN SET
C/R FAN
C/R FAN2
C/R FAN6
FAN2
FAN6
PANELJ0212
SRV1 AE1
SRV1 AE2 J0402
CVTR EMG
STP DRV1
STP DRV2
See Page 6
See Page 9
See Page 9
See Page 8
See Page 9
S1 TRG1
V1 TRG1
SERVO 2 *3
CONV.DRIVER
See sATS15
Note3 : *3 is attached when sATS15 is chosen.
KM11
sATS15(Option)
HM HEAD See Page 10
HM5 HEAD See Page 11
HM HEAD See Page 10
HM5 HEAD See Page 11
STO1
STO2
□80 750W
Y1-AXIS
Y2-AXIS
□80 750W
□80 750W
X-AXIS
V3
4
CONTROL BOX -1-
YSM10