YSM40R_KMB-100_mpl - 第61页
KMB-100-1607 24 10 16 12 23 5 17 20 13 15 6 18 7 21 3 22 14 21 24 8 4 26 2 24 17 11 27 9 26 1 25 28 1 25 28 19 8 1 Blow Station (Fix) Blow Station

KMB-100-1607
Rev. :It had a change without the compatibility. Please be careful at the time of the parts ordering.
Rev.: 過去に互換性の無い変更が入った部品。部品発注時は注意してください。
No. Part No. Part Name Q’ty Remarks Rev. Rank Level
1 KGA-M9113-00 GUIDE 1,END 2 /
Í
2 KGA-M9114-00 GUIDE 2,END 2 /
Í
3 KLF-M653M-01 SENSOR ENT ASSY 2 B
Í
4 KLF-M913A-A1 PULLEY,ASSY 8 /
Í
5 KLF-M9150-A0 PULLEY,CONV. ASSY 8 /
Í
6 KLF-M9171-02 FRAME,CONVEYOR 1 /
Í
7 KLF-M9172-02 FRAME,CONVEYOR 1 /
Í
8 KLF-M9173-00 PLATE 1A,GUIDE 4 /
Í
9 KLF-M9174-00 GUIDE 1-1 4 /
Í
10 KLF-M9175-00 STAY,PLY 1 2 /
Í
11 KLF-M9176-00 STAY,PLY 2 2 /
Í
12 KLF-M9177-01 BELT,CV 1 4 E
13 KLF-M9178-00 STAY,SENS.1 1 /
Í
14 KLF-M9179-00 STAY,SENS.2 1 /
Í
15 91312-03008 BOLT HEX,SOCKET HEAD 16
16 91312-04010 BOLT HEX,SOCKET HEAD 12
17 91312-04012 BOLT HEX,SOCKET HEAD 8
18 92902-03200 WASHER,PLAIN 8
19 92902-04200 WASHER,PLAIN 4
20 92902-05200 WASHER,PLAIN 8
21 92902-05600 WASHER,PLAIN 4
22 95302-05600 NUT HEXAGON 4
23 97602-03310
SCREW PAN HEAD W/WASHER
4
24 KMB-M9171-01 FRAME,CONVEYOR 1
25 KMB-M9172-01 FRAME,CONVEYOR 1
26
27
28
29
30
31
32
33
34
35
36
37
38
No. Part No. Part Name Q’ty Remarks Rev. Rank Level
39
40
41
42
43
44
45
46
47
48
49
50
51
52
53
54
55
56
57
58
59
60
61
62
63
64
65
66
67
68
69
70
71
72
73
74
75
76
7
9
Extension
Conveyor

KMB-100-1607
Rev. :It had a change without the compatibility. Please be careful at the time of the parts ordering.
Rev.: 過去に互換性の無い変更が入った部品。部品発注時は注意してください。
No. Part No. Part Name Q’ty Remarks Rev. Rank Level
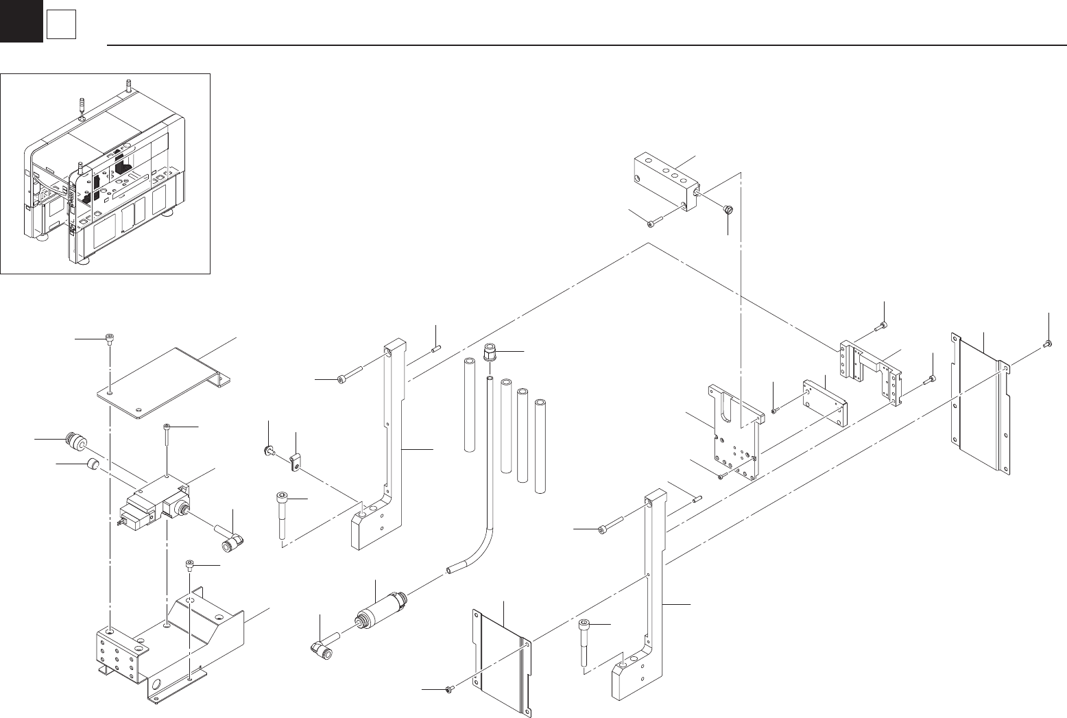
1 KLF-M9901-10 BASE,BLOW ST. 2 /
Í
2 KLF-M9902-11 BRACKET,VALVE 1 /
Í
3 KLF-M9903-10 BLOCK,BLOW ST. 1 /
Í
4 KLF-M9905-10 PLATE,BLOW ST.1 1 /
Í
5 KLF-M9906-A0 VALVE ASSY. 1 B
Í
6 KLF-M9907-10 PLATE,BLOW ST.2 1 /
Í
7 KMB-M9908-00 PLATE,BLOW ST.3 1 /
Í
8 KLF-M9911-10 COVER,BLOW ST.1 1 /
Í
9 KLF-M9924-10 COVER,BLOW ST.2 1 /
Í
10 KLF-M9931-10 COVER,HNS.2 1 /
Í
11 KGR-M9934-01 INLINE FILTER 1 E
12 K40-M8598-10 PLUG 1 1
13 $NK-2N NYLON CLIP 1
14 $PF PLUG 1
15 $TS6-01M JOINT 1
16 $TSH6-02 JOINT 1
17 $ULA6M JOINT 2
18 90112-02J006 BOLT,HEX.SOCKET HEAD 4
19 90112-02J008 BOLT,HEX.SOCKET HEAD 4
20 90990-11J003 SCREW,PAN HEAD W/W 1
21 91312-03010 BOLT,HEX.SOCKET HEAD 4 M3X10
22 91312-03014 BOLT,HEX.SOCKET HEAD 2 M3X14
23 91312-03020 BOLT,HEX.SOCKET HEAD 2 M3X20
24 91312-04006 BOLT,HEX.SOCKET HEAD 6 M4X6
25 91312-04025 BOLT,HEX.SOCKET HEAD 2 M4X25
26 91312-06045 BOLT,HEX.SOCKET HEAD 4 M6X45
27 98902-03006 SCREW, BINDING HEAD 10
28 99480-03010 PIN, PARALLEL 4
29
30
31
32
33
34
35
36
37
38
No. Part No. Part Name Q’ty Remarks Rev. Rank Level
39
40
41
42
43
44
45
46
47
48
49
50
51
52
53
54
55
56
57
58
59
60
61
62
63
64
65
66
67
68
69
70
71
72
73
74
75
76
8
1
Blow Station (Fix)
Blow Station
