DECAN_S2_TRM(Ver2.3_CS18.01) - 第152页
Page +$1:+$ 148 DECAN S2 ANC 34 32 30 29 27 28 25 26 23 24 21 22 20 19 17 18 16 15 13 14 11 12 10 9 7 8 6 5 3 4 2 1 35 33 31 34 32 30 29 27 28 25 26 23 24 21 22 20 19 17 18 16 15 13 14 11 12 10 9 7 8 6 5 3 4 2 1 35 33 31…

Page
+$1:+$
147
DECAN
S2
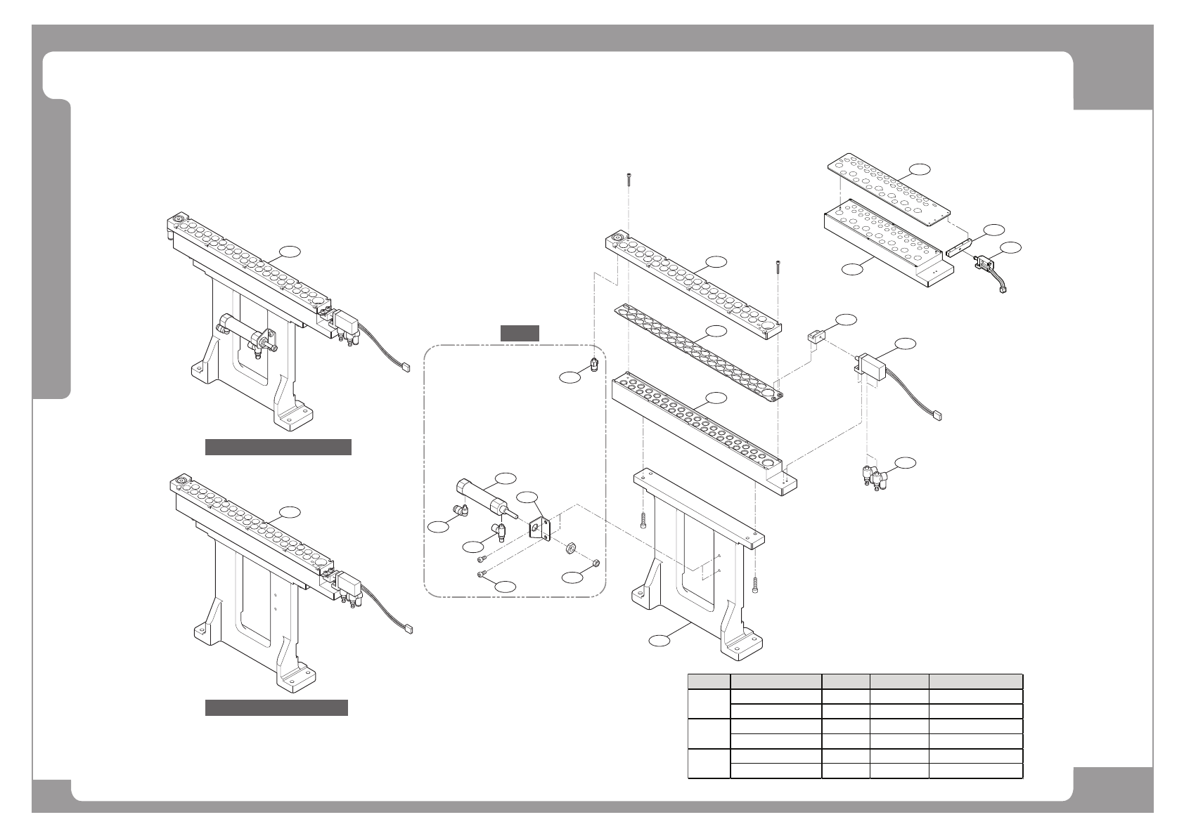
Y Frame
NO. PART NO. PART NAME Q'TY Old No. Supply Supply LT Reference
1 FC15-002053C COVER_SIDE_CABLE 4 FC15-002053A
2 FC29-004382A STOPPER 4 FC10-000046
3 FC09-003547B STOPPER_BKT 4 FC09-003547A
4 FC39-001344C FRAME_Y1 1 FC39-001344B
5 FC28-000196 LINEAR_SCALE_UNIT_SCANNING_HEAD_LIC219 4 LINEAR SCALE HEAD
FC28-000197 LINEAR_SCALE_UNIT_LIC2107_SCALE_1220MM 4 LINEAR SCALE
6 FC09-003089A SENSOR_BKT_HOME_Y 2
7 EP19-900114 PHOTO_SENSOR 6
8 AM03-001073 ASSY,ETC,IMS-TCM-STW-124-T2-1539L-S 6
9 FC15-003146A COVER-HH_SCALE_UPPER 2
10 MC13-900031 LM_GUIDE-Y 2
11 FC09-003088A SENSOR_BKT_HOME_Y_2 2
12 FC18-903190 TIE_MOUNT_DIA4 8
13 FC39-001345C FRAME_Y2 1 FC39-001345B
14 FC09-000877B BRACKET-FD_BOARD_BKT 2 FC09-000877A
15 FC29-900610 HEX SUPPORT 18 FC29-900611
16 AM03-000819B ASSY,BOARD-FEEDER IO BOARD ASSY 2
17 FC29-900609 HEX SUPPORT 8
18 J91741071A FEEDER_INPUT_EXT_BOARD VER 1.1 2
19 AM03-007102B ASSY,BOARD-SM481 FIX ILL 1 REV1.1
FC11-001001A CARRIER-LIC2107_LINEAR_SCALE_CARRIER 4
FC18-003252A CLAMP-LIC2107_LINEAR_SCALE_CLAMP 2

Page
+$1:+$
148
DECAN
S2
ANC
34
32
30
29
27
28
25
26
23
24
21
22
20
19
17
18
16
15
13
14
11
12
10
9
7
8
6
5
3
4
2
1
35
33
31
34
32
30
29
27
28
25
26
23
24
21
22
20
19
17
18
16
15
13
14
11
12
10
9
7
8
6
5
3
4
2
1
35
33
31
Front Fixed ANC Ass'y
Front
Rear Fixed ANC Ass'y
1
15
2
3
4
5
6
8
7
15
17
34
32
30
29
27
28
25
26
23
24
21
22
20
19
17
18
16
15
13
14
11
12
10
9
7
8
6
5
3
4
2
1
35
33
31
9
10
11
12
13
19
16
17
18
Option Part Number (Assy) Location ANC Holes Description
J90561001A Front 35 Common with SM411
J90561002A Rear 35 Common with SM471
J90561001A Front 35 Common with SM471
AM03-012116A Rear 29 DECAN F2 Only
AM03-012985A Front 29 DECAN F2 Only
AM03-001536A Rear 37 Common with SM481
Standard
Dual
Single

Page
+$1:+$
149
DECAN
S2
ANC
NO. PART NO. PART NAME Q'TY Old No. Reference
1 J7156087A SHUTTER BRACKET[J7156087A] 1
2 HP03-900032 AIR CYLINDER BDAS 10X5-1A-ZC153A2 1
3 J7156043B SHUTTER BRACKET[J7156043B] 1
4 HP14-900085 SPEED CONTROLLER [SS4-M5MA] 2
5 AM03-001543A CABLE ASSY-ANC_SENSOR_CABLE_ASSY 1
6 FC09-004601A CYLINDER_BRACKET J70561001A 1 J70561001A
7 HP06-900027 FITTING [KQ2L04-M5/PL4-M5M/SQL04-M5] 1
8 HP14-900088 SPEED CONTROLLER[AS1211F-M5-04] 1
9 HP06-900255 STRAIGHT FITTING KQ2H04-M5 1
10 HP03-900054 AIR_CYLINDER 1
11 J71561001B ANC_PLATE 1 ST FRONT, ST REAR, DUAL FRONT
FC30-002002A PLATE-ANC_DECAN 1 DUAL REAR, SINGLE FRONT
12 J71561002B ANC_NOZZLE_SHUTTER 1 ST FRONT, ST REAR, DUAL FRONT
FC14-000729A NOZZLE-SHUTTER_ANC_DECAN 1 DUAL REAR, SINGLE FRONT
J71561036A NOZZLE_SHUTTER_SMALL_PIN 1 SINGLE REAR
13 J71561003B ANC_MAIN_BODY 1 ST FRONT, ST REAR, DUAL FRONT
FC39-001625A BODY-ANC_DECAN 1 DUAL REAR, SINGLE FRONT
J71561034A MAIN_BODY_SMALL_PIN 1 SINGLE REAR