DECAN_S2_TRM(Ver2.3_CS18.01) - 第197页
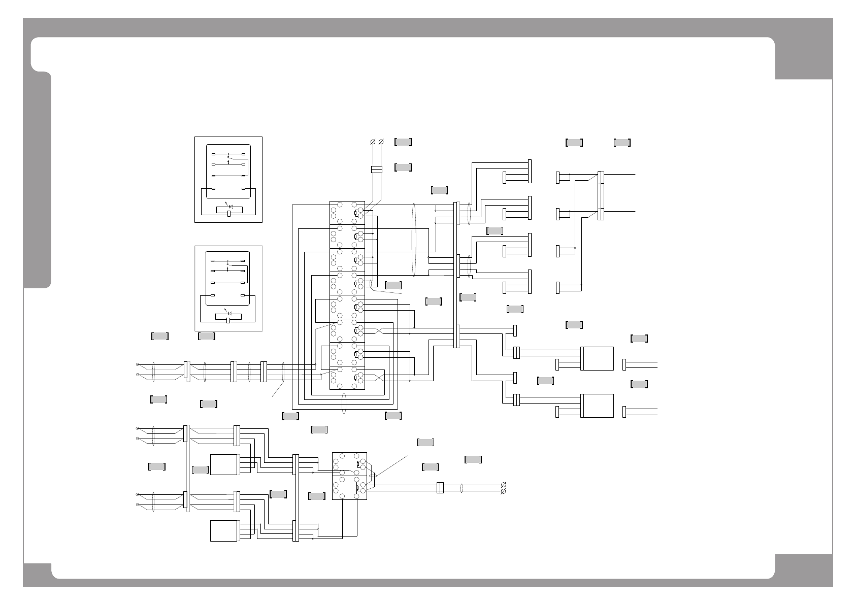
Page +$1:+$ 193 DECAN S2 Electric Power (7/9) NO. PA R T N O . P ART NAME Q'TY Old No. Supply Supply L T Reference 1 A M03-010930A CABLE ASSY -PS5_PS6_DC 24V_PWR 2 2 A M03-010946 A CABLE ASSY -RY3_RY5_T7L 2 3 A M03-…

Page
+$1:+$
192
DECAN
S2
Electric Power (7/9)
1
3
3
4
6
4
5
7
7
7
8
10
10
11
9
11
12
13
2 1
14
15
16
17
17
16
7
2
SM41_PW034
SM511_PW032
J90834654A
SM511_FD013
AM03-005463A
SM471_PW006
SM511_PW149-1
SM471_FD008
SM511_PW207
1
3
5
7
2
4
6
8
LY1N AC RELAY(AC220V)
RY1~RY2,RY7~RY10
1
3
5
7
2
4
6
8
LY1N DC RELAY(DC24V)
RY3~RY6
(+)
(-)
SM511_PW149-1SM511_PW149
SM511_PW149
SM511-PW149
SM511_PW149-1
SM511_PW148
AM03-011267A
AM03-011268A
SM511_PW148
SM511_PW033
SM511_PW207 SM511_PW103
SM511_PW202
SM511_PW202
SM411N_FD001
SM411N_FD001
SM_FD003
SM_FD003
SM511_PW103
SM511_PW127
SM511_PW127
SM511_PW148
SM511_PW148
AM03-011275AAM03-011274A
AM03-011273A
AM03-011273A
AM03-011270A
AM03-011272A
AM03-010945A
AM03-010945A
AM03-010938A
AM03-010938A
AM03-010946AAM03-010930A
AM03-011275A
AM03-011274A
AM03-011273A
AM03-011269A
AM03-005697A
AM03-011273A
EP02-000588A
EP02-000588A
J90800838D
J90800838D
AM03-010946A AM03-010930A
SM511_FD010
SM511_FD011
2C
7C
4C
9A
12
4 3
6
87
5
RY1
12
4 3
6
87
5
RY2
AC220VH
AC220VN
12
4 3
6
87
5
RY3
12
4 3
6
87
5
RY4
12
4 3
6
87
5
RY5
12
4 3
6
87
5
RY6
12
4 3
6
87
5
RY7
12
4 3
6
87
5
RY8
12
4 3
6
87
5
RY9
12
4 3
6
87
5
RY10
+24V
24G
+24V
+24V
+24V
24G-EX-4
+24V
+24V
AC220VH
AC220VN
1
2
RELAY-BK2
1
2
34
34
16
15
RELAY-BK2
16
15
14 14
13 13
4
3
T7L-6/8
4
3
22
11
+24V
+24V
A1
B1
RELAY-BK1-1
A1
B1
1
3
R-FB-R
2
4
1
2
+24V
+24V
24G
24G
24G-EX-2
1
3
F-FB-R
2
4
1
2
+24V
+24V
24G
24G
24G-EX-3
1
3
R-FB-L
2
4
1
2
+24V
+24V
24G
24G
24G-EX-1
1
3
F-FB-L
2
4
1
2
+24V
+24V
24G
24G
A2 A2
B2 B2
A3
B3
RELAY-BK1-2
A1
B1
A4 A2
B4 B2
+24V
A5
B5
A1
B1
A6 A2
B6 B2
RELAY-BK1-3
1
5
1
2
1
2
R-FD-CN13
+24V
24G
+24V
24G
FD-CN13-EX
+24V
24G
1
5
1
2
1
2
F-FD-CN13
+24V
24G
+24V
24G
FD-CN13-EX
1
5
RFD-CN7
1
5
+24V
24G
+24V
24G
2~4
6~12
2~4
6~12
FD-CN7-EX
FD-CN7-EX
FFD-CN7
A1
B1
RELAY-BK1-4
A7
B7
A2 A8
B2 B8
+24
+24
SC-CN2
1
2
24G 3
24G 4
+24
+24
SC-EN2
1
2
24G3
24G4
+24V
+24V
+24V
+24V
A1
B1
RELAY-BK1-5
A9
B9
A2 A10
B2 B10
+24
+24
SC-CN1
1
2
24G 3
24G 4
+24
+24
SC-EN1
1
2
24G3
24G4
+24V
+24V
+24V
+24V
24G-EX-4
1
2
24G-EX-2
1
2
24G-EX-3
1
2
24G-EX-1
1
2
T7L
7
5
7
5
PS6-24G
PS5-24G
1
2
3
4
1
2
3
4
+24
+24
24G
24G
+24
+24
24G
24G
FD-CN7-EX
FD-CN7-EX
(tO Front FEEDER BASE B/D)
(tO Rear FEEDER BASE B/D)
1370mm
2350mm
PS6+24V
PS5+24V
8
T7L
6
8
6
+24V
+24V
+24V
+24V
PS2+24V
PS5-24G
9
T6L
10
9
10
+24V
24G
+24V
24G
PS1+24V
PS1-24G
7
8
7
8
+24V
24G
+24V
24G

Page
+$1:+$
193
DECAN
S2
Electric Power (7/9)
NO. PART NO. PART NAME Q'TY Old No. Supply Supply LT Reference
1 AM03-010930A CABLE ASSY-PS5_PS6_DC24V_PWR 2
2 AM03-010946A CABLE ASSY-RY3_RY5_T7L 2
3 AM03-010938A CABLE ASSY-PS1_PS2_SACO_T6L 2
4 AM03-010945A CABLE ASSY-PS34_AC_PS12_DC_PW_T6L 2
5 AM03-011270A CABLE ASSY-GENERAL_PW_RELAY 1
6 AM03-011272A CABLE ASSY-FEEDER_PW_RELAY 1
7 AM03-011273A CABLE ASSY-RELAY_BRK_MODULE_DC 4
8 AM03-005463A CABLE ASSY-24V POWER EXT 1
9 AM03-900148 RELAY_CONNECT_CABLE_ASSY SM41-PW034 1
10 AM03-011274A CABLE ASSY-RELAY_BRK_MODULE_AC_DC 2
11 AM03-011275A CABLE ASSY-RY_BRK_220V_24V_PC_PWR 2
12 AM03-005697A CABLE ASSY-AC RELAY JUMPER 1
13 AM03-011267A CABLE ASSY-F_R_RIGHT_FEEDER_BASE_PWR 1
14 AM03-011268A CABLE ASSY-F_R_LEFT_FEEDER_BASE_PWR 1
15 AM03-011269A CABLE ASSY-F_R_FDR_PWR_RELAY 1
16 EP02-000588A HARNESS,WIRING-FEEDER CN7 EXT CABLE ASSY 2
17 J90800838D LEFT FDR SOL OUTPUT CABLE ASSY 2

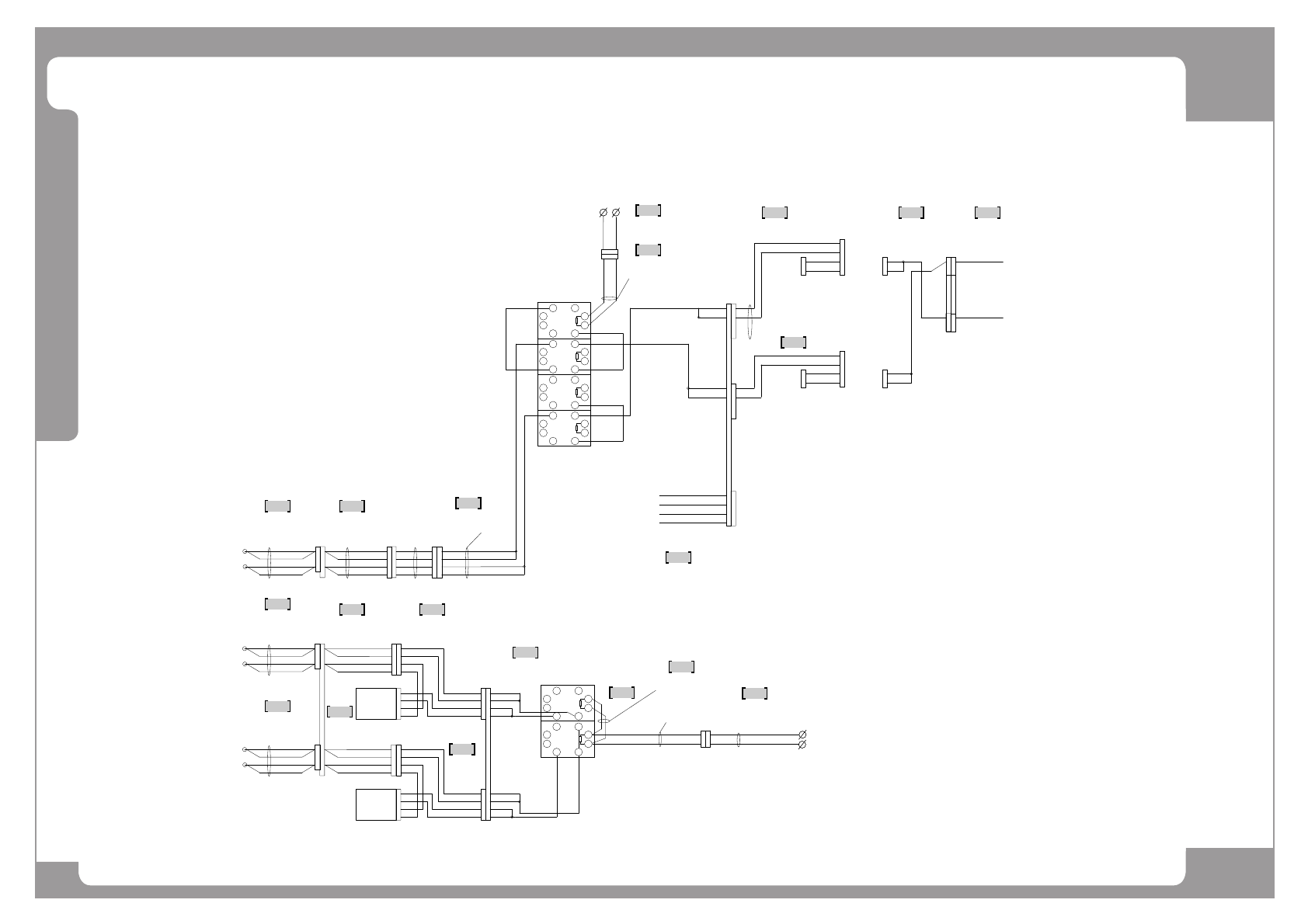
Page
+$1:+$
194
DECAN
S2
Electric Power (8/9)
1 2
4
4
5
7
8
8
9
10
5 6
3
3
SM41_PW034
SM511_PW032
J90834654A
SM511_PW149-1
SM511_PW207
SM511_PW149-1SM511_PW149-DC
SM511_PW149-DC
SM511_PW149-1
SM511_PW148-DC
AM03-011659A
SM511_PW033
SM511_PW207-DC SM511_PW103
SM511_PW202
SM511_PW202
SM511_PW103
SM511_PW127
SM511_PW127
SM511_PW148-DC
AM03-011275AAM03-011656A
AM03-011657A
AM03-011270A
AM03-011272A
AM03-010945A
AM03-010945A
AM03-010938A
AM03-010938A
AM03-010946AAM03-010930A
AM03-011275A
AM03-011656A
AM03-011657A
AM03-011655A AM03-010930A
SM511_FD006-DC
SM511_FD004-DC
AM03-011658A
SM511_PW149-DC
AM03-011656A
2C
7C
4C
9A
12
4 3
6
87
5
RY1
12
4 3
6
87
5
RY2
AC220VH
AC220VN
12
4 3
6
87
5
RY7
12
4 3
6
87
5
RY8
12
4 3
6
87
5
RY9
12
4 3
6
87
5
RY10
+24V
24G-EX-1
+24V
+24V
AC220VH
AC220VN
1
2
RELAY-BK2
1
2
34
34
16
15
RELAY-BK2
16
15
14 14
13 13
4
3
T7L-6/8
4
3
22
11
+24V
+24V
A1
B1
RELAY-BK1-1
A1
B1
1
3
F-24V-EX
2
4
1
2
+24V
+24V
24G
24G
24G-EX-2
1
3
R-24V-EX
2
4
1
2
+24V
+24V
24G
24G
A2 A2
B2 B2
A3
B3
RELAY-BK1-2
A1
B1
A4 A2
B4 B2
+24V
A5
B5
A1
B1
A6 A2
B6 B2
RELAY-BK1-3
A1
B1
RELAY-BK1-4
A7
B7
A2 A8
B2 B8
+24
+24
SC-CN2
1
2
24G 3
24G 4
+24
+24
SC-EN2
1
2
24G3
24G4
+24V
+24V
+24V
+24V
A1
B1
RELAY-BK1-5
A9
B9
A2 A10
B2 B10
+24
+24
SC-CN1
1
2
24G 3
24G 4
+24
+24
SC-EN1
1
2
24G3
24G4
+24V
+24V
+24V
+24V
24G-EX-41
1
2
24G-EX-2
1
2
T7L
7
5
7
5
PS6-24G
PS5-24G
1
2
3
4
1
2
3
4
+24
+24
24G
24G
+24
+24
24G
24G
PS6+24V
PS5+24V
8
T7L
6
8
6
+24V
+24V
+24V
+24V
PS2+24V
PS5-24G
9
T6L
10
9
10
+24V
24G
+24V
24G
PS1+24V
PS1-24G
7
8
7
8
+24V
24G
+24V
24G
DUMMY CONNECTOR
RELAY-BK2
OPTION-DOCKING CART
10
11 12
13
1
3