DECAN_S2_TRM(Ver2.3_CS18.01) - 第45页
Page +$1:+$ 41 DECAN S2 Shuttle Conveyor (4/10) - Exit NO. P ART NO. P ART NAME Q'TY Old No. Supply Supply L T Reference 1 FC05-000324B BASE-SHUTTLE 1 2 EP19-900109 PHOT O SENSOR 1 3 J70531402A SHUTTLE_HOME_SE NSOR_…

Page
+$1:+$
40
DECAN
S2
Shuttle Conveyor (4/10) - Exit
23
19
24
21
22
17
18
20
25
16
9
2
3
4
6
7
10
11
12
13
14
15
1
5
8
27

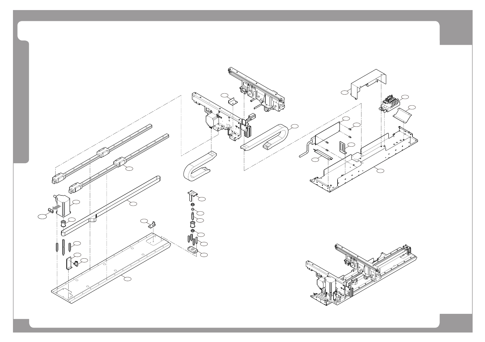
Page
+$1:+$
41
DECAN
S2
Shuttle Conveyor (4/10) - Exit
NO. PART NO. PART NAME Q'TY Old No. Supply Supply LT Reference
1 FC05-000324B BASE-SHUTTLE 1
2 EP19-900109 PHOTO SENSOR 1
3 J70531402A SHUTTLE_HOME_SENSOR_BKT 1
4 FC29-000612B SUPPORT-HEX_M4_L44 4 FC29-000612A
5 MC05-000151 TIMING_BELT-1491-3GT-20-UNITTA 1
6 J71531190A PULLEY10_P21-20-33F 2
7 EP08-000204 MOTOR,STEP-SPB56-2500P;SPB 1
8 MC13-900069 LM_GUIDE_SHUTTLE_SBS15SL-2-K1-728L-N 2
9 J70531570A SHUTTLE_BELT_TENSION_BKT 1
10 FC05-000084A BASE-PULLEY 1
11 FC29-004257A HEX_BAR_M4_L32_5_B 4 J70531400B
12 MC03-900081 FLANGE BEARING 2
13 J70531392A SHUTTLE_PULLEY_SHAFT 1
14 FC18-903151 SPACER-SMKB10-5 1
15 FC09-000764A BRACKET-PULLEY_FIX 1
16 FC29-002510B DOG-HOME_SENSOR 1 FC29-002510A
17 EP03-000034 CABLEVEYOR 2
18 J70531102B COVER_RIGHT_PLATE 1
19 HP14-000836 SOLENOID-SY3120-06-CJRZ0546 1
20 FC15-002453A TOP_COVER_CV 1
21 FC09-003345B BRACKET-CONNECTOR_S 1 FC09-003345A
22 J70531101A COVER_LEFT 1
23 J91741021A SM411_CONVEYOR_SENSOR_IF_BOARD 1
24 J6103005 PCB_SUPPORT 4 FC29-900611
25 FC30-001653A PLATE-CONVEYOR_UNDER 1
26 J74531005A SHUTTLE FIX JIG 1
27 HP06-900049 STRAIGHT FITTING 2

Page
+$1:+$
42
DECAN
S2
Shuttle Conveyor (5/10) - Exit
19
9
8
7
14
18
32
33
34
6
7
8
9
35
2
3
4
12
13
13
14
1
15
16
24
24
23
22
21
26
20
19
27
28
18
21
22
36
23
20
5
10
17
25
11
31
30
29
37
37
30