DECAN_S2_TRM(Ver2.3_CS18.01) - 第82页
Page +$1:+$ 78 DECAN S2 Full Dual Conveyor (9/12)

Page
+$1:+$
77
DECAN
S2
Full Dual Conveyor (8/12)
NO. PART NO. PART NAME Q'TY Old No. Supply Supply LT Reference
1 FC09-004582A BKT_TAIL 4 J70531024A
2 J72531002A BUSH_TAIL 4
3 FC09-004584A SUPPORT_BKT_L 4 J71531006B
4 J71531010C LM_BASE_R 2
5 MC13-900068 LM_GUIDE 2
6 FC29-002694D SUPPORT-DUMPBOX_1 2 FC29-002694B
7 AM03-011145B CABLE ASSY-F_DUMP_BOX_SWITCH 2
8 J72531005C DUMP_BOX 2
A AM03-017756A AIR_SHOWER_ASSY 1 J90531115A OPTION
B J70531016B PCB_GUIDE_RC 1 EDGE FIXER OPTION

Page
+$1:+$
78
DECAN
S2
Full Dual Conveyor (9/12)

Page
+$1:+$
79
DECAN
S2
Full Dual Conveyor (9/12)
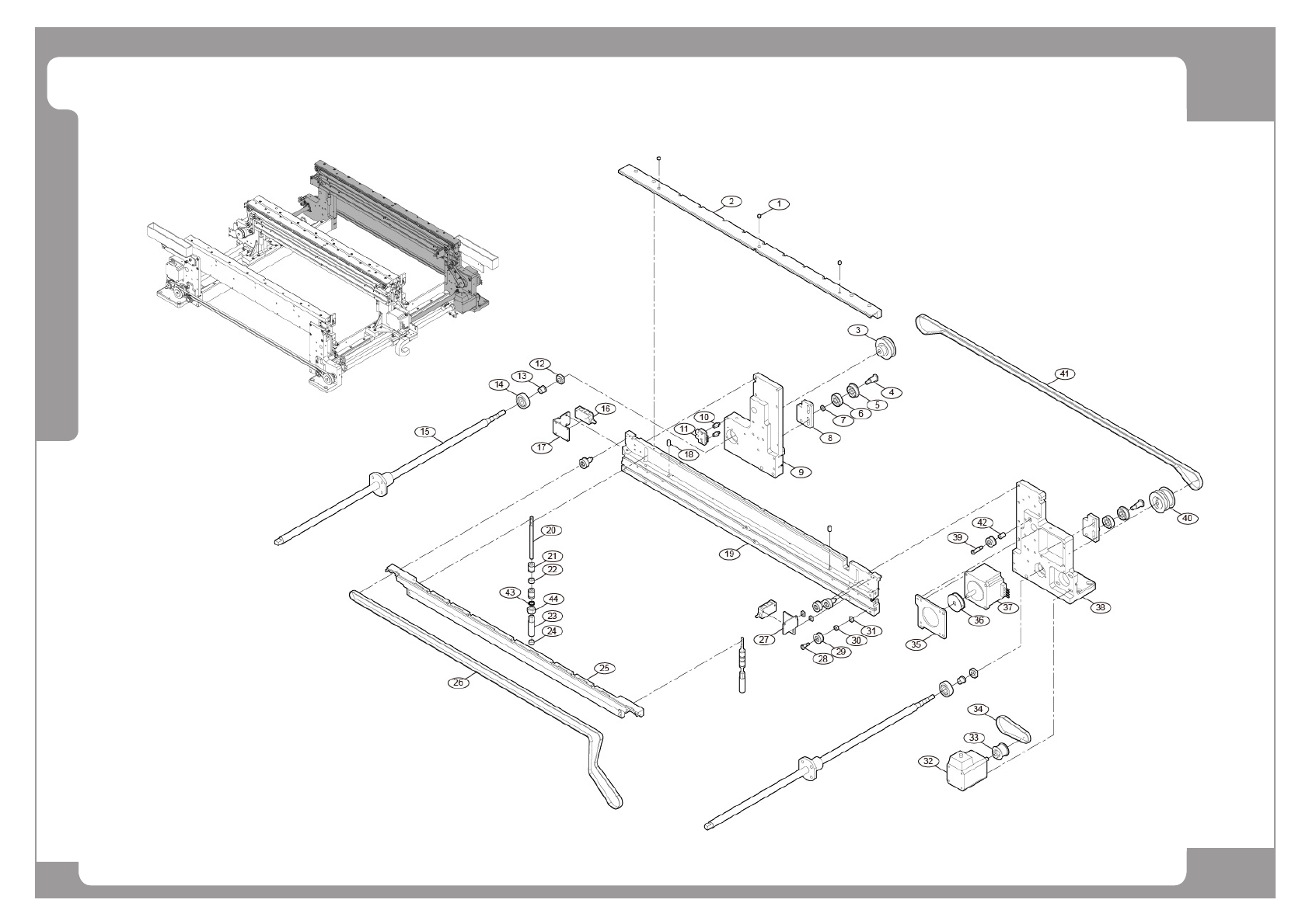
NO. PART NO. PART NAME Q'TY Old No. Supply Supply LT Reference
1 J7153373A FIDUCIAL_DISK 3
2 FC29-001514B GUIDE-PCB_GUIDE RC;SM45C 1 FC29-001514A
3 J71531024A WIDTH_PULLEY 1
4 J70531028A TENSION_BEARING_PIN 2
5 MC03-900121 BALL BEARING[F608ZZ] 2
6 MC03-900080 BALL BEARING[608ZZ] 2
7 J70531025A WIDTH_TENSION_SPACER 2
8 FC09-004587A TENSION_BRACKET 2 J70531027A
9 FC29-002750A SUPPORT_FIX_RAIL_R 1
10 FC29-900604 HEX SUPPORT 2 FC29-900611
11 EP19-900108 PHOTO SENSOR 1
12 FC18-900920 LOCK_NUT 2
13 J70531177A BUSHING 2
14 MC03-900008 BALL-BEARING-6000ZZ 2
15 MC13-900226 LEAD_SCREW 2
16 AM03-019720A CABLE ASSY-WORK_CONV_PCB SENSOR_DECAN 2
17 J70531644A BRACKET_WORK_SENSOR_H30 1
18 FC29-004427A STOPPER 2 2 J7253009B
19 FC39-001336A WORK_REAR_FRAME 1
20 J7153034A CLAMP SHAFT 2
21 MC06-900006 BALL_BUSH LMU5 4
22 FC18-001480A BUSH SPACER 2 J7153033A
23 FC01-000022A ADJUST SHAFT 2 J7153010B
24 FC29-004426A STOPPER 2 J7253008A
25 J71531046B CLAMP-REAR-FRAME 1
26 MC05-900057 BELT_WORK MAM-5P-1550-6W 1
27 FC09-002430B WORK SNS BKT R 1 FC09-002430A
28 MC19-001112A IDLER SHAFT-S 1 J2101818
29 J72531001A IDLER_2 5
30 FC18-001478A IDLER SPACER-S 1 J7053047A
31 J7053184A SQUARE NUT M4 3