RS-1-Rev02PDFA - 第90页
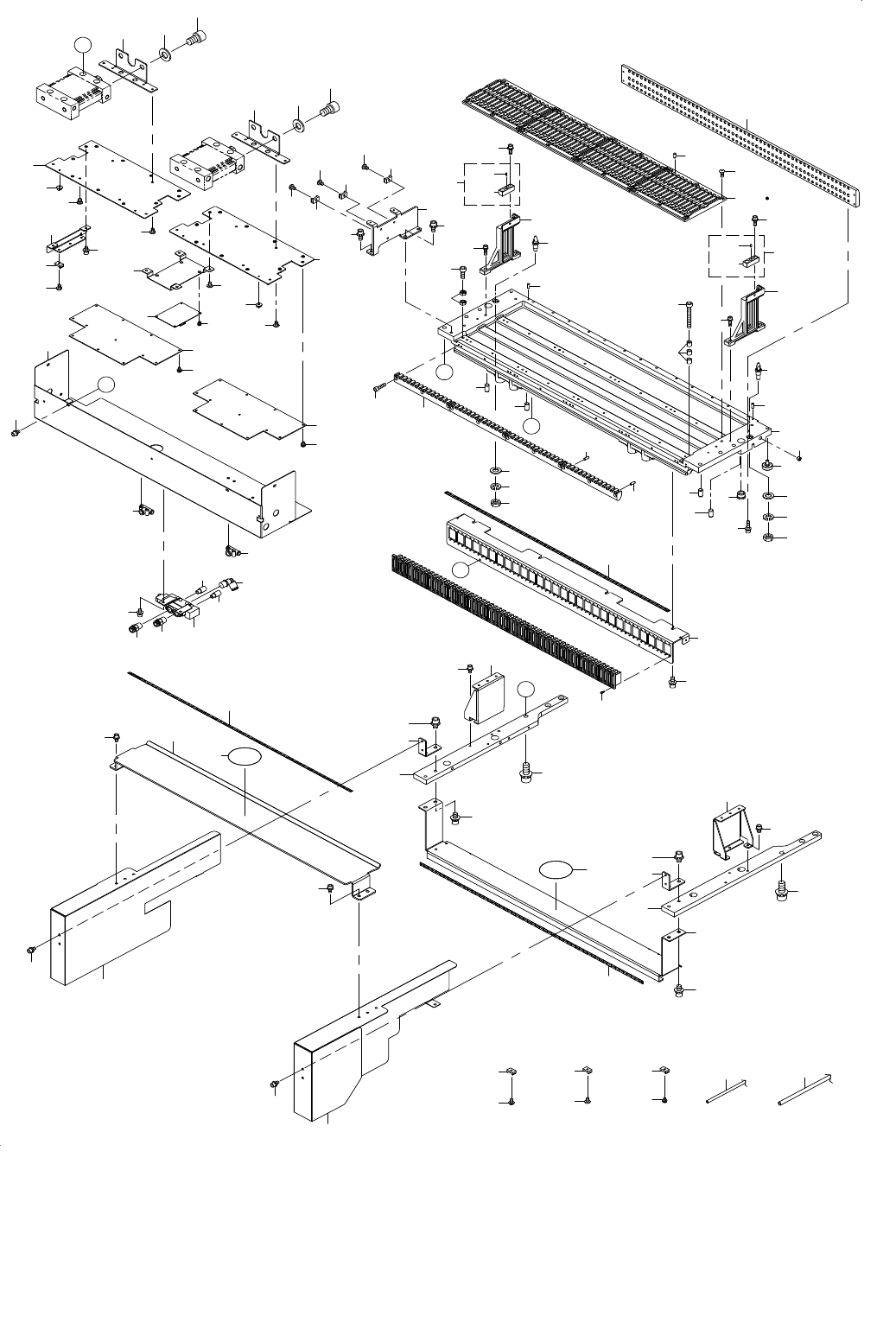
- 85 - 43. REPLACING OVERALL CHANGER TRUCK COMPONENTS(1) 一括交換台車関係(1) 26 29 27 28 A 16 15 17 18 14 30 20 19 21 42 43 2 3 3 3 3 4 5 6 8 8 9 10 13 12 85 23 23 11 22 24 25 25 26 28 27 29 30 32 33 34 35 36 37 40 41 38 39 44 4…

- 84 -
NOTE( 注記 ) #01....FOR EN EN 用
REF.NO NOTE PART NO D E S C R I P T I O N
品 名
Qty
1 401-87630 LIFTER_ASM
リフター組
1
2 401-87633 B_LIFTER_FRAME_L
Bリフターフレーム組L
(1)
3 401-87634 B_LIFTER_FRAME_R
Bリフターフレーム組R
(1)
4 SL-6082592-TN SCREW M8 L=25
座金付き六角穴ボルト M8 L=25
(8)
5 401-87635 AIR_CYLINDER
リフターシリンダー
(2)
6 PC-0152030-00 SPEED CONTROLLER
スピード コントローラ
(4)
7 SM-6122002-TN SCREW M12 L=20
六角穴ボルト M12 L=20
(4)
8 401-10295 LIF_CYL_SHAFT
LIF_CYL_シャフト
(2)
9 E2622-729-000 LIFTER THRUST COLLAR
リフタースラストカラー
(2)
10 SM-1062052-TP SCREW M6 L=20
六角穴ボルト M6 L=20
(2)
11 SB-8200003-00 BEARING
ころがり軸受
(4)
12 SM-6051002-TN SCREW
六角穴ボルト
(16)
13 401-87636 BANK_LIFTER_L
バンクリフターL
(1)
14 401-87637 BANK_LIFTER_R
バンクリフターR
(1)
15 401-47453 LIFTER_SHAFT
リフタシャフト
(3)
16 401-87641 LIFTER_SHAFT_AIR
リフターシャフトエア
(1)
17 PJ-3010851-01 HALF UNION
ハーフ ユニオン
(1)
18 SM-8060552-TP SCREW M6 L=5
止めねじ
(4)
19 400-93839 BANK_LOCATE_PIN_B2
バンクロケートピンB2
(1)
20 400-93840 BANK_LOCATE_PIN_C2
バンクロケートピンC2
(1)
21 WS-0820002-KN SPRING WASHER M8
ばね座金 M8
(2)
22 NM-6080003-SC NUT M8X1.25 TYPE3
六角ナット M8X1.25 3種
(2)
23 401-87642 RING_HOLDER
リングホルダ
(1)
24 RO-0982401-00 O-RING
Oリング
(1)
25 SM-1040801-SC SCREW M4X0.7 L=8
皿小ねじ M4X0.7 L=8
(4)
26 401-87648 BANK_BALVE_ASM
バンクバルブ組
1
27 401-87643 BANK_STOPPER_BR_L
バンクストッパBRL
(1)
28 401-87644 BANK_STOPPER_BR_R
バンクストッパBRR
(1)
29 PV-0105050-00 MECHANICAL VALVE
メカニカル バルブ
(2)
30 PJ-3040405-05 UNION
ユニオン
(4)
31 SL-6042592-TN SCREW M4 L=25
座金付き六角穴ボルト M4 L=25
(4)
32 400-49671 COVER CUSHION
カバークッション
(2)
33 SM-4030601-SC SCREW M3X0.5 L=6
なべ小ねじ M3X0.5 L=6
(2)
34 HX-0029400-00 FIXED BASE
固定ベース
(4)
35 SM-4040601-SC SCREW M4X0.7 L=6
なべ小ねじ M4X0.7 L=6
(4)
36 SM-1051052-TN PLATE SCREW M5 L=10
皿ねじ M5 L=10
(4)
37 401-83169 VALVE_SUPPORT_BLACKET
バルブサポートブラケット
(1)
38 401-83170 VM230-02-00A
アクチュエータバルブ
(1)
39 401-83171 VALVE_SPACER
バルブスペーサ
(2)
40 PJ-3010852-01 HALF UNION 8XR1/4
ハーフ ユニオン 8XR1/4
(1)
41 PJ-3040852-01 ELBOW UNION 8XPT1/4
エルボ ユニオン 8XPT1/4
(1)
42 SL-4043091-SC SCREW M4 L=30
座金付きなべ小ねじ M4 L=30
(2)
43 SM-1041201-SC SCREW M4 L=12
皿小ねじ M4X0.7 L=12
(2)
44 401-87646 GUIDE_RAIL_F_TROLLEY_ASM
ガイドレールFトロリー組
1
45 401-83193 ROLLER_GUIDE_F
ローラガイド_F
(1)
46 400-93853 ROLLER_GUIDE_SUPPORT_FR
ローラガイドサポートFR
(1)
47 SL-6040892-TN SCREW M4 L=8
座金付き六角穴ボルト M4 L=8
(2)
48 SM-1051052-TN PLATE SCREW M5 L=10
皿ねじ M5 L=10
(2)
49 SM-1051052-TN PLATE SCREW M5 L=10
皿ねじ M5 L=10
(4)
50 401-28068 SELECTOR_ASM
セレクタ組
1
51 PV-0151250-00 MANUAL VALVE
マニュアル バルブ
(1)
52 PV-0251030-00 CHECK VALVE
チェック バルブ
(1)
53 PJ-3040651-03 SWIVEL ELBOW
自在エルボ
(2)
54 PX-0551040-00 SILENCER
サイレンサ
(1)
55 PJ-3010651-03 HALF UNION 6XPT1/8
ハーフ ユニオン 6XPT1/8
(1)
56
#01
400-02287 BANK SW CABLE ASSY
バンクスイッチケーブル組
1
57
#01
SM-4042501-SC SCREW M4X0.7 L=25
なべ小ねじ M4X0.7 L=25
2
58
#01
WP-0430801-SC WASHER M4
平座金 M4
2
59
#01
HX-0033900-00 SPACER
スペーサ
2
60 401-87630 LIFTER_ASM
リフター組
1
61 401-87633 B_LIFTER_FRAME_L
Bリフターフレーム組L
(1)
62 401-87634 B_LIFTER_FRAME_R
Bリフターフレーム組R
(1)
63 SL-6082592-TN SCREW M8 L=25
座金付き六角穴ボルト M8 L=25
(4)
64 401-87635 AIR_CYLINDER
リフターシリンダー
(2)
65 PC-0152030-00 SPEED CONTROLLER
スピード コントローラ
(4)
66 SM-6122002-TN SCREW M12 L=20
六角穴ボルト M12 L=20
(4)
67 401-10295 LIF_CYL_SHAFT
LIF_CYL_シャフト
(2)
68 E2622-729-000 LIFTER THRUST COLLAR
リフタースラストカラー
(2)
69 SM-1062052-TP SCREW M6 L=20
六角穴ボルト M6 L=20
(2)
70 SB-8200003-00 BEARING
ころがり軸受
(4)
71 SM-6051002-TN SCREW
六角穴ボルト
(16)
72 401-87636 BANK_LIFTER_L
バンクリフターL
(1)
73 401-87637 BANK_LIFTER_R
バンクリフターR
(1)
74 401-47453 LIFTER_SHAFT
リフタシャフト
(3)
75 401-87641 LIFTER_SHAFT_AIR
リフターシャフトエア
(1)
76 PJ-3010851-01 HALF UNION
ハーフ ユニオン
(1)
77 SM-8060552-TP SCREW M6 L=5
止めねじ
(4)
78 400-93839 BANK_LOCATE_PIN_B2
バンクロケートピンB2
(1)
79 400-93840 BANK_LOCATE_PIN_C2
バンクロケートピンC2
(1)
80 WS-0820002-KN SPRING WASHER M8
ばね座金 M8
(2)
81 NM-6080003-SC NUT M8X1.25 TYPE3
六角ナット M8X1.25 3種
(2)
82 401-87642 RING_HOLDER
リングホルダ
(1)
83 RO-0982401-00 O-RING
Oリング
(1)
84 SM-1040801-SC SCREW M4X0.7 L=8
皿小ねじ M4X0.7 L=8
(4)
85 401-87648 BANK_BALVE_ASM
バンクバルブ組
1
86 401-87643 BANK_STOPPER_BR_L
バンクストッパBRL
(1)
87 401-87644 BANK_STOPPER_BR_R
バンクストッパBRR
(1)
88 PV-0105050-00 MECHANICAL VALVE
メカニカル バルブ
(2)
89 PJ-3040405-05 UNION
ユニオン
(4)
90 SL-6042592-TN SCREW M4 L=25
座金付き六角穴ボルト M4 L=25
(4)
91 400-49671 COVER CUSHION
カバークッション
(2)
92 SM-4030601-SC SCREW M3X0.5 L=6
なべ小ねじ M3X0.5 L=6
(2)
93 HX-0029400-00 FIXED BASE
固定ベース
(4)
94 SM-4040601-SC SCREW M4X0.7 L=6
なべ小ねじ M4X0.7 L=6
(4)
95 SM-1051052-TN PLATE SCREW M5 L=10
皿ねじ M5 L=10
(4)
96 401-83169 VALVE_SUPPORT_BLACKET
バルブサポートブラケット
(1)
97 401-83170 VM230-02-00A
アクチュエータバルブ
(1)
98 401-83171 VALVE_SPACER
バルブスペーサ
(2)
99 PJ-3010852-01 HALF UNION 8XR1/4
ハーフ ユニオン 8XR1/4
(1)
100 PJ-3040852-01 ELBOW UNION 8XPT1/4
エルボ ユニオン 8XPT1/4
(1)
101 SL-4043091-SC SCREW M4 L=30
座金付きなべ小ねじ M4 L=30
(2)
102 SM-1041201-SC SCREW M4 L=12
皿小ねじ M4X0.7 L=12
(2)
103 401-87647 GUIDE_RAIL_R_TROLLEY_ASM
ガイドレールRトロリー組
1
104 401-83205 ROLLER_GUIDE_R
ローラガイド_R
(1)
105 400-93853 ROLLER_GUIDE_SUPPORT_FR
ローラガイドサポートFR
(1)
106 SL-6040892-TN SCREW M4 L=8
座金付き六角穴ボルト M4 L=8
(2)
107 SM-1051052-TN PLATE SCREW M5 L=10
皿ねじ M5 L=10
(2)
108 SM-1051052-TN PLATE SCREW M5 L=10
皿ねじ M5 L=10
(4)
109 401-28068 SELECTOR_ASM
セレクタ組
1
110 PV-0151250-00 MANUAL VALVE
マニュアル バルブ
(1)
111 PV-0251030-00 CHECK VALVE
チェック バルブ
(1)
112 PJ-3040651-03 SWIVEL ELBOW
自在エルボ
(2)
113 PX-0551040-00 SILENCER
サイレンサ
(1)
114 PJ-3010651-03 HALF UNION 6XPT1/8
ハーフ ユニオン 6XPT1/8
(1)
115
#01
400-02287 BANK SW CABLE ASSY
バンクスイッチケーブル組
1
116
#01
SM-4042501-SC SCREW M4X0.7 L=25
なべ小ねじ M4X0.7 L=25
2
117
#01
WP-0430801-SC WASHER M4
平座金 M4
2
118
#01
HX-0033900-00 SPACER
スペーサ
2
119 BT-0600400-EC URETHANE TUBE BLUE 6X4
ポリウレタン チューブ 青 6X4
27
120 BT-0800501-EA URETHANE TUBE BLUE 8X5
ポリウレタン チューブ 青 8X5
12
121 PJ-3080600-07 UNION Y
ユニオン ワイ
3

- 85 -
43. REPLACING OVERALL CHANGER TRUCK COMPONENTS(1)
一括交換台車関係(1)
26
29
27
28
A
16
15
17
18
14
30
20
19
21
42
43
2
3
3
3
3
4
5
6
8
8
9
10
13
12 85
23
23
11
22
24
25
25
26
28
27
29
30
32
33
34
35
36
37
40
41
38
39
44
44
45
45
46
47
49
48
50
51
51
52
53
53
54
54
55
56
55
56
57
57
58
59
60
60
61
61
61
61
62
87
62
86
63
64
65
67
66
68
69
70
71
72
72
73
74
75
76
76
74
78
77
79
80
1
88
88
31
7
88
7
A
B
B
C
C
81
84
83
82
90
91
92
92
90
91
91
90
89

- 86 -
NOTE( 注記 ) #01....FOR FRONT OF THE MACHINE マシン前側用
#02....FOR REAR OF THE MACHINE マシン後側用
REF.NO NOTE PART NO D E S C R I P T I O N
品 名
Qty
1 401-69473 BANK ID PCB (RF) ASM
バンクID基板(RF)組
1
2 401-83119 E_BANK_BASE_R
イーバンクベースアール
1
3 PH-0600120-C0 PARALLEL PIN TYPE B 6X12
平行ピン B種 6X12
4
4 EZ-4453564-01 PLUG TAPER SCREW
テ−パ スクリュ− プラグ
1
5 E2602-721-000 BANK LOCATE BUSH A
バンクロケートブッシュ A
2
6 E2732-721-000 BANK GUIDE ROLLER
バンクガイドローラ
2
7 E5721-729-000 LABEL
荷重禁止シール
2
8 PH-0300080-U0 PARALLEL PIN TYPE B 3X8
平行ピン B種 3×8
8
9 401-67554 CLAMP_BLOCK
クランプブロック
4
10 SM-6041602-TN SCREW M4X16
六角穴ボルト M4X16
12
11 PH-0300080-U0 PARALLEL PIN TYPE B 3X8
平行ピン B種 3×8
10
12
#01
401-67530 GUIDE_RAIL
ガイドレール
4
13 SM-3041052-TN SCREW M4 L=10
丸ねじ M4 L=10
24
14 E2609-721-000 BANK LOCATE PIN A
バンクロケートピンA
1
15 WP-0841601-SC WASHER M8
平座金みがき丸 M8
1
16 WS-0820002-KN SPRING WASHER M8
ばね座金 M8
1
17 NM-6080003-SC NUT M8X1.25 TYPE3
六角ナット M8X1.25 3種
1
18 E2610-721-000 BANK LOCATE PIN B
バンクロケートピンB
1
19 WP-0841601-SC WASHER M8
平座金みがき丸 M8
1
20 WS-0820002-KN SPRING WASHER M8
ばね座金 M8
1
21 NM-6080003-SC NUT M8X1.25 TYPE3
六角ナット M8X1.25 3種
1
22 401-83200 POSITIONING_PLATE
ポジショニングプレート
1
23 PH-0300080-U0 PARALLEL PIN TYPE B 3X8
平行ピン B種 3×8
2
24 SL-6041692-TN SCREW M4 L=16
座金付き六角穴ボルト M4 L=16
13
25 401-83142 MARK_STAND
マークスタンド
2
26 E2505-729-0A0 MARK ASM.
マーク組
2
27 E2601-725-000 MARK
マーク
(1)
28 E2505-729-000 MARK BASE
マークベース
(1)
29 SL-6041292-TN SCREW M4 L=12
座金付き六角穴ボルト M4 L=12
4
30 SL-6052092-TN SCREW M5 L=20
座金付き六角穴ボルト M5 L=20
4
31 401-83176 CAN_CONNECTOR_BR
キャンコネクタブラケット
1
32 401-82051 CONNECTOR_BIND
コネクタバインド
112
33 SL-6051292-TN SCREW M5 L=12
座金付き六角穴ボルト M5 L=12
4
34 401-83148 BANK_PLATE_L
バンクプレート_L
1
35 SL-6082092-TN SCREW M8 L=20
座金付き六角穴ボルト M8 L=20
1
36 400-94723 TOROLLEY_COV_BR
トロリーカバーブラケット
1
37 SL-6061092-TN SCREW M6 L=10
座金付き六角穴ボルト M6 L=10
2
38 401-83150 BANK_PLATE_R
バンクプレート_R
1
39 SL-6082092-TN SCREW M8 L=20
座金付き六角穴ボルト M8 L=20
1
40 400-94723 TOROLLEY_COV_BR
トロリーカバーブラケット
1
41 SL-6061092-TN SCREW M6 L=10
座金付き六角穴ボルト M6 L=10
2
42 HX-0029400-00 FIXED BASE
固定ベース
2
43 SM-4040601-SC SCREW M4X0.7 L=6
なべ小ねじ M4X0.7 L=6
2
44 401-83151 T_SAFETY_COVER_BR
Tセフティーカバーブラケット
2
45 SL-6040892-TN SCREW M4 L=8
座金付き六角穴ボルト M4 L=8
6
46 401-83194 TROLLEY_SAFETY_COVER_L
トロリーセーフティカバーL
1
47 SL-6040892-TN SCREW M4 L=8
座金付き六角穴ボルト M4 L=8
4
48 401-88175 TROLLEY_SAFETY_COVER_R
トロリーセーフティカバーR
1
49 SL-6040892-TN SCREW M4 L=8
座金付き六角穴ボルト M4 L=8
4
50 401-83154 REGULATION_BAR_RS
レギュレーションバー_RS
1
51 SL-6040892-TN SCREW M4 L=8
座金付き六角穴ボルト M4 L=8
4
52 401-88174 REGULATION_BAR_B
レギュレーションバー_B
1
53 SL-6061292-TN SCREW M6 L=12
座金付き六角穴ボルト M6 L=12
4
54 401-83162 BANK_PCB_SUPPORT_BRACKET
バンク基板サポートブラケット
2
55 SM-6101602-TP SCREW M10 L=16
六角穴ボルト M10 L=16
4
56 WP-1052001-SC WASHER 10
平座金みがき丸 M10
4
57 401-83163 BANK_PCB_BASE
バンク基板ベース
2
58 HX-0029400-00 FIXED BASE
固定ベース
8
59 SM-4040601-SC SCREW M4X0.7 L=6
なべ小ねじ M4X0.7 L=6
8
60 HX-0070600-00 MOUNT BASE
マウントベース
2
61 SM-0040601-SC SCREW M4X0.7 L=6
トラス小ねじ M4X0.7 L=6
12
62 SL-4030681-SC SCREW M3 L=6
座金付きなべ小ねじ M3 L=6
18
63 401-83164 FD_PCB_BASE
FD_基板ベース
1
64 SL-4850591-SC SCREW M2.5 L=5
座金付きなべ小ねじ M2.5 L=5
4
65 401-83165 CABLE_HOLDER
ケーブルホルダ
1
66 HX-0029400-00 FIXED BASE
固定ベース
3
67 SM-4040601-SC SCREW M4X0.7 L=6
なべ小ねじ M4X0.7 L=6
3
68 SL-6040892-TN SCREW M4 L=8
座金付き六角穴ボルト M4 L=8
2
69 401-83166 BANK_PCB_COVER
バンク基板カバー
1
70 SL-6040892-TN SCREW M4 L=8
座金付き六角穴ボルト M4 L=8
4
71 400-93977 5PORT_SOLENOID_VALVE
5ポート電磁弁
1
72 PJ-3010852-01 HALF UNION 8XR1/4
ハーフ ユニオン 8XR1/4
2
73 PJ-3040852-01 ELBOW UNION 8XPT1/4
エルボ ユニオン 8XPT1/4
1
74 401-83168 KQ2T06-08A
ディファレントダイアメータT
2
75 SL-6040892-TN SCREW M4 L=8
座金付き六角穴ボルト M4 L=8
2
76 PX-0551040-00 SILENCER
サイレンサ
2
77 HX-0029400-00 FIXED BASE
固定ベース
11
78 SL-4030681-SC SCREW M3 L=6
座金付きなべ小ねじ M3 L=6
11
79 BT-0600400-EC URETHANE TUBE BLUE 6X4
ポリウレタン チューブ 青 6X4
2
80 BT-0800501-EA URETHANE TUBE BLUE 8X5
ポリウレタン チューブ 青 8X5
2
81 SM-6051402-TN SCREW M5 L=14
六角穴ボルト M5 L=14
1
82 SM-6054002-TN SCREW M5X0.8 L=40
六角穴ボルト M5X0.8 L=40
1
83 NM-6050001-SC NUT M5X0.8 TYPE1
六角ナット M5X0.8 1種
3
84 401-10316 SPACER
スペーサ
3
85
#02
401-83208 GUIDE_RAIL_R
ガイドレールR
4
86 401-83783 ELEC BANK L-SIDE PCB ASM
ELECバンク L−SIDE基板組
1
87 401-83784 ELEC BANK R-SIDE PCB ASM
ELECバンク R−SIDE基板組
1
88 401-84971 POSITION_LAVEL_56
ポジションラベル56
3
89 401-83203 BANK_CONNECTOR_A_BR
バンクコネクタ_Aブラケット
1
90 SM-4040601-SC SCREW M4X0.7 L=6
なべ小ねじ M4X0.7 L=6
3
91 HX-0029400-00 FIXED BASE
固定ベース
3
92 SL-6051292-TN BOLT
座金付き六角穴ボルト
3