Technical_reference - 第9页
Technical Service Manual 9 Revision Dat e: August 2004 A - CONT ROL SYST EM OPERATION OVEN CONTRO L SYSTEM OVERVIEW For disc ussion here, the O ven Control System will be divided into five parts : • Power Distribution Ov…

Technical Service Manual 8 Revision Date: August 2004
MEASUREMENT CONVERSIONS
Temperature
Length
Degrees Celsius (°C) = 5 / 9 x (°F - 32) Centimeters (cm) = 2.54 x inches
Degrees Fahrenheit (°F) = (9 / 5 x °C) + 32 Feet (') = 3.281 x meters
Inches (") = 0.03937 x millimeters
Inches (") = 0.3937 x centimeters
Meters (m) = 0.3048 x feet
Millimeters (mm) = 25.4 x inches
Area
Volume
Centimeters
2
= 6.452 x inches
2
Centimeters
3
= 1000000 x meters
3
Inches
2
= 0.155 x centimeters
2
Centimeters
3
= 16.387 x inches
3
Feet
2
= 10.76 x meters
2
feet
3
= 0.161 x Imperial gallons
Meters
2
= 0.0929 x feet
2
feet
3
= 35.31 x meters
3
feet
3
= 0.134 x US gallons
inches
3
= 0.061 x centimeters
3
inches
3
= 0.061 x milliliters (ml)
inches
3
= 1728 x feet
3
Imperial gallons = 0.833 x US gallons
Imperial gallons (gal) = 0.22 x liters (l)
Liters (l) = 1000 x meters
3
Liters (l) = 3.7854 x US gallons (gal)
Liters (l) = 4.55 x Imperial gallons (gal)
Liters (l) = 0.001 x milliliters (ml)
meters
3
= 0.00455 x Imperial gallons
meters
3
= 0.02832 x feet
3
meters
3
= 0.00379 x US gallons
US gallons (gal) = 0.264 x liters (l)
US gallons = 1.2012 x Imperial gallons
Pressure
Volumetric flow rates
Bar = 1.01325 x atmosphere (ATM) Imperial gallons / minute = 0.1035 x feet
3
/ hour
Kilograms / meter
2
(kg/m
2
) = 10332.3 x atmosphere
(ATM)
Imperial gallons / minute = 220.06 x meters
3
/ Min
Kilograms / centimeter
2
= 0.0703 x pounds / inch
2
(psi)
liters
3
/ second = 0.06308 x US gallons / minute
KiloPascals (KPa) = 101325 x atmosphere (ATM) meters
3
/ minute = 0.00006 x centimeters
3
/ second
Kilograms / meter
2
(kg/m
2
) = 703.07 x pounds / inch
2
(psi)
meters
3
/ hour = 0.02832 x feet
3
/ hour
millimeters mercury (mm Hg) = 1 x Torr = 760 x
atmosphere (ATM)
meters
3
/ hour = 0.22713 x US gallons / minute
Pounds / inch
2
(psi) = 14.696 x atmosphere (ATM) US gallons / minute = 264.18 x meters
3
/ minute
Pounds per square inch (psi) = 14.504 x Bar US gallons / minute = 0.12468 x feet
3
/ hour

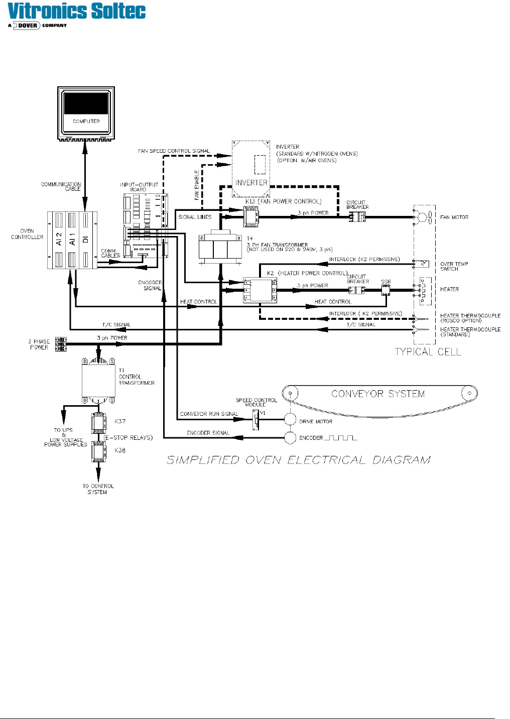
Technical Service Manual 9 Revision Date: August 2004
A - CONTROL SYSTEM OPERATION
OVEN CONTROL SYSTEM OVERVIEW
For discussion here, the Oven Control System will be divided into five parts:
• Power Distribution Overview
• Computer and Controller Overview
• Conveyor Control Overview
• Fan Control Overview

Technical Service Manual 10 Revision Date: August 2004
HEAT CONTROL OVERVIEW
POWER DISTRIBUTION OVERVIEW
3-phase power supplied to the High Voltage terminals on the electrical panel is distributed to:
1) The primary terminals on the Control Transformer (T1), the secondary side of T1 is connected to the line side
of the E-stop relay (K37). T1 provides 120VAC for ALL control functions throughout the oven.
2) The line terminals of the Heater Contactor (K2)
3) To either the line terminals of the Fan Contactor (K3), or
the primary side of the INVERTER (if the oven has
the Nitrogen Option) or three phase Fan transformer if the three phase supply voltage is higher than 240
volts.
CAUTION:
WHEN THE OVEN IS “OFF”, MANY PARTS OF THE OVEN
MAY BE ELECTRICALLY POWERED AND DANGEROUS
.