RL132规格说明书 - 第56页
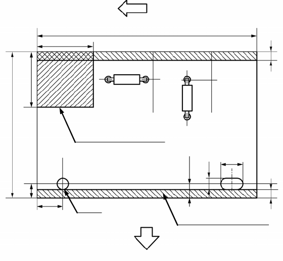
RL132 2012.0903 - 50 - 6. 印刷基板设计基准 6.1 印刷基板规格概要 ( 单位 : mm) 印刷基板的流向 50 ~ 50 8 30 缺口的最大尺寸 不允许元件存在的范围 机器前侧 5 ±0.1 ※ 5 ± 0.1 ※ 50 ~ 38 1 Min. 5 Min. 5 5 3 3 30 5 ±0.1 ※ φ 4 +0.1 0 φ 4 +0.1 0 注 1. ※ 印的 5 mm 为标准尺寸。其它尺寸为特殊规格 。 …

RL132 2012.0903
- 49 -
29) 长间距陶瓷电容器 (成型引脚 B)
尺寸
(mm)
内 容
记号
数值
容许范围
备 注
元件直径
Ø D 9.0
最大
元件厚度
T 4.5
最大
引脚线直径
Ø d 0.8
最大
软铜线是
Ø 0.8 mm (
硬度在
H
B
50
以内
)
硬铜线是
Ø 0.6 mm (
硬度在
H
B
80
以内
)
元件间距
P 15.0 ±1.0
孔间距
P
0
15.0 ±0.3
累积间距误差
= 1.0
mm /20
间距
从孔中心到引脚为止
P
1
5.0 ±0.7
引脚间距离
F 10.0
+0.5
-0.2
引脚尖端在容许范围内
元件位置调整
∆h 2.0
最大 从中心开始
±1 mm
编带宽度
W 18
+1.0
-0.5
从编带中心到元件底部的高度
H 18
+2.0
-0
元件高度
H
1
30 H
1
≤ 41.0
元件高度
(
参考
)
H
2
12
最大
引脚线的突出
l 0
最大 编带轨道的摩擦可能造成损伤
切断引脚线的突出部分
L 11.0
最大
孔直径
Ø D
0
4.0 ±0.2
原纸厚度
t 0.3
+0.2
-0
原纸厚度
: 0.3 mm
~
0.5 mm
编带的厚度
(
包括最大引脚直径
0.8 mm)
t
1
1.5
最大
有关标准规格以外的编带元件
1)
如果不是标准规格,请勿使用以下状态的编带。
2)
如有疑问点,请咨询。

RL132 2012.0903
- 50 -
6.
印刷基板设计基准
6.1
印刷基板规格概要
(
单位
: mm)
印刷基板的流向
50 ~ 508
30
缺口的最大尺寸
不允许元件存在的范围
机器前侧
5 ±0.1
※
5 ± 0.1
※
50 ~ 381
Min. 5
Min. 5
5
3 3
30
5 ±0.1※
φ4
+0.1
0
φ4
+0.1
0
注
1.
※印的
5 mm
为标准尺寸。其它尺寸为特殊规格。
2.
其它基板有缺口时,需要具体商讨。

RL132 2012.0903
- 51 -
6.2
印刷基板精度
项 目
内 容
基板的厚度
1.6 mm ±0.15 mm
选购件
0.6 mm
~
2.0 mm (
请参照「
9.
选购件
B-2
」。
)
上述厚度以外,请与本公司联络。
基板翘曲容许精度
插入方向
Max. 1.2 mm
Max. 0.5 mm
插入孔径
孔的种类以及直径
冲孔
钻孔
d
d
※引脚线直径是 ø0.8 mm 时,孔直径是 ø1.1 mm。
※
若使用指定孔以外的孔径,会影响插入率和元件的基板保持状态。
插入孔精度
± 0.1 mm
± 0.1 mm
± 0.1 mm
± 0.1 mm
插入孔
基准孔
印刷基板间的偏差在
±0.1 mm
以内
6.3
基板死区
Max. 23 mm
Max. 7 mm
ø1.0 mm
+0.1
0
ø0.9 mm
+0.1
0
+0.1
0