RL132规格说明书 - 第84页
RL132 2012.0903 - 78 - 9. 选购件 选购件的分类如下所示。 对应分类 内 容 Factory 在出厂之前,必须在机器制造阶段进 行对应。 On-site 能够在主体交货后追加。但是,必须 在现场施工。 Customer 能够在主体交货后追加。不需要在现 场施工。 ※ ・ 根据客户的机器规格 制造 No. 等,有可能会出现以上内容以外的 情况。详细请在购买前与本公司联络。 请客户根据用途,选择所需的选购件 。 No…

RL132 2012.0903
- 77 -
8.
标准主体构成
■ 主体
■ 附属品
项 目
数量
轴固定零件
(
机器传送用
) 1
套
调整螺栓用扳手
2
个
SS
标签
(
包括销
) 1
套
元件下压
NM-EJR5A:5
个、
NM-EJR6A:10
个
垫板
NM-EJR5A:10
个、
NM-EJR6A:20
个
治具基板
1
个
编带检查治具
(12.7 mm
用
, 15 mm
用
) 1
套
维护开关用键
1
套
使用说明书
・ 操作手册
・ 程序手册
・ 维护手册
・ 参考手册
零件一览表
控制配线图
1
套
系统磁盘
(SD
卡
)
・ 系统用
・ 机器参数保存用
・ 密码变更用
1
套
图是
NM-EJR6A
。

RL132 2012.0903
- 78 -
9.
选购件
选购件的分类如下所示。
对应分类
内 容
Factory
在出厂之前,必须在机器制造阶段进行对应。
On-site
能够在主体交货后追加。但是,必须在现场施工。
Customer
能够在主体交货后追加。不需要在现场施工。
※
・
根据客户的机器规格 制造
No.
等,有可能会出现以上内容以外的情况。详细请在购买前与本公司联络。
请客户根据用途,选择所需的选购件。
No.
目的
/
功能
选购件名称
对应分类
1
扩大传送基板尺寸。
※
1
(530 mm × 381 mm
以内
)
扩大传送基板的尺寸
On-site
2
扩大插入基板的尺寸。
※
1
(650 mm × 381 mm
以内
)
扩大插入基板的尺寸
On-site
3
将
2
片基板传入
XY
工作台,在
1
个工程生产
2
片基板的
功能。
传送
2
片基板
On-site
A
4
为了将插入后的基板从出料部推入托盘箱支架的功能。
P-PUSH
On-site
1
自动变更
XY
工作台、进料
・
部 出料部的轨道宽度。
自动调整宽度
Factory
2
对应基板厚度
0.6 mm
~
2.0 mm
。
对应基板厚度
0.6 mm
~
2.0 mm
Customer
B
3
对应基准销规格。
基准销规格
Customer
插入间距对应:追加
2
间距用成套工
具
(3
间距规格机种用
)
Customer
插入间距对应:追加
2
间距用成套工
具
(4
间距规格机种用
)
Customer
1 将插入间距切换使用。
※
2
插入间距对应:追加
3
间距用成套工
具
(4
间距规格机种用
)
Customer
2
对应卷盘元件。
对应卷盘元件
Customer
3
这是改善电子元件的主体倾倒
(
引脚线的弯曲
)
的功能。 电子元件矫正成套工具
On-site
4
与上位通信。
(
控制指令
)
上位对应
On-site
C
5
美国的表面实装机制造协会所制定的界面。
SMEMA
On-site
※1 此规格和自动宽度调整
(
基准销方向:
X
方向
)
的组合,请与本公司联络。
※2 需要本成套工具时,请另行商洽。

RL132 2012.0903
- 79 -
A-1
扩大传送基板尺寸。
(530 mm × 381 mm
以内
)
On-site
扩大传送基板的尺寸
・ 最大尺寸
: 508 mm
×
381 mm
→
530 mm
×
381 mm
・ 和自动宽度调整
(
基准销:
X
方向
)
的组合,请与本公司联络。
A-2
扩大插入基板的尺寸。
(650 mm × 381 mm
以内
)
On-site
扩大插入基板的尺寸
・ 对象基板尺寸:
50 mm x 50 mm
~
508 mm x 381 mm(
标准
)
→
300 mm x 50 mm
~
650 mm x 381 mm
・ 但是,通过交换基板传送接合器、基准销杆,可以对应
50 mm x 50 mm
~的基板。
・ 能够进行全范围,插入孔识别和插件。
・ 另外,插入斜线范围时,基板的滑动动作大约需要
2
秒。
・不可同时选择「自动宽度调整(基准销: X 方向)」、「外形定位」、「左→右流向」。
A-3
将
2
片基板传入
XY
工作台,在
1
个工程生产
2
片基板的功能。
On-site
传送
2
片基板
・ 最大尺寸
: Min. 50 mm × 50 mm
、
Max. 250 mm × 250 mm (
基板纵横比
:
纵
≦
横。
)
・ 与自动宽度调整
(
基准销
: X
方向
)
单元的组合请另外与本公司联络。
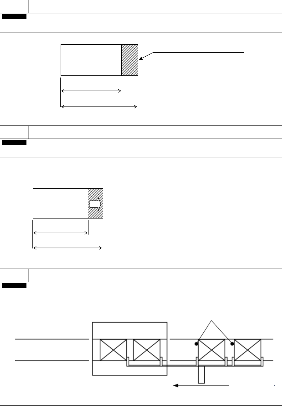
508 mm
530 mm
但是,斜线部分不可插入。
出料部 XY 工作台
进料部
基板挡块
基板传送单元
508 mm
650 mm