RL132规格说明书 - 第94页
RL132 2012.0903 - 88 - ■ NM-EJR6A ( 单位 : mm) ※传送高度在 900 mm ~ 920 mm 范围内调整。 电源 电源

RL132 2012.0903
- 87 -
13.
尺寸图
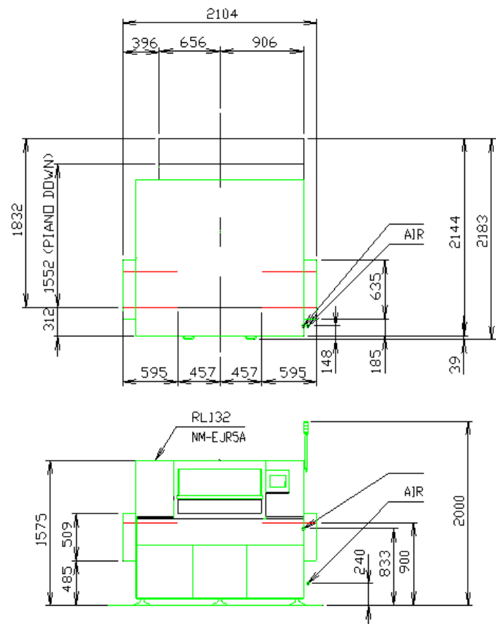
13.1
・
平面尺寸以及空压 电源输入位置
■
NM-EJR5A
(
单位
: mm)
※传送高度在
900 mm
~
920 mm
范围内调整。
电源
电源

RL132 2012.0903
- 88 -
■
NM-EJR6A
(
单位
: mm)
※传送高度在
900 mm
~
920 mm
范围内调整。
电源
电源

RL132 2012.0903
- 89 -
13.2
调整螺栓图
(
单位
: mm)
(NM-EJR5A)
(NM-EJR6A)
电源
电源