NPM-D3_z_160518 - 第96页
NPM-D3 2016.0518 - 90 - 7. 印刷基板设计基准 7.1 印刷基板规格概要 ※ 1 ( ) 内的数値 : 单轨模式时 ※ 2 ( ) 内的数値 : 短型规格传送带时 项 目 长型规格传送带 短型规格传送带 双轨模式 单轨模式 双轨模式 单轨模式 基板尺寸 50 × 50 mm ~ 510 × 300 mm 50 × 50 mm ~ 510 × 590 mm 50 × 50 mm ~ 460 × 300 mm 50 …

NPM-D3 2016.0518
- 89 -
6. 其他标准规格
6.1 程序功能
数据编制都是在数据编制系统 NPM-DGS 进行。在 NPM-DGS 作成的生产数据,通过 LNB (FA 电脑)下载于设备。
但是,部分数据修正也可在机器主体上进行。
在设备主体修正的数据以及校正内容被保存,可以再利用。
※ NPM-DGS 用的硬件,请客户准备。(NPM-DGS 是其他产品。)
有关 NPM-DGS 的详细情况,请参照别册的「NPM-DGS 规格说明书」。
6.2 信号塔
信号灯的颜色和亮灯标准
信号灯
颜色
分 类 亮灯标准
红色 紧急停止错误
・ 马达等的轴异常
・ 空气压力下降
・ 基板支撑部异常
・ 贴装头故障
・ 编带故障 等
黄色 中途停止错误
・ 吸着错误
・ 贴装错误
・ 基板传送错误
・ 元件用完
・ 吸嘴更换错误 等
绿色 运转中
自动运转等动力为 ON 时
(但是,红色和黄色闪烁时熄灯)
蓝色或者
红色
连接的设备中,成为瓶颈的设备(循环时间最长的设备)蓝色灯亮。
另外,按紧急停止开关,红色灯亮。
※ 亮灯规格,可以变更设定。
数据编制系统 NPM-DGS
设备设定 PCB 数据
元件数据
最佳化
生产数据
标准
:
横置
距离地面
1 514 mm
红
黄
绿
(
蓝色或者红色
)
红
黄
绿
距离地面
1 629 mm
也可以纵置。
高度从地面起是
1 629 mm
。
(
蓝色或者红色
)
网板 Gerber 数据
(锡膏检查时)

NPM-D3 2016.0518
- 90 -
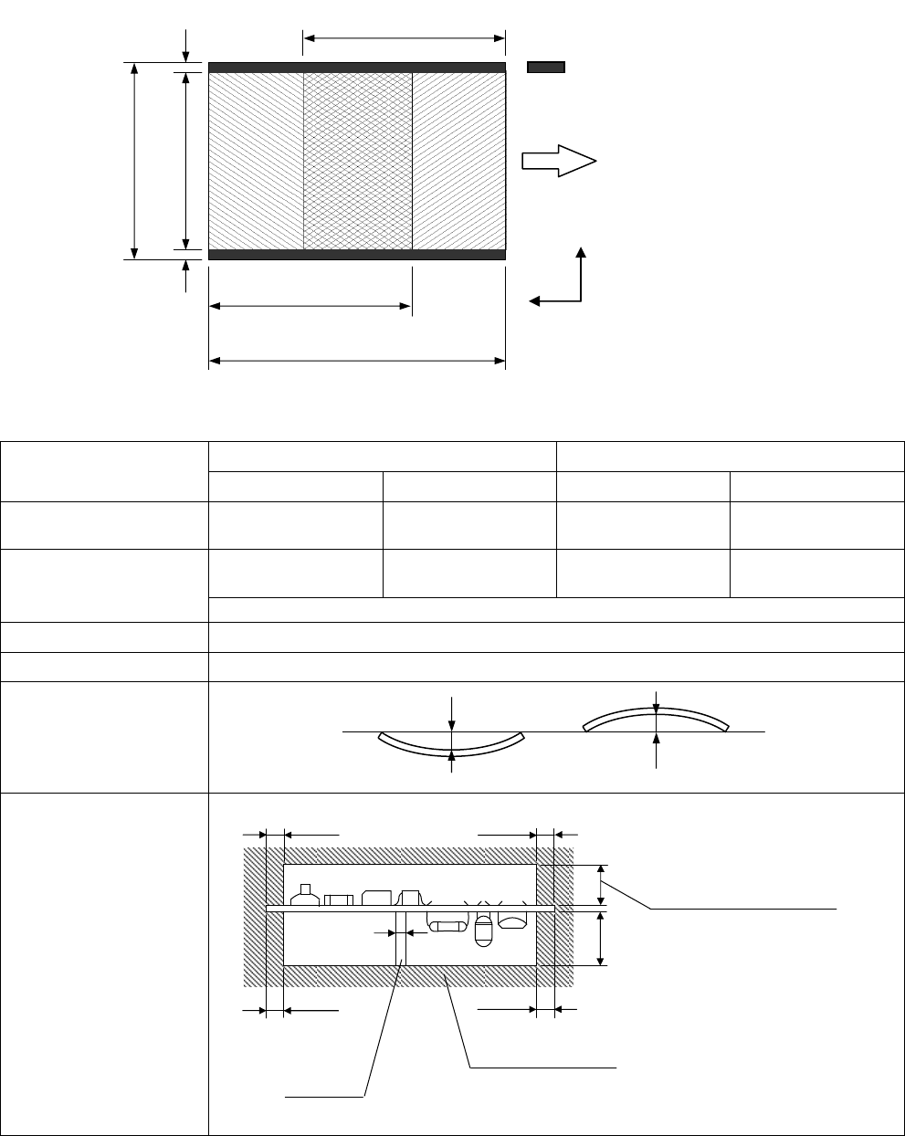
7. 印刷基板设计基准
7.1 印刷基板规格概要
※1 ( ) 内的数値: 单轨模式时
※
2 ( )
内的数値
:
短型规格传送带时
项 目
长型规格传送带 短型规格传送带
双轨模式 单轨模式 双轨模式 单轨模式
基板尺寸
50 × 50 mm ~
510 × 300 mm
50 × 50 mm ~
510 × 590 mm
50 × 50 mm ~
460 × 300 mm
50 × 50 mm ~
460 × 590 mm
贴装/检查可能范围
50 × 44 mm ~
510 × 294 mm
50 × 44 mm ~
510 × 584 mm
50 × 44 mm ~
460 × 294 mm
50 × 44 mm ~
460 × 584 mm
※ 有关点胶范围的详细情况请参照「4.4 有关点胶范围的限制」。
基板厚度
0.3 mm ~ 8.0 mm
基板重量 1.5 kg以下 (实装后的状态,包括载体重量。)
※3
基板弯曲容许
基板断面
贴装前基板状态
※3 基板重量(包括载体重量)超过 1.5 kg 的情况时,请另行联络。
※4 使用支撑销自动更换功能的情况时,支撑销形状、销的配置条件等有异。
详细请参阅「9. 选购件: 支撑销的自动更换」。
※ 有关陶瓷基板的对应请另行联络。
Max. 0.5 mm
Max. 0.5 mm
禁止有元件的范围
16
吸嘴贴装头
: 6.5 mm
12
吸嘴贴装头
: 6.5 mm
8
吸嘴贴装头
: 12 mm
2
吸嘴贴装头
: 28 mm
点胶头
: 28 mm
支撑销
※
4
(
设置在与反面元件距离隔开
2 mm
以上的位置。
)
28 mm
3 mm
3 mm
3 mm
φ
3
3 mm
Y
X
固定侧
禁止有元件
(
或者锡膏等
)
的范围
3 mm
3 mm
分割实装时的贴装范围
350 mm (260 mm)
※
2
44 mm ~ 294 mm
(44 mm ~ 584 mm)
※1
50 mm ~ 300 mm
(50 mm ~ 590 mm)
※1
分割实装时的贴装范围
350 mm (260 mm)
※
2
50 mm ~ 510 mm
(50 mm ~ 460 mm)
※2
流向

NPM-D3 2016.0518
- 91 -
项
目
规
格
基板缺口条件
基板缺口尺寸必需满足以下条件。
■
长型规格传送带时
L L1
50 mm
≦
L
≦
350 mm
不超过
L/4
350 mm
<
L
≦
510 mm L/4
或者
100 mm
的较小的一个
W W1
50 mm
≦
W
≦
300 mm W/3
或者
30 mm
的较小的一个
300 mm
<
W
≦
590 mm
请另行商洽。
■
短型规格传送带时
L L1
50 mm
≦
L
≦
260 mm
不超过
L/4
260 mm
<
L
≦
460 mm L/4
或者
70 mm
的较小的一个
W W1
50 mm
≦
W
≦
300 mm W/3
或者
30 mm
的较小的一个
300 mm
<
W
≦
590 mm
请另行商洽。
※
以上是在基板厚度为
1.6 mm
以上时的情况。
基板厚度
1.6 mm
未满时,请另行商洽。
基板端面的元件伸出条
件
请另行商洽。
L1
L
W1
W1
W
只限任意一处
流向
A
A