RX-6_RX-6B_RX-6R-Rev08 - 第123页
- - REF.NO NOTE PA RT NO D E S C R I P T I O N Qty 1 4 01-28073 T ROLL EY_FRAME _ASM 1 2 4 01-27982 C ASTER_ F (2) 3 W P-0621036 -SP WASH ER (4) 4 SM- 306105 2-TN S CREW M6 L=1 0 ( 4) 5 SL -6061092-TN SCRE W M6 L=10 (4…

- -
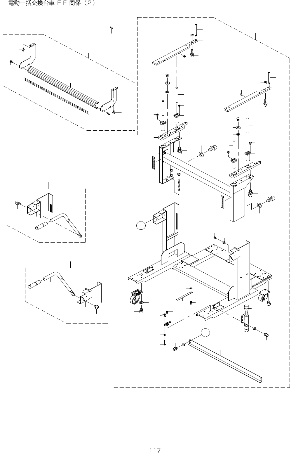
59.E REPLACING OVERALL CHANGER TRUCK EF COMPONENTS(2)
4 4
6
1 3
7
9
8
1 2
1 0
4 5
1 5
1 5
1 0
1 2
1 8
1 6
2 6
2 1
2 6
2 6
1 9
2 0
2 4
2 4
1 9
2 5
8
1 1
4
3
1 1
4
3
2 1
2 2
2 2
2 2
2 1
2 2
2 9
2 8
2 7
4 3
4 5
3 5
3 6
3 2
3 1
5 4
1
1 4
2 0
2 1
2 5
4 6
4 4
4 6
2
1 8
2 3
3 0
3 3
3 4
3 7
3 8
3 9
4 0
4 1
5
5 0
5 2
5 3
4 9
5 1
4 8
5 3
4 7
4 8
A
A
1 7
4 3
3 2
4 2

- -
REF.NO NOTE PART NO D E S C R I P T I O N Qty
1 401-28073 TROLLEY_FRAME_ASM 1
2 401-27982 CASTER_F (2)
3 WP-0621036-SP WASHER (4)
4 SM-3061052-TN SCREW M6 L=10 (4)
5 SL-6061092-TN SCREW M6 L=10 (4)
6 400-94837 TROLLEY_UPPER (1)
7 401-28074 TROLLEY_BOTTBOM (1)
8 400-01730 SCALE MARKS SEAL (2)
9 SM-6125052-TR SCREW M12 L=150 (2)
10 WP-1052001-SC WASHER 10 (4)
11 400-89239 E_TROLLEY_PLATE (4)
12 SL-6102042-TN SCREW M10 L=20 (4)
13 401-27988 TROLLEY_STOPPER_BLOCK_R (1)
14 401-27987 TROLLEY_STOPPER_BLOCK_L (1)
15 SL-6082092-TN SCREW M8 L=20 (6)
16 401-27990 BANK_PLATE_R (1)
17 401-27989 BANK_PLATE_L (1)
18 WP-0612516-SD WASHER 6.1X15.2X2.5 (8)
19 SM-8060552-TP SCREW M6 L=5 (4)
20 E2703-721-000 TROLLEY SHAFT (2)
21 SB-8160007-00 LINEAR BEARING (4)
22 SM-6040602-TN SCREW (16)
23 WP-0641601-SC WASHER M6 (8)
24 400-01748 TROLLEY SUB GUIDE (2)
25 SL-6062592-TN SCREW M6 L=25 (2)
26 401-28047 LINEAR_SHAFT (4)
27 400-23476 FG GUM SHEET (1)
28 WP-0430801-SC WASHER M4 (1)
29 SL-6040892-TN SCREW M4 L=8 (1)
30 E1214-726-000 ST CLAMP (2)
31 401-28100 CASTER_R (2)
32 SM-6060802-TN SCREW (16)
33 SM-6040502-TN SCREW (8)
34 400-49671 COVER CUSHION (2)
35 E2711-721-000 TROLLEY STOPPER (2)
36 SL-6061092-TN SCREW M6 L=10 (8)
37 SM-4032001-SC SCREW M3X0.5 L=20 (2)
38 NM-6030001-SC NUT M3X0.5 TYPE1 (4)
39 HX-0029400-00 FIXED BASE (1)
40 SM-4040601-SC SCREW M4X0.7 L=6 (1)
41 401-28084 TROLLEY_JOINT_BAR (1)
42 WP-0641601-SC WASHER M6 (4)
43 401-28075 TROLLEY_HANDLE_ASM 2
44 E2641-729-000 HANDLE CLIP (1)
45 SM-3081252-TN SCREW M8 L=12 (3)
46 401-27991 TROLLEY_HANDLE (1)
47 401-28077 TAPE_GUIDE_ASM(TROLLEY) 1
48 SM-3041052-TN SCREW M4 L=10 (4)
49 400-94372 TAPE_GUIDE_BR_C (1)
50 400-93594 ETF_POSITION_LABEL(40) (1)
51 401-10310 TAPE_GUIDE_BR_L (1)
52 401-10311 TAPE_GUIDE_BR_R (1)
53 SL-6061092-TN SCREW M6 L=10 (4)
54 E4981-700-000 LABEL 1

- -
60.E REPLACING OVERALL CHANGER TRUCK EF COMPONENTS(3)
9
9
1 9
2 1
1 7
1 5
1 7
1 5
8
3 1
1 2
1 4
2 3
3 2
2 0
2 0
2 0
1 6
1 6
1 9
1 8
1 8
1 8
1 8
1 8
1 7
1 5
1 7
1 5
1 7
1 7
1 7
1 7
1 8
1 3
1 8
1 8
1 9
2 0
2 0
2 2
1 3
3 1
2 7
2 7
1 0
1 1
2 5
2 6
2 4
2 4
2 8
2 9
3 0
2 7
2 7
1 5
1 5
1 5
1 5
4 0
4 3
4 3
4 4
4 4
4 1
4 2
3 9
4
3
5
2
7
1
6
7
2 8
2 9
2
5 2
4 5
2 0
3 3
3 4
3 3
3 4
3 5
3 6
3 5
3 6
4 8
4 9
4 9
4 6
4 7
6 1
5 4
5 5
5 6
5 7
5 8
5 9
6 0
5 3
5 0
5 1
3 8
A
A
6 2
2 7
3 7
3 2
3 7