RX-6_RX-6B_RX-6R-Rev08 - 第149页
- - RE F.N O NO T E P A RT NO D E S C R I P T I O N Qt y 1 400 -8 4841 E F AR RA NG E C BL 1 BRA C KET A SM 1 2 #01 400 -8 48 33 E F AR RA NG E CBL 1 AS M 1 3 H A-00 52 400 -00 CI RCU IT P ROTE C TO R 1 4 401 -2 9279 E…

- -
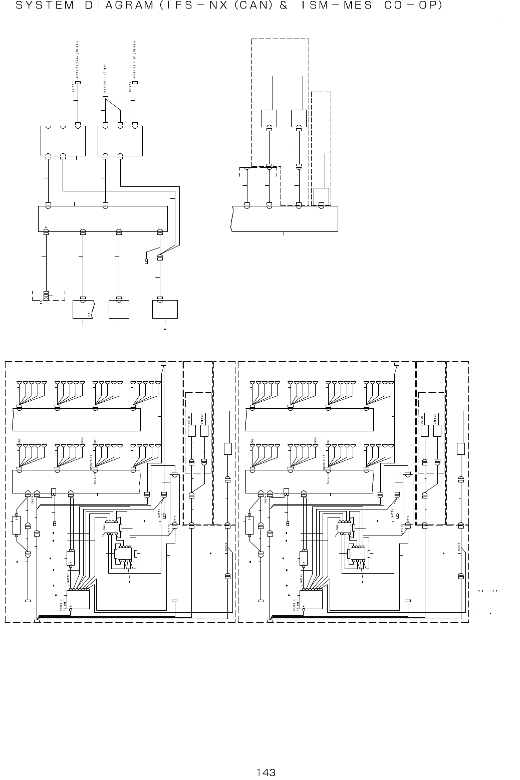
72.SYSTEM DIAGRAM(IFS-NX(CAN) & ISM/MES CO-OP)
E BA NK CONNE CT OR( F)
4 0 13 3 1 0 2 _ 3 - 4 A ( C N1 3 4 0)
I S M/ ME S CO OP E RA T I ON O PT I ON
I F S - NX ( 2 D B A R CO DE R EA D E R) OP T I O N
2 D P ROT ECT MODUL E
B A RC OD E RE ADE R ( R)
B A RC OD E RE ADE R ( F )
US B CH 4
US B CH 3
2 - 3 A
2 / 2
CPU BO A RD
COVE R
US B
USB CH 2
US B C H1
2 - 4 B
X5L AN4
COPL A CPU B OARD
D C I N R
X4
ET HERES- HUB
CAN- BUS R
D C I N PU T
CH4
CH3
C H1 & CH2
ET HERNET
MPC - C A N( R )
D C I N F
FG
CN 0 00 8
RFI D PWR
CN8
EL E CT RI C AL U NI T
< T OP UNI T >
COV E R
C N1 0 9 7
CH4
CH3
CAN- BUS F
ET HERES- HUB
X2L AN
D C I N PU T
D C I N P UT
CH4
CH3
C H1 & CH2
ET HERNET
MPC - C A N( F )
S WI T C HI N G H U B
X2
X3
L AN1
CPU B OA RD
N OT E 1 T H E SE P / N C HA NGE S WI TH MA C HI NE R E VI S I O N ( FI X E D B A N K ONL Y ) .
" [ MRE V. C] " RX - 6 MA CHI N E RE VI S I O N : B E F ORE " C "
" [ MRE V. D] " RX - 6 MA CHI N E RE VI S I O N : " D"
N OT E 2 T H E SE P / N C HA NGE S WI TH T ROLL E Y R EV I S I O N ( T R OL L E Y B A NK O N L Y ) .
" [ T R E V . A ] " RX- 6 T R OL L E Y RE V I S I ON : B EF ORE " A "
" [ T R E V . B ] " RX- 6 T R OL L E Y RE V I S I ON : " B "
CN 1 7 04
CN4
F LUX ER2 _ B
FL UX ER2 _ A
F L UX ER2
ROTA RY
FL UX ER
OP T I O N
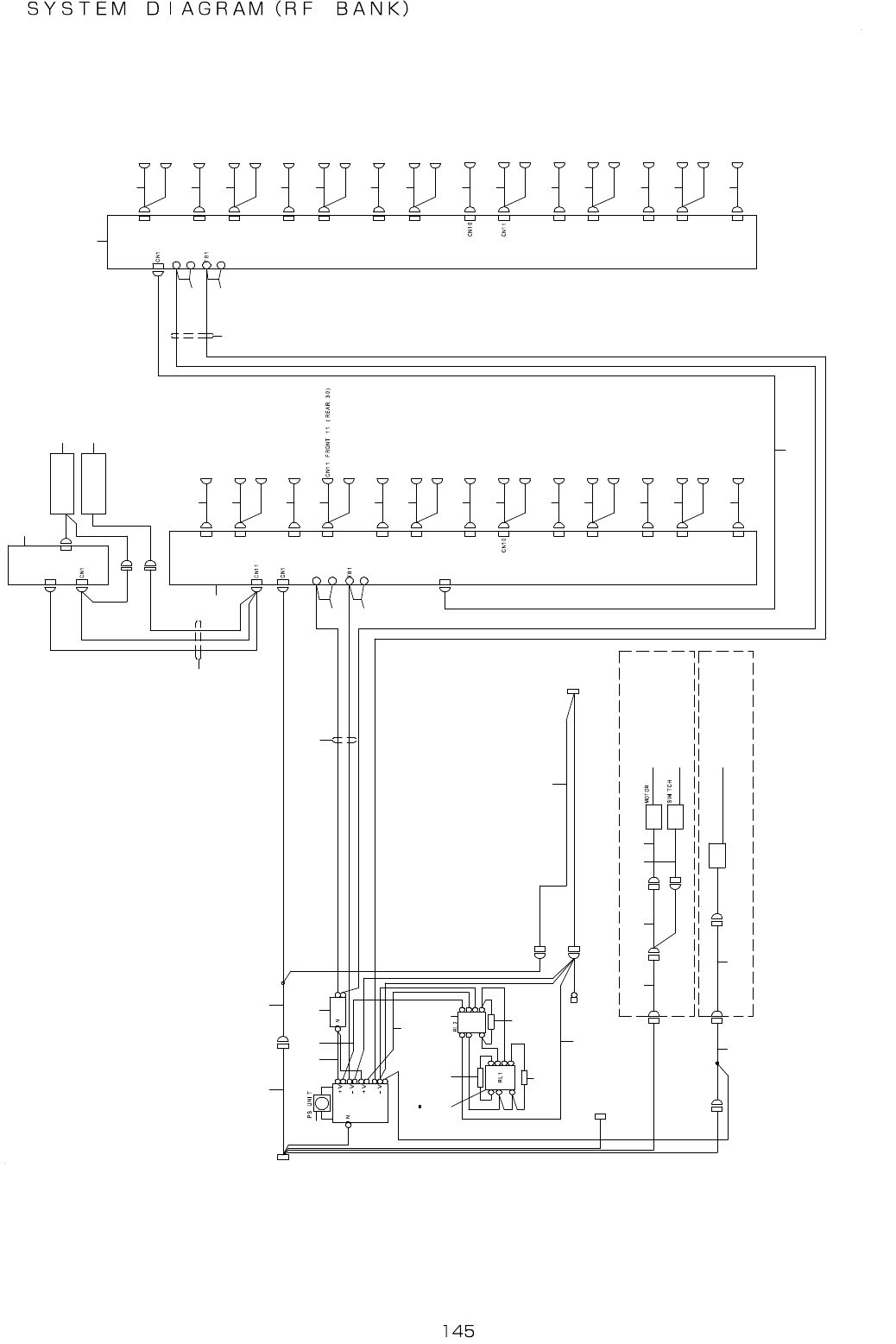
( S L I D E FL U X ER F OR B A NK )
OP T I O N
( RO T A RY F L U XE R)
F L UXER 2
F L UX BANK
RT F LU X
F L U X R L Y 1
SWI TCH
MOT OR
S L I DE F L UX E R U NI T
B ANK I D P CB( F )
CN 1 7 5 7
B A NK 3 6 - 4 0
B A NK 3 1 - 3 5
B A NK 2 6 - 3 0
BA NK 2 1 - 2 5
BA NK 0 6 - 1 0
CP I N
CP OUT
3 - 5 A
3 - 5 A
C N3 6 - 4 0
C N3 1 - 3 5
C N2 6 - 3 0
C N2 1 - 2 5
EL E C B ANK 1 0 P CB ( F )
CN3 5
CN3 4
CN3 3
CN3 2
CN 3 1
C N4 0
CN3 9
CN3 8
CN3 7
CN3 6
CN2 5
CN2 4
CN2 3
CN2 2
CN 2 1
C N3 0
CN2 9
CN2 8
CN2 7
CN2 6
CN 1 6 - 2 0
CN 0 6- 1 0
CN 1 5
CN 1 4
CN 1 3
CN 1 2
C N2 0
CN 1 9
CN 1 8
CN 1 7
CN 1 6
C N0 5
C N0 4
C N0 3
C N0 2
C N0 9
C N0 8
C N0 7
C N0 6
CN 0 1- 0 5
C N 1 7 5 8
P W0 1
C N1 7 5 9
OUT
C P1 NOT E2
2 4 V OUT
OUT
C P
CN4 3
C N1 7 4 3
CN 4 1
CN4 2
BK 44
CN 1 7 60
C N1 7 5 6
F G
N OT E2
N OT E2
BK4 2
RL Y
FG
F G
NOTE 2
E L E C B A NK 1 0 P CB( F )
5 3 5 5 5 7 5 8
5 2 5 4 5 6
5 9
5 1
6 0
7 2
6 1 6 1
6 3 6 5
6 4
6 2 6 2
6 6
6 7 6 7 6 8
6 9 6 9
7 0 7 0
7 1
E BA NK TR OL L EY UN I T ( F )
I F S- NX ( CA N ) OP T I ON
( WI T H C OVER )
1 2
3
4
5
6
7
1 2
8 9
1 0 1 1
1 3 1 4
1 5 1 6
1 7 1 8
1 9 2 0
2 4
2 3
2 5
2 6
2 7 2 8
2 9
3 0
4 1 4 2
4 9
5 0
4 7 4 8
4 3
4 4
4 5
4 6
3 1
3 2 3 3 3 4 3 5
BA NK 0 1 - 0 5
BA NK 1 6 - 2 0
3 6 3 7 3 8 3 9
E BA NK CONNE CT OR( R)
4 0 13 3 1 0 2 _ 3 - 4 C ( C N1 4 4 0 )
3 93 83 73 6
BA NK 1 6 - 2 0
BA NK 0 1 - 0 5
3 53 43 33 2
3 1
4 6
4 5
4 4
4 3
4 84 7
5 0
4 9
4 1 4 2
3 0
2 9
2 7 2 8
2 6
2 5
2 3
2 4
1 9 2 0
1 7 1 8
1 5 1 6
1 3 1 4
1 0 1 1
8 9
1 2
7
6
5
4
3
1 2
( WI T H C OVER )
E BA NK TR OL L EY UN I T ( R)
I F S- NX ( CA N ) OP T I ON
E L E C B A NK 1 0 P CB( R )
NOTE 2
F G
FG
RL Y
BK4 2
N OT E2
N OT E2
F G
C N1 7 5 6
CN 1 7 60
BK 44
CN4 2
CN 4 1
C N1 7 4 3
CN4 3
C P
OUT
2 4 V OUT
C P1 NOT E2
OUT
C N1 7 5 9
P W0 1
C N 1 7 5 8
CN 0 1- 0 5
C N0 6
C N0 7
C N0 8
C N0 9
C N0 2
C N0 3
C N0 4
C N0 5
CN 1 6
CN 1 7
CN 1 8
CN 1 9
C N2 0
CN 1 2
CN 1 3
CN 1 4
CN 1 5
CN 0 6- 1 0
CN 1 6 - 2 0
CN2 6
CN2 7
CN2 8
CN2 9
C N3 0
CN 2 1
CN2 2
CN2 3
CN2 4
CN2 5
CN3 6
CN3 7
CN3 8
CN3 9
C N4 0
CN 3 1
CN3 2
CN3 3
CN3 4
CN3 5
EL E C B ANK 1 0 P CB ( R )
C N2 1 - 2 5
C N2 6 - 3 0
C N3 1 - 3 5
C N3 6 - 4 0
3 - 5 B
3 - 5 B
CP OUT
CP I N
BA NK 0 6 - 1 0
BA NK 2 1 - 2 5
B A NK 2 6 - 3 0
B A NK 3 1 - 3 5
B A NK 3 6 - 4 0
CN 1 7 5 7
B ANK I D P CB( R)
S L I DE F L UX E R U NI T
MOT OR
SWI TCH
F L U X R L Y 1
RT F LU X
F L UX BANK
F L UXER 2
OP T I O N
( RO T A RY F L U XE R)
OP T I O N
( S L I D E FL U X ER F OR B A NK )
ROTA RY
FL UX ER
F L UX ER2
FL UX ER2 _ A
F LUX ER2 _ B
CN4
CN 1 7 04
4 0 4 0
RL 1
2 1 2 2
RL 1
2 1 2 2

- -
REF.NO NOTE PART NO D E S C R I P T I O N Qty
1 400-84841 EF ARRANGE CBL 1 BRACKET ASM 1
2
#01
400-84833 EF ARRANGE CBL 1 ASM 1
3 HA-0052400-00 CIRCUIT PROTECTOR 1
4 401-29279 EF CP OUTPUT CABLE ASM 1
5 400-92656 EF CP INPUT CABLE ASM 1
6 401-29249 E BANK SERIAL CABLE ASM 1
7 401-74567 E BANK SERIAL RELAY CABLE ASM 1
8
#04
HX-0069200-00 POWER SUPPLY 1
9
#05
HX-0071800-00 POWER SUPPLY 1
10
#02
401-29250 E BANK PWR WIRE2 ASM 1
11
#03
401-58150 E BANK PWR WIRE2 ASM2 1
12 400-84840 ELEC BANK TOROLY FG WIRE ASM 1
13
#02
HA-0052700-0A CIRCUIT PROTECTOR 1
14
#03
HA-0052700-00 CIRCUIT PROTECTOR 1
15
#02
401-29278 E BANK PWR WIRE ASM 1
16
#03
401-58151 E BANK PWR WIRE ASM2 1
17
#02
401-29287 PS-RL2 WIRE2 ASM 1
18
#03
401-58153 PS-RL2 WIRE2 ASM2 1
19
#02
401-29286 PS-RL2 WIRE1 ASM 1
20
#03
401-58152 PS-RL2 WIRE1 ASM2 1
21 HB-0017900-00 TIMER 1
22 HB-0012500-20 RELAY 1
23 HB-0011000-00 RELAY 1
24 401-29288 RL1 WIRE-1 ASM 1
25 401-29289 RL1 WIRE-2 ASM 1
26 401-29290 RL1 WIRE-3 ASM 1
27
#02
401-29291 PS WIRE1 ASM 1
28
#03
401-60151 PS WIRE1 ASM2 1
29 401-74568 E BANK PWR WIRE3 ASM 1
30 401-69045 BANK ID PCB ASM 1
31 400-71185 ELEC BANK 10 PCB ASM 1
32 400-92647 EF IF CBL 1-5 ASM 1
33 400-92648 EF IF CBL 6-10 ASM 1
34 400-92649 EF IF CBL 11-15 ASM 1
35 400-92650 EF IF CBL 16-20 ASM 1
36 400-92651 EF IF CBL 21-25 ASM 1
37 400-92652 EF IF CBL 26-30 ASM 1
38 400-92653 EF IF CBL 31-35 ASM 1
39 400-92654 EF IF CBL 36-40 ASM 1
40 401-29292 PW01 WIRE ASM 1
41
#02
401-51640 PS-24VRTN WIRE ASM 1
42
#03
401-60150 PS-24VRTN WIRE ASM2 1
43 401-33027 ROTARY FLUXER CABLE ASM 1
44 401-22787 ROTARY FLUXER MOTOR CABLE ASM 1
45 401-22788 ROTARY FLUXER MOTOR ASM 1
46 401-22789 ROTARY FLUXER SWITCH ASM 1
47 401-07113 AC_MOTOR_D5N 1
48 HA-0005900-00 POWER SWITCH 1
49 401-33026 FLUXER BANK RELAY CABLE ASM 1
50 400-97610 FLUXER CYLINDER BANK UNIT ASM 1
51 HK-0651200-80 MODULAR KAPLA 1
52 HW-0018100-80 LAN CABLE 1
53 401-23242 CPU BOARD 1
54 401-29282 RFID LAN CABLE (1.8M) ASM 1
55 401-29242 EU P115 WIRE ASM(EN) 1
56 401-02830 LAN CABLE(CAT6) 1
57 401-27537 PSU_UNIT_B(ST) 1
58
#01
401-27563 PSU_UNIT_B(EN) 1
59 401-74565 EU-HUB/MPC PWR RELAY CABLE ASM 1
60 400-73033 SWITCHING HUB 1
61 401-67749 LAN CABLE ASM 1
62 401-69048 MPC-CAN 1
63 401-74563 MPC-CAN F SERIAL CABLE ASM 1
64 401-29126 HUB-MTS SERIAL WIRE ASM(IS) 1
65 401-74564 MPC-CAN R SERIAL CABLE ASM 1
66 401-23242 CPU BOARD 1
67 HW-0022600-40 SHIELDED CABLE 1
68 401-73481 USB REPEATER CABLE 1
69 401-73482 USB BARCORD READER CABLE(4M) 1
70 EZ-1458644-11 READER BAR CODE 1
71 401-29932 2D PROTECT MODULE(USB) 1
72 401-74566 HUB/MPC POWER CABLE ASM 1

- -
73.SYSTEM DIAGRAM(RF BANK)
CN 1 6
CN 3 9 F RON T 3 9 ( R E A R 2 )
CN 3 8 F RON T 3 8 ( R E A R 3 )
CN1 5 CN 3 7 F RON T 3 7 ( R E A R 4 )
CN1 4 CN 3 3 F RON T 3 3 ( R E A R 8 )
CN 3 2 F RON T 3 2 ( R E A R 9 )
CN1 3 CN3 1 F RONT 3 1 ( R E A R 1 0 )
CN1 2 CN2 7 F RONT 2 7 ( RE AR 1 4 )
CN2 6 F RONT 2 6 ( RE A R 1 5 )
CN2 5 F RONT 2 5 ( RE A R 1 6 )
CN2 1 F RONT 2 1 ( REA R 2 0 )
CN2 0 F RONT 2 0 ( REAR 2 1 )
CN9
CN1 9 F RONT 1 9 ( REAR 2 2 )
CN8
CN1 5 F RONT 1 5 ( REAR 2 6 )
CN1 4 F RONT 1 4 ( REAR 2 7 )
CN7
CN1 3 F RONT 1 3 ( REAR 2 8 )
CN6
CN9 F RONT 9 ( RE AR 3 2 )
CN8 F RONT 8 ( RE AR 3 3 )
CN5
CN7 F RONT 7 ( RE AR 3 4 )
CN4
CN3 F RONT 3 ( RE AR 3 8 )
CN2 F RONT 2 ( RE AR 3 9 )
CN3
CN1 F RONT 1 ( REAR 4 0 )
EL EC B A NK
L OW S I D E
PC B AS M
CN1 6 CN 4 0 F RONT 4 0 ( R EA R 1 )
CN 3 6 F RON T 3 5 ( RE A R 5 )
CN1 5 CN 3 5 F RON T 3 5 ( R E A R 6 )
CN1 4 CN 3 4 F RON T 3 4 ( R E A R 7 )
CN3 0 F RONT 3 0 ( REAR 1 1)
CN1 3 CN 2 9 F RONT 2 9 ( RE AR 1 2 )
CN1 2 CN 2 8 F RONT 2 8 ( RE AR 1 3 )
CN2 4 F RONT 2 4 ( RE AR 1 7 )
CN2 3 F RONT 2 3 ( RE AR 1 8 )
CN9
CN2 2 F RONT 2 2 ( RE AR 1 9 )
CN1 8 F RONT 1 8 ( REA R 2 3 )
CN8
CN1 7 F RONT 1 7 ( REA R 2 4 )
CN7
CN1 6 F RONT 1 6 ( REA R 2 5 )
CN1 2 F RONT 1 2 ( REA R 2 9 )
CN6
CN5
CN1 0 F RON T 1 0 ( REAR 3 1 )
CN 6 F R ONT 6 ( RE A R 3 5 )
CN4
CN 5 F R ONT 5 ( RE A R 3 6 )
CN3
CN 4 F R ONT 4 ( RE A R 3 7 )
T B 2
T B 4
T B 3
T B2
T B4
T B3
EMI T F
+ 2 4 V
CN9
E BA NK S EN S E
E BA NK S EN S R
BA N K I D
PC B ( R F)
AS M
EL E C BA NK
UP SI DE
PC B A SM
CN2
CN1 7
F AN
F L UX ER2 _ BF L UX E R2 _ A F L U XER2
OPT I ON
( S L I DE F L UXER F OR B A NK )
OPT I ON
( ROT ARY F L UX E R)
F L UXER2
F L UX B A NK
RT F L UX
F L UX RL Y1
SWI TCH
MOT OR
S L I DE F L UXE R UNI T
CN1 7 5 7
4 0 1 3 3 0 2 6
CN1 7 5 8
PW0 1
CN1 7 5 9
OUT
CN1 7 6 0
CN1 7 5 6
F G
2
1
3
5
6
4
7
99
8 6 2
1 0
1 2
1 1
1 3
1 4
1 5
2 1
1 6
1 9
1 7
1 8 2 0 2 2
2 3
2 4
2 5
2 6
2 7 2 8
2 9
3 0 3 1
3 2 3 3 3 4 3 5 3 6 3 7 3 8 3 9 4 0 4 1 4 2 4 3 4 4
4 5
4 6
3 0 3 1
4 7
4 8 4 9 5 0 5 1 5 2 5 3 5 4 5 5 5 6 5 7 5 8 5 9 6 0 6 1