P-0257-004 - 第77页
MEMO

74
MODEL PXH-1
1006-002
Key No. PART No. PART NAME Q’ty REMARKS New Code
NOTE
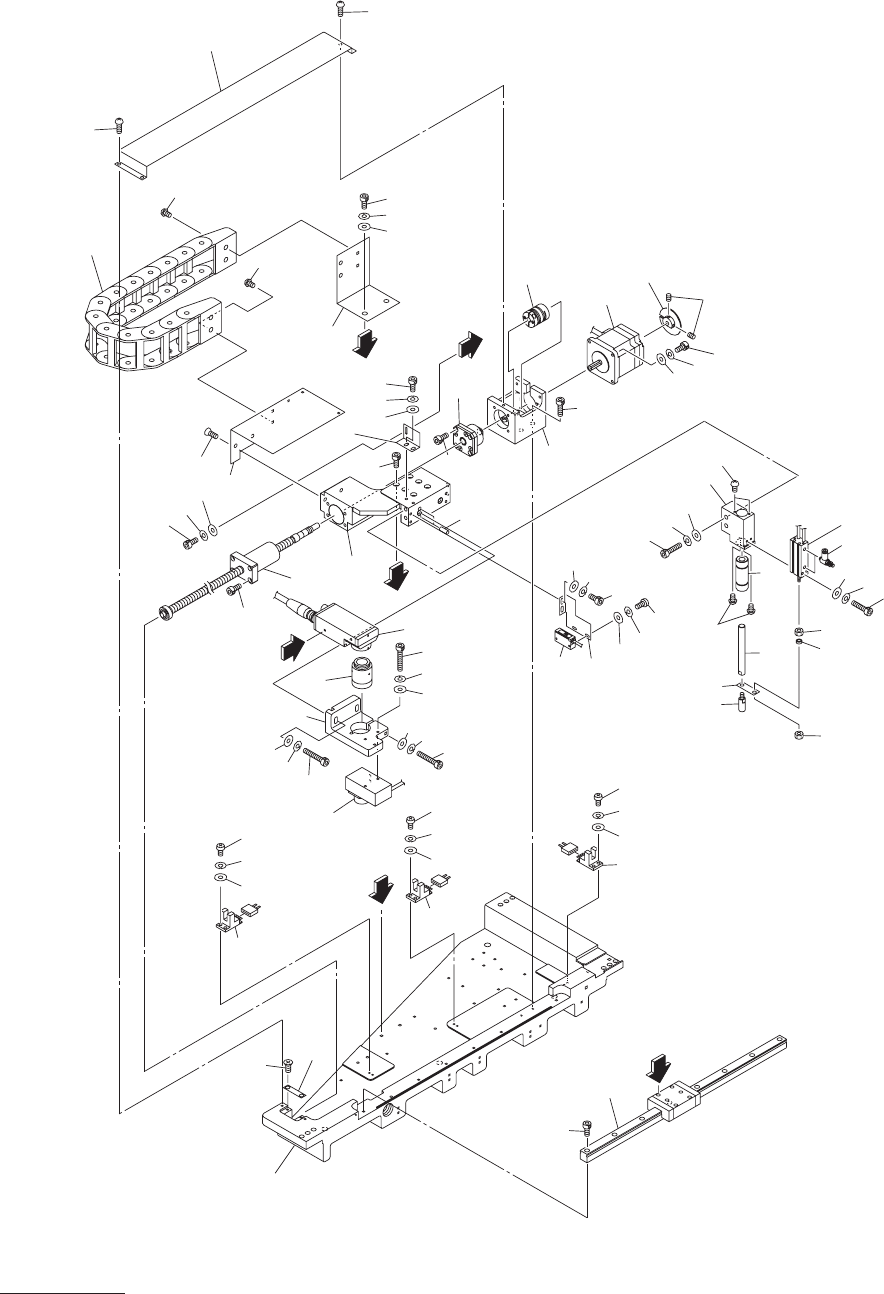
G-1
83 6300007589 BOLT,HEX-SCT 2 M3X30 221A0013
85 4110420703 SCR PAN 3X8 8 M3X8 PAN 221E0499
87 4111476808 SCR TRS 3X5 4 M3X5 TRS
88 4111413902 WASHER V 3X7X0.5 5 FW3 221H0312
89 4111412806 WASHER SPR 3 5 SW3 221H0281
91 6300081114 BOLT,HEX-SCT 1 M2X8 221A0115
92 4111416903 WASHER V 2X5X0.3 1 FW2 221H0308
93 4111412608 WASHER SPR 2 1 SW2 221H0277
94 4111139109 SCR TRS 5X10 4 M5X10 TRS 221E0534
95 4111407208 SCR FLT 4X6 2 M4X6 FLT 221D0224
96 4111191909 WASHER V 3X7X0.5 8 FW3 F 221H0311
97 4110864408 WASHER SPR 3 8 SW3 F 221H0280
98 6300007558 BOLT,HEX-SCT 3 M3X16 221A0010

MEMO

MODEL PXH-1
1006-002
76
82
35
82
13
33
A
68
31
78
80
79
37
73
78
25
72
23
1
B
1 1
4
5
79
80
78
94
94
75
74
79
80
78
64
3
12
2
12
65
B
12
A
32
81
24
30
10
66
20
19
74
75
71
69
70
61
26
95
8
87
9
87
7
88
89
83
6
6
38
28
29
6
69
70
62
27
92
93
91
C
C
40
85
97
96
85
97
96
85
97
96
96
85
97
21
88
89
98
基板認識部
PEC RECOGNITION SECTION
Fig. G-1
基板認識X軸
PEC Recognition X Axis
( 右流れ)
(Right Flow)